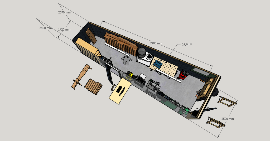
Mon atelier, c’est un ancien appentis d’environ 15 m² (7,48 m x ~2 m), réaménagé pour le travail du bois. L’espace est long et étroit, donc tout est pensé pour rester mobile et dégagé.
Les machines principales — raboteuse, scie à ruban et aspirateur à poussières — sont montées sur roulettes. Je les garde rangées contre les murs, et je les déplace dans l’allée centrale quand je travaille. Ça me permet d’avoir les dégagements nécessaires pour usiner des pièces plus ou moins longues, même dans un espace réduit.
Le bois est stocké verticalement sur un mur, ce qui permet de garder tout visible et accessible sans grignoter plus d'espace au sol. Une partie du matériel est regroupé dans des caisses stockées sur une armoire au fond de l’atelier tandis que pas mal d'outils électroportatifs (perceuse, meuleuses, scie sauteuse et circulaire) sont accrochés au mur au dessus de mon établi Centipede BORA (c'est pas le plus pratique pour ranger des choses en dessous).
L’entrée sert de zone polyvalente : manipulation, assemblage, ponçage... avec mon SuperJaws (équipement hyper pratique) !
L’établi (en bois réalisé par mes soins), le banc à planer (également réalisé par mes soins) et mon bureau ne sont pas dans l’atelier mais… dans mon salon (qui communique avec l'appentis via une porte). C’est là que je fais tout le travail manuel fin, les ajustements, les collages délicats, la petite sculpture, et aussi la partie dessin / conception assisté de mon chat Yumi. L’atelier sert aux opérations bruyantes et poussiéreuses ; le salon, lui, est mon espace “propre”.
C’est une organisation un peu hybride, mais elle fonctionne : un micro-atelier pour la puissance et les poussières, un coin salon pour la précision. Et au final, même dans une petite surface, j’arrive à sortir des pièces propres et ambitieuses (même si je rêve d'un atelier plus grand pour regrouper mes activités de modelage et de peinture mais surtout se sentir plus à l'aise pour plus de lâcher prise !).

Discussions
Bel établi pour le salon!
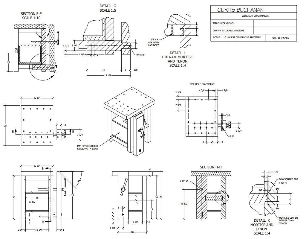
Je suis parti sur la base du petit établi de Curtis Buchanan.
J'ai remplacé la boite à remplir de sable (pour ajouter du poids et de la stabilité) par ma caisse à outils à mains qui est sur roulette et qui a une hauteur sympa pour s'assoir : c'est donc un banc/boite à outils qui se glisse sous l'établi pour gagner un peu plus de place (mais du coup je perds en poids/inertie sur l'établi...)
DEES atelier J'aime beaucoup son volume, et les grosses roues lui donnent un cachet très intéressant! Je sens que je vais bientôt me réaliser un n-ième établi...
Et jolies photos !
merci !
Belle organisation pour de belles réalisations
Merci ;-)
Waoow ! le coin salon est incroyable, il donne juste envie de se poser la, sans rien faire
Je m'y pose souvent sans rien faire