Bonjour,
J'ai récemment été missionné pour réaliser la décoration de la fête de PACS d'un proche. L'un des différents objets à fabriquer, et sans nul doute le plus compliqué, L'urne. Il m'a fallu faire une boîte et pour augmenter la difficulté, je lui ai rajouté quelques faces.
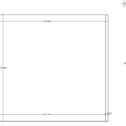
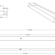
J'ai donc fait un modèle 3D sur AutoCad2019 et ai imprimé les plans des différentes pièces :
Pour la fermeture de la boîte, j'ai utilisé des petites charnières de 5 mm de large. La fermeture sur le devant de la boîte est improvisée. Un crochet, une roue de MECCANO et une ficelle suffisent à fermer la boîte.
Les inscriptions sur le dessus et les côtés de l'urne ont été réalisées à la Dremel.

Discussions
Je connaissais les urnes pour les cendres de crémation mais pas de PACS. On y met les cendres de la vie de garçon ou de jeune fille?
Attention au moment de les disperser
ArthurBidault Ouaip, obligé de s'envoyer un White Russian pour se nettoyer la gorge
C'est pour les préservatifs


Et comme le disait JP Rosnay "ami de la poésie bonsoir"...
utilisés !
Sympa cette urne sobre et classe point merci pour les plans
Merci !