Bonjour à tous,
Notre meuble actuel (déjà une de mes réalisations) ne me plaisant plus et ayant vu plusieurs fois les créations de l'atelier Kobeomsuk en Corée, j'ai craqué sur son meuble TV tout en longueur et ses façades de tiroir live edge.
La longueur est approximativement celle de l'original mais profondeur et hauteur ont été augmentées, ça me semblait plus équilibré.
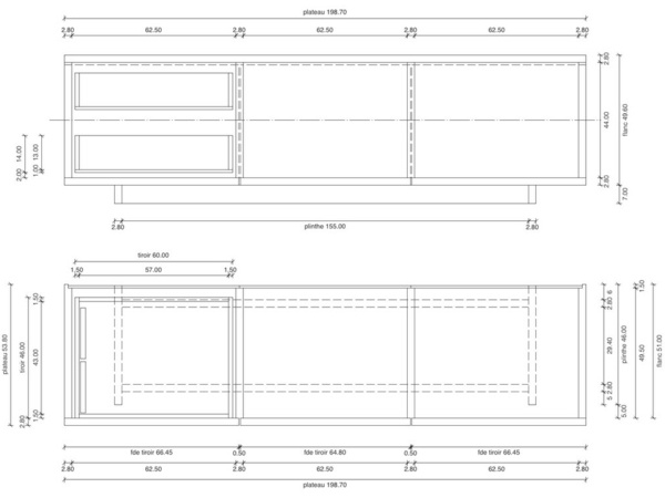
Je trace donc mon projet en 2D afin de définir au mieux mon débit.
Je disposais depuis peu d'un plot de noyer de 32 mm, bien sec, datant de la tempête de 1999:
l'arbre avait été couché par le vent sans aucun dégât.
Malheureusement, les plateaux du fait de leur âge canonique, avaient été attaqués, étaient échauffés bref, un gros tri à faire… absolument aucune marge de manoeuvre pour moi.
J'ai donc choisi au mieux (selon moi) les plateaux en prenant le parti de garder certaines échauffures, j'en utilise souvent pour leur beauté dans la réalisation de socles pour maquettistes ou figurinistes.
Les plateaux haut et bas du meuble ayant une longueur de près de 2 mètres, les plateaux bruts de 2,20 m, ça a été un peu chaud d'éliminer gros défauts, gerces, piqûres… 
Vient ensuite le corroyage des pièces, j'ai donc utilisé le plus possible les plateaux les moins gauches afin de composer le caisson du meuble.
Ces pièces sont toutes collées à plat joint avec biscuits.
Avant de tracer et tailler les queues d'aronde, la largeur des pièces du caissons ne passant pas dans ma raboteuse (limitée à 310 mm de largeur), j'ai repris la planéité avec mon n°5 Clifton.
Les queues sont tracées selon un angle avec rapport de 1 pour 5, soit 78°.
La scie est calée contre une bande de MDF incliné selon l'angle ci-dessus, histoire d'aller plus vite.
A l'inverse de l'atelier coréen, je n'ai taillé que 3 double queues au lieu de 4, mon côté réfractaire sans doutes 
Les queues sont toutes en sur longueur de 1 mm afin qu'après leur arasement elles soient parfaitement affleur des panneaux.
Les défauts de surface, noeuds morts, coeur visible ont été réparés à l'aide d'allumettes de noyer collées en force.
J'ai changé les dimensions de la plinthe deux fois: une au dessin car celles de l'original me semblait trop petite pour l'équilibre du meuble et une autre avant de débiter ses pièces.
Son assemblage est fait à la lamelle et la liaison au caisson à l'aide d'un tasseau vissé.
Le caisson de chaque tiroir est en châtaignier massif, le fond en contreplaqué de peuplier.
les joues de tiroirs sont assemblées par languette bâtarde et les fonds mis en feuillure.
N'ayant pas de plateaux bruts issus du fût de l'arbre donc, à l'aubier non parallèle (bille de pied), il m'a fallu choisir deux pièces du plot pouvant se "raccorder" afin de composer les façades des tiroirs… encore pas de bol: quelques piqûres et des échauffures mais pas inesthétiques.
Les deux demi-plateaux ont été refendus pour un corroyage plus facile et ensuite ré-assemblés à plat joint avec lamelles.
Passons à la finition du caisson pendant le séchage des façades: arasement des queues d'aronde, première finition de surface au rabot puis au racloir… pas un coup d'abrasif sur ce meuble hormis les arêtes.
Deux couches d'huile cire sur le caisson appliquées au pinceau et tirées assez longuement… pas terrible au début mais en séchant l'effet ciré est très sympa.
Cette fois, le caisson fini, les blocs tiroirs et leur façades prêtes à être posées.
Les réglages des façades en cours: les trois basses sont vissées directement sur les caissons de tiroirs, celles du haut sont dans un premier temps collées dos au tiroir puis vissées faute de pouvoir accéder à l'intérieur du tiroir.
Il reste ici quelques défauts en cours de réparation sur ces façades.
Enfin, le meuble dans son nouvel environnement…
La lampe que j'ai faîte à ma fille est arrivée au salon temporairement, c'est plus joli comme ça non ?
Il va falloir que j'en fasse une autre 

Discussions
Un vrai beau meuble en massif ! J'aime beaucoup l'ouverture "live edge", même, ça ça risque d'être un nid à poussière :)
Et merci pour toutes ces photos.
Parfait la petite lampe.
Merci, j’ai pris bcp de plaisir à le réaliser.
On va voir au sujet de la poussière, de toutes façons elle s’infiltre partout, ça sera juste un peu plus rapide.
Merci Laurent51 pour le partage, le pas à pas et cette réalisation. Je suis sous le charme.
J'aime beaucoup le lambris oblique ;) et je vais jeter un oeil sur ton meuble à minéraux
Je t'en prie, j'ai plaisir à partager mon travail d'autant que le temps ne manque pas en ce moment.