Salut à tous.
Voici le lit que j'ai réalisé pour ma plus petite fille de 3 ans. Je souhaitait donner un effet de lévitation du lit en cachant les montants.
Le tiroir est monté sur roulette, et j'ai fixé sur chaque côté du tiroir des roulettes pour que celui-ci sorte bien droit. La poignée est réalisé à la défonceuse, et je suis content d'arriver enfin à faire quelques chose avec cet outil.
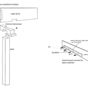
les montant sont réalisé avec des encoches faites a la scie plongeante, une forme en tenon permet de tenir le cadre du lit.
Les cubes sont réalisés avec des tourillons.
La petite échelle c'est juste que ma petite en voulais une comme sa grande sœur et son lit mezzanine.
Voilà. Merci à vous tous, j'ai beaucoup appris et j'ai mis toutes mes tripes dans cette réalisation, imparfaite certes,
mais dont je suis fière.
Et un grand merci à Niconathy qui m'a soutenu et conseillé dans mes moments de doute.
 
     
     
     
     
                                             
     
     
     
     
     
     
     
    
 
     
     
     
    
Discussions
Effet lévitation réussi ! Beau boulot !
Et les gars, on a un magicien parmi nous ! Il fait de la lévitation.
 Il fait de la lévitation. 


Ou alors c'est Aladin qui est passé te voir!
Excellent ce lit. Une princesse heureuse!
Un sacré défis technique! Bravo pour cette réalisation de haut vol. La partie qui a la lampe de chevet coulisse également?
C'est super beau boulot.
Merci à vous tous. niconathy en fait au début les blocs devaient servir de maintient, mais après assemblage des traverses et au vu que le lit ne bronché pas, c'est ma femme qui a eu l'idée de laisser libre les cubes de rangement pour pouvoir à notre guise les rentrés ou les ouvrir. J'ai juste ajouté des feutrines pour que cela ne raye pas le parquet. Mais je trouve son idée très bonne.
Superbe projet visiblement très réussi et bien pensé, chapeau
merci camema
qu'est ce qu'on dort bien dans le lit que papa m'a fabriqué!!
Félicitations!
la suite ...bientôt
Merci bene569, venant de toi cela me touche.
Top le lit, encore une enfant gâtée
merci cljeje
très pratiquement - offre beaucoup éclate
merci.