Il s'agit d'une version simplifiée d'un modèle vu dans PINTEREST.
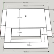
Il est adapté pour mon établi, en gros 2 panneaux coulissent l'un sur l'autre et permettent un ajustement précis, tant au niveau de la position sur la largeur du bois que la longueur de la mortaise.
Peu importe l'épaisseur du bois. Adaptation aisée pour la grosse DEWALT ou la petite MAKITA. Il suffit d'introduire une cale et utiliser le plexi rainuré ad hoc(façon Samuel MAMIAS).
Novice dans SKETCHUP, j'ai malgré tout fait l'exercice.
En cours de réalisation, j'ai pris quelques liberté avec l'une ou l'autre cote.
Mon petit établi permet une fixation de la pièce à traiter sur un plan vertical avec simple serre-joint.
Le modèle dont je me suis inspiré est reproduit ci-dessous.
Mon système me semble nettement plus simple et plus efficace, la semelle de la défonceuse est bien maintenue et est en contact direct avec la pièce à usiner.

Discussions