Pour son anniversaire, ma fille a promis à Arthur, son filleul, une "petite" cabane à installer dans le jardin.
A PP de faire ... je me suis exécuté ... sur base de ses plans.
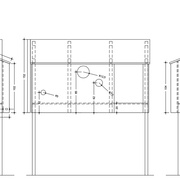
Je suis inscrit au cours de Samuel MAMIAS et outre l'atelier, je me suis pris d'affection pour Sketchup. Faut pas s'y perdre dans trop de détails, mais cela met bien les idées en place: je recommande !!! Perspectives réalisées par mes soins, chaque pièce colorée selon la section en fonction des bois de récup disponibles.
Idées de base: utiliser un CP de coffrage de qualité tandis que la structure est réalisée à partir de poutres de sapin de réemploi du chantier de transformation de sa maison. Cela a limité l'usage de certaines machines, trop dangereux à cause des clous malgré toute ma vigilance, mais j'ai fait un max.
Pas question d'utiliser la dégo, mais plutôt la ponceuse à bande pour les poteaux en partie inférieure.
Assemblage à mi-bois à la scie et la circulaire à capot défonceuse pour les pièces principales de la structure.
Le panneau de CP a été travaillé avec une petite défonceuse pour toute les courbes. Le panneau est percé (4mm) pour fixer le profil alu "arrimé" à la défonceuse (fraise hélico de 6mm), ce qui a permis le travail parfaitement symétrique de chaque coté du panneau. Il suffisait de laisser 2 mm (maintenir le percement central) que j'ai supprimé à la scie sauteuse. Ensuite, finition centrale de la courbe avec l'affleureuse.
Le montage s'effectue contre un mur latéral (fixation par tire-fonds et chevilles), l'ensemble repose sur 2 poteaux ancrés au sol par carré en galva avec enfoncement dans le sol. Opération impliquant une grande précision (niveau, position par rapport au mur, ... car les panneaux sont tous finis en atelier) mais gérable.
Les panneaux sont fixés à l'ossature par vis inox. Chants des panneaux traités avec lasure pour chalet de teinte charbon.
Toiture en ondulé transparent débordant latéralement et en pied de toit.
Petite échelle en bois de récup. Tobogan d'occasion (2ème main).
Ce n'est pas une oeuvre de "boiseux à queue d'aronde", mais un bon exercice d'atelier, de chantier pour une réalisation la plus simple possible in situ, avec le souci de récupération de matériaux.

Discussions