J’ai un atelier plutôt réduit 2.80mx3.80m ou trône au milieu mon petit combiné Lurem 260.
Je dispose une bande de 3m par 60cm mais avec mon tour a métaux, ma perceuse a colonne, ma ponceuse a bande et depuis peu une énorme scie a onglet.
Plus de place pour travailler !
J’avais besoin (envie) un établi avec une presse et d’un meuble pour mettre ma défonceuse sous table, toujours dans ce même petit atelier !
Ma solution, le Sur-Etabli. Posé sur mon combiné avec un porte-à-faux pour y placer la défonceuse.
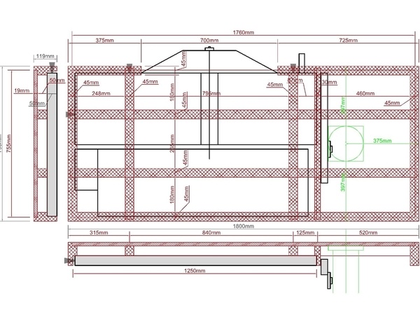
Tout commence par une étude sérieuse pour créer le châssis qui s’adapte au combiné.
La création de mes carrelets (120x45 et 50x45) fait avec du bastaing et des chutes de bois.
Le corroyage des pièces à la côte définitive.
L’usinage de la section périmétrique (à la toupie).
Les assemblages tenon mortaise et mi-bois (mes premiers tenons mortaise).
L’assemblage du châssis.
Pose du contreplaqué de surface (de la récup) 19mm. Et ajustement avec mon super rabot Magnusson.
Mise en place de la défonceuse directement sur le CP de 19 (Je n’ai pas voulu créer une plaque à encastrer) (mais c’est toujours possible) (en plus je l’ai fait avant Yannick !!
https://www.lairdubois.fr/Hetre ou ne palette )
Accessoirisation, enfin le début, j’ai plein de pièce à créer et à imprimer (comme les rails de guidage pour le futur guide de toupillage). Mise en place de la presse (promo Magnusson à 5 ou 15 euros).
Il y a trois vis de serrage et une cale a viser pour le tenir fermement au combiné. Je peux m’assoir au bout du porta-à faux, la machine est plus lourde que moi.
Finalement, ça me fait mon premier établi « pas cher cousin » tout en faisant mon expérience de boiseux débutant. Le Sur-Etabli se place contre le mur quand je souhaite utiliser le combiné.

Discussions
Je travail moi aussi sur ma dégau/rabeau. Et cela fait un moment que je me dis qu'il faut que je fasse un truc un peu mieux qu'une simple planche.
Pas trop lourd à déplacer ?
Pas bête, on optimise et comme benjam pas trop lourd à maniper?
pas mal comme idée pour optimiser son atelier si il est exigu.
Pour la manipulation je suppose que tu fais glisser au sol puis tu le bascules sur l'un des cotés...
Sur les questions sur le poids, fred59 a raison, je ne soulève jamais l'ensemble, malgres son poids de 6.4kgs je laisse la defonceuse dessus.
C'est clair, il faut avoir la forme pour le manipuler.
Pas bête ! Et le système de plaque de défonceuse est aussi malin : c'est de l'impression 3D ? Aurais-tu les fichiers STL (ou un lien pour les trouver) ?
Modélisé sur Fusion 360 je peux sortir différents format (f3d, stl, ...), pour l'instant je n'ai qu'une bague de 60mm mais je vais faire les autres ce WE pour avoir un jeu complet en fonction de la fraise.
La plaque de base est prévue collée dans une feuillure de 8x8mm.
les deux trous sont la pour recevoir une cle de démontage ( a modéliser aussi )
Je déposerai les fichiers dans la section Plan.
Ce serait super ! Cela fait un moment que je veux en modéliser une mais je n'ai jamais pris le temps
La prochaine étape : suspendre le tout au plafond juste au dessus du combiné pour le descendre au besoin (en trouvant un moyen de cordage à virer pour être tranquille
)