Voici ma première commande et mon premier projet aussi grand et de loin.
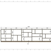
Une bibliothèque basse, en angle (450cm d'un côté, 180cm de l'autre)
Cahier des charges (après moultes interactions avec le client):
- pas de parties hautes pour laisser la place aux tableaux,
- répartition des hauteurs d'étagères pour accommoder au mieux les livres de toutes tailles
- variations des hauteurs et cloisons pour casser la régularité, et assurer le maintien des étagères
- alèses massif chanfreinées.
J'y ai ajouté, dans l'esprit des clients qui souhaitaient un travail le plus abouti possible:
- plinthes pour continues entres plusieurs blocs (et donc alèse verticale n'allant pas jusqu'au sol sur certains des montants), pour faire moins "blocs"
- raccord de l'étagère d'angle à coupe d'onglet
Conception (beaucoup de noeuds au cerveau):
Prévu pour du latté plaqué chêne 19mm, avec alèses sur l'ensemble des bords en façade. Une alèse plus fine (1cm) sera placée sur l'arrière des étagères supérieures et des deux montants situés en bout, pour combler l'espace venant de la plinthe du carrelage et permettre dans l'angle en placo pas parfaitement d'équerre, d'ajuster le meuble au plus près du mur.
Le sol n'étant pas parfaitement de niveau (1cm plus haut dans une des zones), l'ensemble des montants sont sur vérins réglables à l'exception des deux montants en bout de meuble qui ont une alèse sur le dessous.
Il y a 4 blocs principaux:
- deux blocs doubles de la grande partie
- un bloc double pour la partie courte sous la verrière
- un bloc de jonction (le petit bloc intérieur à gauche de l'angle)
Les blocs doubles ont leurs étagères supérieure et inférieure continues sur la double largeur.
Les montants de part et d'autre de chaque bloc double ont une alèse également sur le dessus dans laquelle les étagères supérieures viennent se rejoindre. On voit cela sur le plan de principe et l'étagère juste après pose.
Les blocs seront assemblés avant livraison. Et le montage entre blocs se fera aux lamellos s20 (complétés par des dominos allongés non collés d'une côté)
Réalisation:
- Récupération des bandes de latté pré-découpées à 31cm de large par mon fournisseur
- Etablissement et sélection des panneaux (façes A/B, continuité sur les étagères supérieures, sens des flammes sur les montants...)
- Première coupe à la longueur des étagères/montants
- Débit/corroyage des alèses (19mm avec un peu de gras le latté faisant 18,8 environ, je voulais avoir un peu de débord de part de d'autre)
Pose des alèses:
Elles sont assemblées par domino pour avoir un ajustement le plus précis possible avant collage (vs lamello/languette). Pour être le plus précis et régulière possible, j'ai fait un petit banc "fixe" pour la Domino, tenue fermement sur un support en MDF. Pour les panneaux, j'ai ajouté un film PVC qui décale la pièce de quelques 10e de mm, parfait pour avoir un léger débord de mes alèses.
Pose des quelques alèses se rejoignant à coupe d'onglet. Pose de demi-alèses là ou les étagères d'angle se retrouveront au montage.
Découpes aux longueurs finales, collage, affleurage à la défonceuse là où nécessaire, et ajustement par léger ponçage.
Domino / lamello pour le montage des étagères aux montants. Ainsi que pour l'un des montants d'angle dans l'alèse portée par l'autre
Ponçage, chanfreinage des étagères, Rubio, puis collage (merci une des suggestions dans les questions de l'ADB, ça marche parfaitement dans ce sens là en ayant masqué les zones à coller avant d'huiler).
Montage/collage des blocs, chanfreinage des angles.
Fonds MDF pré-peint de 3mm.
Pose:
Pré-réglage des pieds réglables en ajustant toutes les étagères supérieurs au laser une fois les blocs en position approximative.
Assemblage (quelques sueurs mais ça l'a fait)
Ajustement des plinthes (alésées également sur le dessous pour être reprises au rabot, ça a été utile comme prévu à un endroit)
En résumé
- Clients très contents et moi aussi
- Beaucoup de nœuds au cerveau mais beaucoup de plaisir de voir le résultat fini.
- Certainement plein de choses que j'aurais pu faire autrement, ouvert à tous les commentaires et suggestions.
 
     
     
     
     
     
     
     
     
     
     
     
     
     
     
     
     
     
     
     
     
    
 
     
    
Discussions
Beau meuble
Possible d'avoir un ordre d'idée très approximatif du tarif au client ?
Autour de 3000 ? 5000 ? 7000 ? etc
Merci beaucoup !
Vers le milieu de ta fourchette pour le tarif
Amons OK, merci !
Très réussi! Joli ensemble, simple et sobre, qui va bien avec la pièce. Ca doit commencer à faire un beau bébé niveau poids!
Merci !
C'est raisonnable côté poids avec le latté. Chaque bloc double restait soulevable sans trop de problème par une seule personne.
Sobre et élégant a mon humble avis.
C'est chic j'aime bien.
As tu caché quelque chose dans la niche en angle
Merci pour ce commentaire !
Ah non, effectivement, erreur de débutant de ne rien avoir laissé dans la niche d'angle. Ou alors je ne me suis pas encore rendu compte de ce que j'y ai oublié
Belle réalisation !
Merci !