Concevoir son Escalier semble pour la plus part d'entre nous une tache bien difficile.
Ce petit pas à pas j'espère va essayer de porter des réponses sur la conception des escaliers D'habitations.
Liste des articles
Mon Escalier.
Si je devais remplir le cahier des charges d'un escalier d'habitation quels rôles devrait t'il tenir?
En premier lieu il doit permettre de monter et descendre aux usagers ainsi qu'aux objets de manière facile et sécuritaire.
Et ceci quelques soient les âges de la vie ou il peut être utiliser . Les marches ayant la fâcheuse habitude de paraitre plus hautes en vieillissant.
De plus si il pouvait contenter le regard cela ne serait pas plus mal.
Pour résumé il doit tenir un rôle structurel , permettre la communication et s'intégrer dans mon cadre de vie en répondant à mes attends en matière d'esthétique.
L'appréciation de l'esthétique étant personnelle je laisserai ce coté à la discrétion de chacun.
Je me concentrerai sur la conception en utilisant le moins possible de termes techniques pour être accessible aux plus grand nombre.
Trois Paramètres.
Nous pourrions décrire un escalier comme étant une successions de gradins qui permet à un piéton de gravir ou de descendre une différence de niveau.
La marche est un élément constitutif de ces gradins.
Regardons cela de plus prés (Figure 1).
Le croquis représente deux marches en élévation ainsi que leurs vue en plan situé en dessous et une petite perspective.
A: Représente la distance d'un nez marche au suivant pris sur la ligne de foulée.
A prend pour un escaliéteur le nom de Giron.
Avant d'aller plus loin il faut définir ce" que représente la ligne de foulée.
Pour faire simple c'est la représentation de la ligne idéale qui matérialise le passage de l'utilisateur.
Elle sera placée dans l'axe de l'escalier si celui ci n'excède pas un mètre et sera placée dans la zone de préhension de la main courante (500 mm) au delà.
C'est la ligne ou l'utilisateur va mettre ses pieds de part et d'autre.
B: Représente la hauteur d'une marche elle est prise du dessus d'une marche au dessus de la suivante.
C: Représente la pente de l'escalier elle prise aussi sur la ligne de foulée.
C'est donc une partie de la ligne de foulée tant en élévation que en plan.
Remarques: A,B,C sont égaux à toutes les marches du même escalier.
Il en découle que tous les girons sont égaux; ainsi que les hauteurs des marches et la pente pris sur la ligne de foulée.
Les praticiens expérimentés pourront objecter que le giron peux varier selon les volées , ou s'élargir dans les parties balancées, ou faire des hauteurs de marches progressives pour résoudre des problèmes d'échappée. Mais à des fins de simplification je me tiendrai au cas courants.
Voila nous avons à peu prés défini les 3 paramètres qui vont nous permettre de satisfaire à notre cahier des charges.
Etude du pas, Blondel, Pente?
Dans notre cahier des charges nous avons dit que notre escalier devait se monter et se descendre facilement.
Pour rappel sur l'horizontal un pas représente 630 mm environ , et plus on s'éloigne de l'horizontal et que la pente s'accentue plus le pas va lui diminuer.
Pour prendre en compte ces paramètres le menuisier à recours à la formule dite de Blondel
La formule est la suivante 2h de marches + 1 girons = 2 pieds soit 648 mm
Dans son ouvrage Blondel écrit : La longueur du pas aisé d'un homme qui marche de niveau est de deux pieds et la hauteur de celui qui monte à une échelle dressée à l'aplomb n'est que d'un pied.
Il en déduit que chaque partie en hauteur doit être compensée par deux parties de niveau.
D'où sa proposition de marche idéale de 1 pied pour une hauteur de sa moitié, soit une marche de 320 mm pour une hauteur de 160 mm ( mesures arrondies ) .
Néanmoins depuis le XVII les hauteurs d'étages de nos maisons et l'importance donnée à l'escalier n'est plus la même et il est difficile de se tenir au module de Blonde de 648 mm .
De nos jour il vaux mieux se tenir à un module préférentiel de 630 mm (590 à 640 mm).
Mais avant tout savoir l'apprécier je m'explique prenons deux modules identiques à savoir :
1) marche idéale de Blondel h= 160 mm g= 320mm module = 640 mmm
2) h= 210mm g= 220mm module = 640 mm
Dans ces deux propositions ayant un module identique si on fait le rapport le partie horizontale sur la partie verticale nous voyons que dans un cas cela représente la moitié et dans l'autre cas elle est quasi identique.
Sachant que l'effort consenti pour gravir l'escalier sera d'autant plus important que plus sa partie verticale sera grande par rapport à sa partie horizontal. Il est ici facile de faire son choix.
Il est donc essentiel d'apprécier le rapport entre la composante verticale et horizontale dans l'utilisation du module.
Alors peut on avoir un moyen pour apprécier son escalier plus objectif, cela sera le sujet du prochain chapitre?
La pente; les coefficients
Il est temps de faire intervenir les trois paramètres découverts plus haut.
Prenons la marche idéale de Blondel
Regardons là sur le croquis 2.
Mettons en corrélation les trois paramètres vus plus haut avec la marche idéale de Blondel, nous pouvons par calcul trigonométrique, logiciel de dessin, ou simple
rapporteur en tirer la valeur d'une pente ici égale à 26,6°.
La pente étant constante sur la ligne de foulée nous avons donc la pente idéale pour un escalier selon Blondel.
De nos jour cela donnerai des escaliers trop important nous allons retenir pour nos exemples une hauteur de marche de 180 mm pour un giron de 270 mm .
Il en découle un module de : 2 x 180 + 270 soit 630 mm
Alors pourquoi ce choix : Cela est assez simple d'une part il correspond au module et d'autre part je calcul mal et si regarde de plus prés la hauteur de marche de 180 mm représente les 2/3 du giron donc pour passer de la hauteur de marche au giron il suffit de multiplier par 1.5.
Pour faire plus simple il suffit de rajouter à la hauteur de marche sa moitié pour avoir son giron.
Voyons toute suite l'utilité , vous êtes chez le client la hauteur à monter est facile à prendre disons 2700 mm . Nous allons le voir en détail par la suite mais le petit triangle qui réunis les trois paramètres se reproduit à l'identique sur la ligne de foulée sur l'ensemble de l'escalier.
Donc si j'applique le même raisonnement à la hauteur totale à savoir 2700 et que je rajoute sa moitié soit 1350 j'obtient 4050 mm .
4050 - 270 = 3780 mm est donc la longueur de la ligne de foulée que je dois dégager au sol pour avoir un escalier avec des hauteur de 180 mm et des girons de 270 mm .
Ici il y a un point très important à prendre en considération appuyons nous sur un petit croquis
(figure 3 ) qui représente un escalier à deux marches. Faisons l'élévation en matérialisant la ligne de foulée en plan et élévation. On s'aperçoit que la ligne de foulée passe par le nez des marches et vient en intersection avec le sol. Il y a dans ce cas autant de hauteurs de marche que de Girons. Il faudra donc retrancher un giron pour avoir la vraie emprise de l'escalier.
oui je vous vois venir votre objection on ne peux pas faire toujours des escaliers avec des hauteurs de 180 mm et des girons de 270 mm .
En soit vous avez raison nous avons pris un exemple ou la relation entre la hauteur de marche et le giron et relié par un coefficient de 1.5.
soit 180 x 1.5 = 270 ce qui correspond à un module de 630 = 2 x 180 + 270.
Néanmoins comme dit plus haut nous pouvons faire varier le module de 590 à 640 mm . Donc en laissant la hauteur de marche constante à savoir 180 mm je peux faire varier le giron de moins 40 mm à plus 10 mm .
Dans notre exemple nous avons 15 hauteurs de marche (2700 /180 =15 ), soit 14 marches .
Si on perd 40 mm par marche nous aurons un rétrécissement de la ligne de foulée de la 14 x 40 = 560 mm et à contrario un allongement 14 x 10 = 140 mm ( il faut rester dans un giron réaliste, place pour le pied ) , donc l'étendue au sol peux être contenu entre 3780 - 560 = 3220 et 3780 + 140 = 3920.
Nous voyons déjà que nous dégageons une plage de réglage assez importante tout en restant dans le module .
Il toutefois bon d'éviter les valeurs extrêmes la pente pour un escalier et bien au alentour de 32° à 34°.
Mais nous pouvons encore faire varier le nombre de hauteur de marche tout en restant dans le module.
Il est possible d'enlever une hauteur ou en rajouter une, donc en gardant notre exemple soit 14 hauteurs ou 16 hauteurs.
Nous avions déjà dégager un coefficient de 1.5 nous allons ajouter les coefficients de 1.25 et de 1.75 .
Résumons
-appliquons un coefficient de 1.25 pour 14 hauteurs soit 13 marches. 2700 x 1.25 = 3375 mm - 241 mm = 3134 mm
-nous avons déjà appliqué le coefficient de 1.5 pour 15 hauteurs soit 14 marches 2700 x 1.5 = 4050 mm - 270 mm = 3780
- reste à appliquer le coefficient de 1.75 pour 16 hauteurs soit 15 marches 2700 x 1.75 = 4725 mm - 296 mm = 4429
Les hauteurs de marches seront respectivement
14 H = 193 soit un giron de 193 x 1.25 = 241 d'où un module de 2 x 193 + 241 = 627
15 H = 180 soit un giron de 180 x 1.5 = 270 d'où un module de 2 x 180 + 270 = 630
16 H = 169 soit un giron de 169 x 1.75 = 296 d'où un module de 2 x 169 + 296 = 634
En sachant que nous pouvons faire varier le giron en restant à l'intérieur du module et en gardant un giron suffisant pour poser le pied ( 230 mm ) et ne pas dépasser plus de (300 mm)
L'étendue ira donc de 2994 mm à environ 4490 mm .
Cela peux paraitre assez touffu mais enfin de compte il suffit de retenir les trois coefficients (je dirai que celui de 1.5 est presque suffisant dans la majorité des cas).
Pour l'instant je n'ai fait que quelques opération basique et j'ai déjà une bonne idée de la faisabilité du projet directement sur le chantier dans un temps très court.
Les paragraphes suivants vont rentrer dans la mise en œuvre de ces trois paramètres afin de finaliser la conception de l'escalier.
Mise en pratique.
Comme dit plus haut un escalier est une suite de gradins, pour préciser c'est la suite d'une surface plane horizontale: la marche immédiatement suivi par une surface verticale : la hauteur de marche.
Je pense que pour bien comprendre la théorie, envisager plutôt de considérer un escalier comme un plan incliné dans lequel on pratique des entailles: les marches
En effet quelque soit la forme de l'escalier que vous envisager : Droit, Tournant , courbe , rampe sur rampe, etc.
Le développement pris sur sa ligne de foulée est une droite et forme sur l'élévation un plan incliné.
Cette considération est primordiale ne voyez plus un escalier comme une suite de marches et de hauteurs voyez un plan incliné régulier.
Faisons le croquis d'un deux marches (figure 4 ) nous voyons qu'un escalier est avant tout l'empilage de triangles égaux sur la ligne de foulée dont les deux cotés sont respectivement la marche et l'autre la hauteur de marche, le troisième coté est l ‘hypoténuse et donne la pente de l'escalier. Mis bout à bout ces hypoténuse forme le plan incliné de l'escalier.
Votre escalier est courbe cela ne change rien ( figure 5) Ce petit croquis à pour but de vous montrer que sur la ligne de foulée son développé à toujours pour résultat un plan incliné régulier et cela quelque soit la forme de votre escalier.
A suivre j'espère que jusque là je suis resté assez Clair Je vous donne la suite très prochainement. Je l'édite afin d'avoir des retours sur la clarté du propos.
Etude de cas 1.
Dans la conception d'escalier il y une règle qui malheureusement on ne peux appliquer que rarement.
A savoir que l'on devrait déduire la trémie à partir du dessin de son escalier et non adapter son escalier à la trémie.
Car il faut savoir que pour maximiser l'espace à l'étage il est rare que l'espace au dessus de l'escalier soit entièrement ouvert.
Cela nous mène directement vers un autre paramètre qui conditionne la commodité d'un escalier à savoir l'échappée.
Le mieux est de les définir en s'appuyant sur un petit croquis (figure 6)
L'échappée est l'espace libre disponible entre un obstacle supérieur (Dalle, poutre, volée supérieure; plafond etc) et l'escalier. Elle se mesure sur la ligne de foulée a l'aplomb du nez de marche le plus prés de l'obstacle. Pour la commodité de l'escalier elle doit permettre évidement le passage des personnes mais aussi les éventuels coltinages .
Sur le croquis elle correspond à la distance entre la marche et la dalle.
Etude 1 : je vous propose de commencer par un cas qui pas ne comporte pas de difficultés.
- hauteur à monter 2700
- épaisseur dalle 280 trémie ouverte sur l'ensemble de l'escalier
- reculée illimité
- escalier droit
La méthode est graphique en utilisant un logiciel de dessin ou une feuille de papier et en traçant au dixième faire une élévation de la cage , porter la hauteur à monter 2700 puis en multipliant cette hauteur successivement par les trois coefficient vous obtiendrez les reculées au sol à savoir 3375;4050;4725. (figure 7 )
Nous savons que pour le coefficient de 1.5 nous visons une hauteur de marche de 180 mm .
Donc reprenons la hauteur à monter soit 2700 mm et divisons la par 180 nous obtenons 15 hauteurs soit 14 marches.
15 hauteurs soit 2700/15 = 180 ----------180 est donc la hauteur de marche
L'étendue au sol soit 4050/15 = 270 -----270 est donc le giron
L'étendue au sol pour le coefficient 1.5 va de l'aplomb de l'arrivée de l'escalier au croisement de la ligne rouge avec le sol coté 4050.
Attention cela va définir autant de marche que de hauteur la première marche étant au sol et ne faisant pas partie du futur escalier. (figure 8)
Sur la figure 8 je n'ai garder que cas correspondant au coefficient 1.5 .
Nous constatons que la dernière marche est en réalité le palier et qu'il y a une absence de trémie.
Afin d'assurer la liaison avec le sol de l'arrivée et aussi de permettre l'habillage de la trémie le menuisier utilise une marche palière ou plaquette d'arrivée .
Nous allons donc rajouter cela ce qui aura pour conséquence de réduire la reculée de la valeur de la plaquette qui déborde dans la trémie.
De plus nous allons voir ou placer la trémie pour avoir une échappée de 2000 mm.
Sur la figure 9 qui reprend les dimensions du cas précèdent commencer par placer une plaquette de 100 mm puis suivre le même ordre d'opérations. La ligne de foulée partira maintenant du nez de la plaquette.
Pour le placement de la trémie rien de plus simple il suffit de tracer une parallèle au dessous de la dalle supérieur et ceci distante de 2000 mm son croisement avec l'élévation de la ligne de foulée donnera l'aplomb de la trémie ( attention tenir compte d'un éventuel habillage.)
La figure 9 montre la démarche à suivre.
Alors rien d'extraordinaire donc je vous propose de passer d'un cas ou nous n'avions pas de contraintes à un cas ou la trémie est en place et l'escalier est un quart tournant.
Cela sera le propos du cas numéro 2
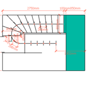
Etude de cas 2
Données du chantier:
hauteur à monter 2800 mm
épaisseur plancher 280 mm
dimension trémie (figure 10)
quart tournant droit
Avant propos
Alors comme tout escalier il y a pas une solution au problème mais des solutions plus ou moins bonnes selon la configuration du chantier , je me permet de vous livrer les propos de kaj que je partage l'escalier est l'art du compromis.
Nous avons ici une cage de 850 mm de large nous envisageons donc de faire un escalier de 800 mm de large afin de laisser le passage de main au niveau de la trémie (mesure à définir en tenant compte de l'habillage de la trémie).
Ordre des opération au dixième ou sur ordinateur d'après les relevés du chantier.
- implanter la cage avec la trace de la trémie
- implanter la ligne de foulée
- tracer l'élévation développée de l'escalier en y plaçant la trémie mesure prise sur le plan ou calculer depuis l'arrivée de l'escalier ( calcul 1200 + 1/4 périmètre cercle r400 + 1050 )
- Sur l'élévation ajouter plaquette et habillage de trémie
- mener une parallèle distante de 2000 mm (échappée désirée ) au dessous de la dalle
- descendre l'aplomb de l'habillage de trémie son croisement avec la parallèle précédente donne le point A
-Par le nez de la plaquette et le point A tirer une droite dont le croisement au sol donne l'étendue au sol.
Analyse des premiers résultats (figure 11 ).
Avec une échappée de 2000m l'étendue au sol est de de 3362 mm et la pente est de presque 40° d'ailleurs 3362/2800 = 1.2 donc avec un petit coefficient.
Donc je poursuis pas plus avant est je trace avec une échappée de 1900 mm qui me donne une étendue de 3517 mm . coef 1.25 pas terrible mais mieux (3517/2800 = 1.25).
On divise 2800 par 180 ( En divisant 180 qui la hauteur d'une marche moyenne on trouve rapidement la hauteur de marche convenable ici on obtient 15.5 donc on essaye 15 hauteurs soit une hauteur de marche de 187 mm il en découle que 3517 /15 = 235 donc giron 235 mm
Alors reprenons notre analyse certes la hauteur de marche est un peu haute mais reste encore acceptable,
le giron est lui plus problématique car assez petit à ce niveau quels facteurs peut-on changer pour améliorer la situation.
- Diminuer encore l'échappée
- Créer un pan coupée au niveau de la trémie pour augmenter l'échappée et la reculée
- jouer sur la taille de la marche palière
- déporter légèrement le centre de l'arc de cercle de la ligne de foulée sur l'extérieure ( déplacer vers l'intérieur la ligne de foulée est une mauvaise idée car l'utilisateur monte et descend toujours au même endroit).
- on peux aussi envisager une marche de moins au prix d'une hauteur de 200 mm soit un giron de 251 mm .
Alors chacun d'entre nous aura une préférence (le débat est ouvert), mais le but est de faire voir comment on peut concevoir rapidement un escalier en tenant compte du pas et de l'échappée simultanément. Car souvent on se lance dans beaucoup de calculs pour s'apercevoir que l'échappée est trop petite.
Ici si l'escalier avait était dessiner avant au départ de la construction un léger recul de la trémie aurait donné un escalier plus satisfaisant. Souvent le calcul de l'échappée se fait numériquement ( hauteur à monter - épaisseur de dalle, sur la troisième marche j'aurai telle échappée. . Bien que cela soit une approche utile cela n'est pas assez précis .
Voyons un autre cas ou nous somme limité en reculée. ( A suivre )
Etude cas 3
Concevoir un escalier qui desserve le palier du haut et un niveau intermédiaire tout en laissant une place suffisante pour un accès à un placard en bas.
La figure 12 et 13 donne les dimensions du chantier.
hauteur totale à monter 2900
hauteur intermédiaire 875
palier haut maçonnerie largeur 850
La forme de l'escalier est à définir ; la trémie est sur l'ensemble de la cage.
Dans l'escalier il n' y a pas une solution, il y ne s'agit pas de rentrer dans les détails il faut juste définir la conception avec le nombres de marches leurs hauteurs ainsi que la forme de l'escalier.
L'éventuel balancement et les adaptations techniques viendrons après l'étude de faisabilité .
Afin de vous laisser cogiter je vous propose ma solution et ma démarche dans le chapitre suivant.
Solution cas 3
la porte dans la cage d'escalier impose un palier pour être bien desservie.
La hauteur à monter totale est de 2900 mm la porte elle est à une hauteur de 875 mm soit une différence de 2900-875 = 2025
2025 n'étant pas un multiple de 875 les volées n'auront pas la même hauteur.
afin de minimiser la place je vais partir sur un rampe sur rampe.
En premier lieu je vais dessiner au dixième ou à l' ordinateur le plan en situant la porte.
Puis en n'oubliant pas la plaquette d'arrivée j'implante la ligne de foulée. (figure 14 )
Alors j ai 2050 mm à monter
Divisons par 180 mm arrondi cela fait 11 hauteurs soit 2050 /11 = 186 de hauteur
Je regarde avec 12 hauteurs 2050/12 = 171
j'opte pour 186 de hauteur car en mesurant ma ligne de foulée jusqu'au droit de la porte je trouve 2728 mm .
Or 2728 /12 = 227 le giron serait trop étriqué.
2728 /11 = 248 nous somme mieux .
D'autant que la mesure est prise au droit de la porte je vais pouvoir réavancer ma ligne de foulée de 200 mm soit 2728 +200 =2928 que je divise par 11 et j'obtient un giron de 266 mm .
2x186+266 = 638 le module n'est pas mauvais.
Alors pourquoi avancer ma ligne de foulée de 200 mm comme j'ai diviser la ligne de foulée avec le même nombre que ma division de hauteur ( 11 ). Le départ de ma ligne de foulée correspond au giron qui est au sol mais c'est le nez de la première marche qui nos intéresse et plus précisément le départ du limon de mur qui ne doit pas dépasser dans l'ouverture.
Un petit croquis sera plus explicite (figure 15) nous voyons sur le croquis l'élévation d'un petit limon avec sa ligne de foulée qui vient au sol et nous constatons la différence des aplombs du nez marche 1 et le début du limon qui ici est de 60mm. Les 200mm sont là pour tenir compte de cette différence .
Maintenant nous allons nous occuper du palier et de la première volée.
Avant je vais balancer rapidement à l'œil la seconde volée en agrandissant la première marche de 15 mm à 20 mm au nez et gironnant la partie droite pour donner plus d'entrée je vais aussi gironner le collet de la seconde.
A ce stade c'est simplement pour se donner une idée, cela repris dans le dessin finale.
Je prolonge ma ligne de foulée sur le palier de trois girons (cela sera à adapter dans un second temps en prenant en considération la valeur du collet pour avoir une main courante agréable )
(figure 16)
le palier étant à 875 mm de haut nous aurons 875/180=4.8 nous allons donc mettre 5 marches pour se rapprocher le plus de la hauteur de la seconde volée.
Nous aurons donc une hauteur de marche de 175 en utilisant un coefficient de 1.5 j'ai 875x1.5= 1312
Je divise 1312 par 5 et trouve un giron de 262 . je vais l'agrandir un peu pour me rapprocher du giron de la seconde volée soit 280.
Je reporte cela sur le plan
j' obtient donc une ligne de foulée complète que je divise pour marquer le nez des marches (figure 18).
Voilà l'étude est à peu près finie comme pour la seconde volée je matérialise les marches en agrandissant la première et en l'arrondissant. ( figure 19 ).
Cette petite étude nous permet de statuer sur la faisabilité du projet.
Nous constatons un départ de la seconde volée fortement balancée ce qui n'est pas des plus facile pour l'utilisateur . La question se posera sur la réalisation d'un rampe sur rampe ou faire un escalier à noyaux ou un deux quart tournant.
Bien que les deux volées n'ai pas la même hauteur de marche la différence n'est pas très grande et le module est similaire.
il sera possible de 'augmenter légèrement le giron dans le tournant pour le rendre plus praticable.
Je précise que l'étude ne s'attarde pas sur le balancement et autre détails technique afférant à l'escalier , ce n'est qu'une étude de faisabilité le reste intervient dans un second temps.
Cela pourrait faire l'objet d'un autre pas à pas. En attendant je ne saurai trop vous conseiller de lire le pas à pas de sylvainlefrancomtois sur l'escalier afin d'avoir une vue plus complète sur le sujet.

Discussions
Super ce pas à pas
vivement la suite !
(et tu n'oublieras pas de faire un chapitre sur le balancement des escaliers à quart tournant, n'est-ce pas
)
Génial, c'est super intéressant, merci !
Bonbonveronbi tu vas faire des heureux.. Je trouve tes explications très abordables pour des néophytes, bravo
. Juste une petite question, dans tes démonstrations, quand tu calcules avec le coefficient, tu décomptes un giron à la fin pour décompter la plaquette d'arrivée. Mais tu n'en tiens pas compte dans tes calculs pour la reculée (4050-(270-la plaquette) normalement. C'est peut être fait exprès ? 
Bonne continuation, Ardennais.
Effectivement pour l’instant je n’ai pas abordé la plaquette ainsi que les facteurs qui limite la reculée.
Je veux essayer de y aller graduellement avec le moins de termes techniques possibles.
Le choix de ne pas introduire tout de suite la plaquette vient que en théorie elle n’est pas indispensable , pour nous menuisiers c’est une évidence mais les serruriers y ont moins recours ainsi que les maçons par exemple.
Mais elle sera évidemment présente dans la suite du propos.
Merci pour ton retour.
Bonbonveronbi c'est ce que je me suis dit en tant qu'enseignant.. Ne pas surcharger d'infos au départ. Le hic, c'est vu qu'on va y ajouter une plaquette ensuite, notre reculée va bouger, donc le calcul avec coefficient de base ne permet plus de savoir où l'escalier va arriver réellement. C'est une contradiction (désolé je chipote
). En tout cas bravo 
Tout est très clair et agréable à lire.
Pour l'instant tu te place dans l'hypothèse ou l'étendue est assez libre avec une possibilité de réglage éventuel. Dans la quasi totalité des escaliers que j'ai calculé les contraintes imposent souvent un départ et une arrivée (et beaucoup d'autres impératifs également). Il faudra faire le mieux ou "le moins mal" possible en gardant évidement en tête les principes que tu viens d'énoncer. Le calcul d'un escalier c'est un peu "l'art du compromis".
Merci pour ce nouveau pas à pas.
kaj
Le calcul d'un escalier c'est un peu "l'art du compromis".
Bon-sang, que cette phrase sonne bien!
Bonjour
Effectivement cela va être la suite de mon propos .
Ce pas à pas est à destination des débutants j aimerais autant que possible introduire le moins de vocabulaire technique et aller graduellement dans la difficulté. Pour l’instant je n’ai pas abordé les notions d’échappée ni d’habillage de trémie ainsi que tout les limitations de reculée .
Je voudrais proposer une étude de conception plutôt graphique afin de guider au choix qui comme tu le souligne relève souvent du compromis.
Ton retour est important car il va m’aider pour la suite .
Merci
hello
"Ce pas à pas est à destination des débutants j aimerais autant que possible introduire le moins de vocabulaire technique et aller graduellement dans la difficulté"
ici est le plus compliqué !
il y a un petit truc mnémotechnique facile, c'est ce que les maçons appellent le "pas en or, ou pas d'or", du moins ce que j'ai souvent entendu et pratiqué en coffrage et conservé dans ma carrière !
Eux calculent un escalier avec blondel, mais en plus il se basent sur approchant au max ideal de 17/27 donc 2h 17 cm + 1 g 27cm = 61 cm
C'est surtout que la taille moyenne des hommes (on ne mesurait pas les femmes, uniquement les recrues militaires) a augmenté de 15cm dans l'intervalle, ça fait une différence sensible !
Avec des hommes de 1,61m en moyenne, et certainement des femmes encore plus petites, toute mesure de l'époque nous paraîtra petite à nous autres géants de leur futur…
"Comme dit plus haut un escalier est une suite de gradins, pour préciser c'est la suite d'une surface plane horizontale: la marche immédiatement suivi par une surface verticale : la hauteur de marche."
En Projection Verticale c'est une succession de 'Bandes rectangulaires' à longueurs + ou - variables, selon.
"Je pense que pour bien comprendre la théorie, envisager plutôt de considérer un escalier comme un plan incliné dans lequel on pratique des entailles: les marches."
Alors pour le principe de l'Entaille', Ok.
"Le développement pris sur sa ligne de foulée est une droite et forme sur l'élévation un plan incliné."
"Cette considération est primordiale ne voyez plus un escalier comme une suite de marches et de hauteurs voyez un plan incliné régulier.
"Faisons le croquis d'un deux marches (figure 4 ) nous voyons qu'un escalier est avant tout l'empilage de triangles égaux sur la ligne de foulée dont les deux cotés sont respectivement la marche et l'autre la hauteur de marche, le troisième coté est l ‘hypoténuse et donne la pente de l'escalier. Mis bout à bout ces hypoténuse forme le plan incliné de l'escalier."
Pour les 'L.de F. //es' à la 'Principale', ce n'est plus le cas..... donc plus de Pentes Rectilignes égales !!
"Votre escalier est courbe cela ne change rien ( figure 5) Ce petit croquis à pour but de vous montrer que sur la ligne de foulée son développé à toujours pour résultat un plan incliné régulier et cela quelque soit la forme de votre escalier."
"A suivre j'espère que jusque là je suis resté assez Clair Je vous donne la suite très prochainement. Je l'édite afin d'avoir des retours sur la clarté du propos."
Voila les miens pour plus de clarté Géométrique. Très bonne suite... il y a beaucoup à dire pour créer un Escalier correct et plus 'gracieux', selon.
Bonjour
Sur le premier point je suis d'accord avec vous mais je ne dit pas le contraire rectangles ou trapèzes c'est bien des surfaces planes.
Sur les points suivants mon propos est de faire comprendre que sur la ligne de foulée les girons et les hauteurs sont constants sur l'ensemble de l'escalier.
il en découle que le développement sera une ligne droite sur laquelle on pourra poser un plan incliné.
Alors géométriquement cela n'est pas tout fait juste car par exemple le triangle de pente ne coïncide pas tout à fait dans les partie courbes de la ligne de foulée .
Comme tout trait de menuiserie le tracé d'escalier diffère de la géométrie Descriptive car il prend en compte la matière ,la solidité , le temps d'exécution et le rendu.
En quoi il tolère quelques imprécisions qui néanmoins je vous suis reconnaissant de relever.
Re,
C'est pourquoi j'ai parlé d'une Surface Connoïdale, définie par des Droites Horizontales (Nez de Marches), reposant sur la 'L. de P. Principale'.... et sur une autre Ligne q.c.q de Convergence, selon.
Cette Surface Réglée décrite ainsi, selon le type d'escalier étudié, sera LA 'Surface Mère', pour la bonne création de l'Escalier, quel qu'il soit. C'est comme cela que l'on va pouvoir contrôler la continuité des Courbures de cette Surface connoïdale, du Début à la Fin, selon (Départ à Arrivée ou l'inverse).
N'oublions pas qu' un Escalier Balancé ou partiellement Balancée, est composé en Plan d'Eléments Droits, Courbes (Avec Paliers plus ou moins contraints), et qu' on doit à leurs raccordements assurer la continuité de la 'Surface Mère' décrite.
Après vérification d'autres 'Problèmes Spaciaux' avec l'Environnement, on pourra rentrer dans les 'Détails géométriques'.... pour 'tricher' le moins possible !!
J'ajoute que Surfaces Verticales, planes ou pas, constituants les Côtés Jour et les Côtés Echiffre virtuels ou réels vont couper le Surface Connoîdale Mère.... le reste 'SUIVRA' géométriquement (Les Tracages, selon).
".. le Tracé diffère de la Géométrie Descriptive..." : Pourquoi ? On y est plein dedans.... et en plus on pourra montrer certaines 'Conneries' conscientes ou pas, mais facilement démontrantes, hélas souvent trop tard (Jarrets, ruptures de Pentes, etc...).
Mais "1ere Erreur, première Vérité"....
Bonne suite.
Excellent, merci beaucoup !