Ce pas à pas présente un projet en cours de réalisation.
Comme beaucoup, ce premier projet conséquent est l'occasion de tester des nouvelles techniques et de me familiariser avec mes nouveaux outils.
Je vous propose donc ce pas à pas de la réalisation d'un établi ... de menuisier, ... MFTC, ... un truc avec un plateau, des éléments de serrage et des rangements qui je l'espère me rendra de nombreux services et correspondra à mes besoins.
Liste des articles
Conception
Après avoir beaucoup observé les établis réalisés par les boiseux de l'air du bois et d'autres sites.
J'ai décidé d'abandonner mes tréteaux et la porte qu'ils soutenaient pour me lancer dans l'élaboration d'un établi qui correspondrait à mes besoins et à l'espace dont je dispose.
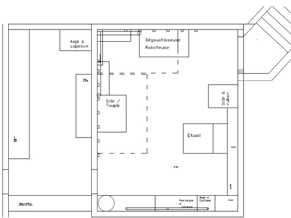
Pour l'espace : un atelier d'environ 4m par 5m avec une scie/toupie, une rabot/dégau et une scie à ruban, l'aspi à copeau étant déporté dans une cave à coté avec le stockage du bois. Y a ce qu'il faut mais rien de trop.
L'idée est donc de créer un établi qui en position de croisière pourra assurer 90% des travaux et qui puisse moyennant quelques déplacements assurer 8% des restants (je pense surtout à l'encombrement).
Après hésitation entre un établi central type établi de menuisier ou l'établi collé au mur type MFTC ou celui de Zeloko, j'ai opté pour un établi dont un coté touche le mur et dont trois autres sont libres.
Les avantages que j'y projette : possibilité d'aborder la réalisation en cours par 3 cotés, multiplier les espaces de rangement de petits matériels. Augmenter de manière occasionnelle la surface de travail en ayant juste à tirer l'établi puis la rallonge.
Le choix des systèmes de serrage : une presse double en frontal pour les possibilités de serrage de pièces mais aussi de gabarits d'usinage. (Merci Zeloko pour tes vidéos et l'usage que tu nous montres de celle-ci.)
Des rails et des trous sur les cotés (de type MFTC non réalisé sur le plan) pour des serrages occasionnels de grandes pièces.
Les rangements : à voir lors de l'utilisation pour le moment je projette des tiroirs mais une ou des étagères traversantes pourraient être utiles pour entreposer des gabarits ...
En tout cas je laisse un espace libre sur l'espace avant pour stocker les machines utilisées dans la réalisation en cours.
Bon après avoir agiter tout cela quelques temps j'en suis arrivé à ce projet ci:
L'objectif étant lors de la réalisation de tester :
du tenonnage/mortaisage ;
de l'assemblage à mi-bois ;
du rainurage ;
du toupillage arrêté ;
Corroyage et tennonage
Bon je m'étends pas, on en passe tous par là : choix du bois (de beaux restes) puis mises aux dimensions.
Juste une p'te photo pour la mise à longueur des traverses à l'aide d'une chute de poteau afin de ne pas avoir à mesurer.
Choix de la disposition des poteaux et traçage de l'assemblage à mi-bois des poteaux (en testant le je ne mesure pas) avant passage au disque à tennoner.
Mortaises et mi-bois
Réalisation des mortaises à la défonceuse (fraise + bague de copiage) à l'aide d'un gabarit (qui a du être réajusté à l'aide d'une petite cale)
L'assemblage à mi-bois des traverses réalisé à la défonceuse avec rail de guidage. Puis celui des poteaux avant réalisés à la scie circulaire au chariot. (J'ai ainsi pu tester 3 techniques pour la réalisation d'assemblage à mi-bois, chacune ayant ses avantages et inconvénients)
Puis une mortaise réalisée au ciseau à bois pour le renfort de la tablette en façade.
1er collages et réalisation des trous de la presse frontale
Insertion de rail dans les piètements et les traverses hautes.
Pendant que les piètements du milieu et arrière étaient en cours de collage, j'ai réalisé les trous de la presse frontale.
Pour être sur que les perçages des différents éléments seraient bien en face je les ai maintenus ensemble à l'aide de serres-joints durant tous les usinages.
Il a fallu rusé un peu car un débattement de 55 mm pour percer sur 75mm, c'est un peu juste. J'ai donc procédé par retournement.
Assemblage final, montage de la presse frontale et finition
Collage des piètements et des traverses, puis découpe du plateau à le scie sur rail, montage de la presse frontale.
Et quelques couches d'huile pour bains et cuisine qui me restait du plan de travail de la salle de bain.
Modification du système de rallonge
Sur le plan j'avais au départ prévu de réaliser les rallonges avec des tuyaux récupérés sur l'ancien système de chauffage. Faute d'avoir pu trouver un moyen rapide de réaliser des trous de 29 mm, je me suis rabattu sur un autre système avec des profilés alu qui trainaient dans le garage.
Défonceuse sous table
Après quelques mois d'utilisation, j'ai ajouté un élément amovible permettant d'utiliser une défonceuse sous table.
A l’utilisation c'est très pratique, un tour de vis sur la presse de l'établi et c'est parti ...
Pour les changements de fraises ou le réglage de la profondeur, la défonceuse restant en avant de la presse tout est facilement accessible.
Pour que module soit facilement accessible, l'espace initialement prévu pour des tiroirs servira finalement de zone de stockage pour la défonceuse sous table et autres gabarits à venir...
Reste à trouver comment câbler ce Mrfrgrbl d'interrupteur magnétique récupéré sur l'aspi à copeau.
Ce pas à pas présente un projet en cours de réalisation.

Discussions
Sympa, vivement la suite.
PS: 20m2 c'est le réve pour tous ceux qui on moitié...
Pareil, vivement la suite !
Pareil, je suis! Sapin de charpente pour le bois ? plateau en sapin aussi ?
Niouniou Pour la structure je pense que c'est essentiellement du pin. Provenance, diverses récup et un achat de bois aux enchères (des chutes d'un menuisier partant à la retraite, pas de gros morceau mais de quoi s'entrainer et faire qlq p'te réalisations). Le plateau sera pour le moment en MdF, c'est ce que j'ai sous la main.
Plein de bonnes idées à prendre... bravo pour le boulot déjà effectué!
vivement la suite...
Le petit raccord électrique au domino qui va bien pour la défonceuse ;)
Sympa cet établi !
Merci....
zeloko oui, enfin de flippe un peu chaque fois que je la mets en route.
Bel établi; polyvalent et sur mesure c'est le top.
Petit point technique : Pour tracer des entailles mi-bois, il te faut un trusquin.
Pas de mesure, mais pas d'essais non plus, c'est un résultat garanti en quelques secondes.
Premier réglage "à l'œil". Par retournement, en bout de pièce, tu traces une marque depuis les deux côtés de la pièce.
Tu ajustes le trusquin jusqu'à ce que tu n'ai plus qu'une seule marque lorsque tu traces depuis les deux côtés.
Tu es alors sûr d'être parfaitement centré sans avoir fait ni mesure ni calcul, le tout prend moins d'une minute !
Merci jeanco77. C'est vrai que j'en ai pas et que plus ça va plus je me rends compte qu'un travail soigné passe par l'ajustage et la limitation du nb de mesure. Il faut vraiment que je prenne 1/2h pour me faire un trusquin voir plusieurs si je veux garder plusieurs mesure en mémoire.
Bonjour,
je dispose de l'ancien établi de mon père que je souhaite mettre à jour en ajoutant une presse double comme la tienne. Juste une question : quel type de vis as tu utilisé ? sont-elles synchro avec un système de chaine ou indépendantes l'une de l'autre ?
Enfin, aurais tu qq photos/plans du montage de cette presse sous l'établi ?
Merci d'avance !