Ce pas à pas présente un projet en cours de réalisation.
Un copain m'a demandé, Pinterest à l'appui, de lui fabriquer un "banc médiéval" qui trônera dans son entrée. (la photo de présentation de l'article est un rendu de ma conception, pas de Pinterest)
C'est mon premier défi de taille !
Le design est globalement imposé, ainsi que l'encombrement.
Là ou je me suis un peu pris la tête, c'est que monsieur mon pote souhaite que les cotés du banc soient en bois massif; ce qui n'est pas sans poser des problèmes de conception.
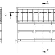
Conception
La structure est composée de deux panneaux latéraux, et de 5 traverses.
Les traverses sont montées dans les panneaux à l'aide de tenons-mortaise.
Pour la fabrication des panneaux, le process envisagé est, si l'on considère que les panneaux sont constitués de 4 planches collées à plat :
1°) mortaisage des planches extérieures
2°) collage des 4 planches pour faire le panneau, en alignant les mortaises
3°) découpe du panneau.
Deux cloisons sont posées entre les traverses à l'aide de trous oblongs, pour autoriser les panneaux latéraux à se déformer, et donc les traverses avant à se déplacer par rapport aux traverses arrières.
les deux traverses arrières supérieures sont rainurées pour accueillir des lames de fond.
l'assise et les étagères sont vissées par en dessous.
Je me suis autant appliqué pour deux raisons :
1°) me forcer a réfléchir de manière aboutie et structurée
2°) Avoir vos avis !
Ce pas à pas présente un projet en cours de réalisation.

Discussions
Joli projet,Ton dessin est pour l'instant très "moderne" il faut retravailler l'extérieur du meuble a mon avis !!
Pour tous ici quelques idées sympas ! en-bois.com/mobilier-médiéval
pinterest.fr/r...et-renaissance/
ici de l'historique fr.wikisource....ècle/Menuiserie
sylvainlefrancomtois , merci pour ton commentaire !
Si par modernité tu entends simplicité, sache que c'est directement lié à mon niveau actuel de compétences :)
un avis sur la séquence mortaisage -> collage du panneau ? Ce sont des choses qui se font ?
PS - je vais dévorer ton lien wikipedia.
Tu peux t'inspirer du "Ambry Cupboard" du XVe déjà reproduit par différents menuisiers. Ici ou dans le livre de Ch Schwartz "The Anarchist Design book": tout est en panneaux (collage à plat joint) assemblés avec feuillure + clous forgés (il y a des clous fabriqués en France... et vendus par Dictum qui imitent parfaitement les clous forgés). Je ferais également ça tout en panneaux avec rainures, feuillures + clous.
Pour la décoration, suivant ton intérêt pour apprendre des choses nouvelles, je te conseille le "Joiner's Work" de Peter Follansbee, édité par Lost Art Press (la maison d'édition de Ch. Schwartz). Il est spécialisé dans la reproduction de techniques et mobiliers du XVIIe anglo-américain; même si la période ne semble pas coller en fait ça reste du style gothique. (La continuité du style gothique chez nos cousins est telle qu'ils ont du mal à dater/définir un style néo-gothique!)
Tu peux essayer de regarder quelques vidéos de Peter Follansbee, ou son blog: il cherche à montrer à quel point ces motifs sont accessibles: il suffit de quelques gouges et de savoir répéter un schéma. Perso, j'ai juste essayé quelques frises géométriques. C'est pas tous les jours qu'on me demande du pur gothique... Si besoin je peux te scanner quelques pages pour que tu te fasses une idée.
Merci !
Peter follansbee, coté frise, c'est dingue , mais ca me parait un peu inaccessible aujourd'hui.
Je n'ai jamais tenu une gouge en main ; on verra plus tard.
Je vais me plonger dans le livre de C.Schwarz !
Merci encore Guilh63
Bonne lecture.
Pour la difficulté des frises, il y en a (qu'on retrouve dans nos armoires régionales) qui ne demandent que deux ou trois coups de gouge: tout est dans la répétition du geste.
Par exemple:
(1) trace une parallèle au trusquin.
(2) Sur un côté de cette ligne, fait un marque avec une gouge (assez courbe, pas trop large, mais n'importe laquelle fera!) en tenant la gouge bien verticale (un bon gros coup de maillet devrait suffire), le côté concave vers le devant.
(3) Sans retourner ta gouge (elle regarde toujours devant), tu la recules un peu (un petit cm selon la taille de l'outil), et tu viens faire une incision en tenant ta gouge inclinée, la coupe se finissant dans ta première marque.
(4) tu recules de façon et tu recommences les opérations (2) et (3) de façon régulière. Surtout sans traçage: il faut que ce soit un rythme!
(5) tu fais la même chose de l'autre côté de la ligne, en alignant les demi-lunes ainsi formées mais en sens inverse (comme un exercice de symétrie axiale de quand on était petits).
C'est le genre de 'trucs' qui peuvent aller très vite et ne demandent aucune compétence en sculpture. La preuve: j'y arrive!
Quelques idées: pfollansbee.wo...terns-patterns/
Une piste a suivre, Le mobilier moyenâgeux était souvent transportable, donc démontable ! Il faut jouer les tenons sortants muni de clefs ! pinterest.fr/p...H2FvzCHUIYuqJn8
Alexandre Noll a repris plusieurs fois le principe dans ces œuvres artsy.net/artw...noll-side-table
google.com/sea...37&biw=1920
Oui, à ceci près que les coffres étaient justement, à ma connaissance, les meubles qui ne se démontaient pas. Il servaient à transporter tout ce qui devait l'être pour aller dans les châteaux dépourvus de matériel en excédent: vaisselle, linge, vêtements, etc... car ceux-ci étaient coûteux. Mais bon, ils n'avaient pas non plus de tiroirs, donc quitte à faire de la revisite, on peut tout imaginer.
sylvainlefrancomtois , MOWD , merci pour vos réponses.
Le tenon sortant à clef, franchement, ca a de la gueule, coté "gothique".
Je vais essayer de dessiner ça, j'ai peur que pour 5 traverses ça fasse beaucoup. je vous tiens au jus !
Par ailleurs, ce sera mon premier meuble; j'ai envie, tout en faisant plaisir à mon pote, d'utiliser des techniques "traditionnelles" et "modernes" pour développer des compétences réutilisables par la suite.
Une autre solution: assumer le "pseudo médiéval" et s'inspirer du mouvement Art and Crafts. Tu trouveras un meuble pour t'insprier dans ce numéro en ligne de Fine Woodworking page 80. Là encore, c'est un cabinet, pas un banc, mais tu peux reprendre le principe de construction (tenons traversants), les motifs pseudo-gothiques et (mon préféré): la finition à l’ammoniac!
Guilh63 ,
Merci également pour ce second commentaire.
Je savais que les gens ici ont une énorme connaissances des techniques du bois; je commence à ouvrir les yeux sur un autre aspect : culture des artistes, connaissance du style.
Là (page 80 du lien) , on est effectivement très proche de l'esprit initial de la conception. Ca donne à réfléchir.
Raboter le tenon débouchant bois de bout : l'angoisse ? je ne dispose que d'un N°4.
Pour raboter en bois de bout il suffit d'un bon affûtage, d'attaquer en biais et de ne pas dépasser (tu rabotes en partant des deux extrémités). Pour plus de sécurité, tu peux faire un petit chanfrein avant.
Bonsoir,
belle réflexion sur le travail du bois.
il me semble plus facile de coller et calibrer les panneaux avant l’exécution des mortaises pour avoir une bonne précision. Pour les tablettes je supprimerai les tasseaux pour les mettre en rainure avec un petit point de collage juste devant pour la dilatation prévoir un recouvrement de propreté. il y a un problème me semble t'il à la jonction du dessus et des planches arrière en cas de retrait vous aurez un trou. La structure serait telle plus solide si tout était assembler en rainure queue d'aronde?
Bonjour !
Merci Bonbonveronbi pour vos commentaires pertinents.
En fait, c'est vraiment la question sur laquelle j'espérais vos avis éclairés.
Pour tout vous dire, j'ai fabriqué récemment une tour Montessori assemblée en tenon mortaise, et tout s'est passé (presque) comme dans un rêve.
Vous savez comment c'est; quand une première expérience est concluante, ca devient une zone de confort.
Ce que vous suggèrez est effectivement plein de bon sens mais a un impact immédiat : je dois faire mes mortaises à la défonceuse et plus à la mortaiseuses de mon combiné. Je crois que je ferais mieux de l'accepter et de préparer mes gabarits :)
Qu'entendez- vous par recouvrement de propreté ? Un chant pour cacher la rainure proposée ? Pourquoi pas une rainure arrêtée, plutôt ?
Pour les planches du fond, comment trouver l'équilibre du jeu de fin de rainure entre "trou en cas de retrait" et "je casse tout en cas d'expansion ?"
Rainure queue d'aronde, j'y ai pensé, bien sûr, mais c'est trop tôt au vu de mes compétences actuelles.
Merci d'avoir pris le temps de répondre et merci d'avance pour les futures réponses :)