A partir d'un besoin et parce que je possédais deux tasseaux, j'ai réalisé ce petit secrétaire à poser sur un bureau.
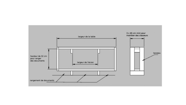
Les parties haute et basse sont réalisées avec 3 longueurs de tasseau assemblées entre-elles, mais peuvent aussi être réalisée en un seul morceau de contre-plaqué ou de MDF. Les sections que j'ai utilisées étaient d'environ de 65x22.
Par manque de matière, les montants latéraux furent ajourés, ce qui ne fut pas un mal. Lorsque j'ai agrandi l'écran informatique logé au milieu, j'ai dû découper le haut du secrétaire, alors il est devenu laid.
Les deux tasseaux verticaux pendants de chaque côté de l'écran permettent l'appui des classeurs et leur similitude avec ceux d'appui du dessous autorise la multiplication du secrétaire vers le haut autant de fois que vous le souhaitez.

Discussions
J'avais une erreur de plan, recharger la plan si nécessaire.