L'Air du Bois est une plateforme Open Source de partage collaboratif ouverte à tous les amoureux du travail du bois. (En savoir plus)

Rejoindre l'Air du Bois Se connecter

SPL

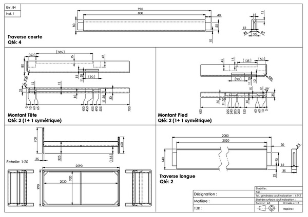
Plan Lit enfant SPL


Lit SPL

Publications associées


Discussions

SPL  a publié le plan "Plan Lit enfant SPL".
il y a 6 ans
Lsda26

Bonjour,
quel logiciel CAO utilisez-vous?

SPL

Bonjour,
C'est Solidworks.

LudoPas

Bonjour,
J'adore ce lit, je suis en plein dedans et j'ai une question concernant les traverses et les mortaises de 90.
Sont-elles debouchantes ?

Merci,

SPL

Bonjour,
Dans le modèle que j'ai fait les mortaises sont borgnes.
Je pense qu'on peut cependant les faire debouchantes avec un système de clef pour verrouiller les traverses. Cela demande juste un usinage plus propre des bouts des tenons qui deviennent visibles.

LudoPas

Ok merci.
Je les ferais borgnes également, je trouve cela plus esthétique sans voir le bout des tenons.

Connectez-vous pour ajouter un commentaire.
1 001 vues
5 commentaires
162 téléchargements

Caractéristiques

PDF  Format
59 Ko  Taille
 1 fichier

Publications associées

0 collection

Tags

Voir aussi