L'Air du Bois est une plateforme Open Source de partage collaboratif ouverte à tous les amoureux du travail du bois. (En savoir plus)

Rejoindre l'Air du Bois Se connecter

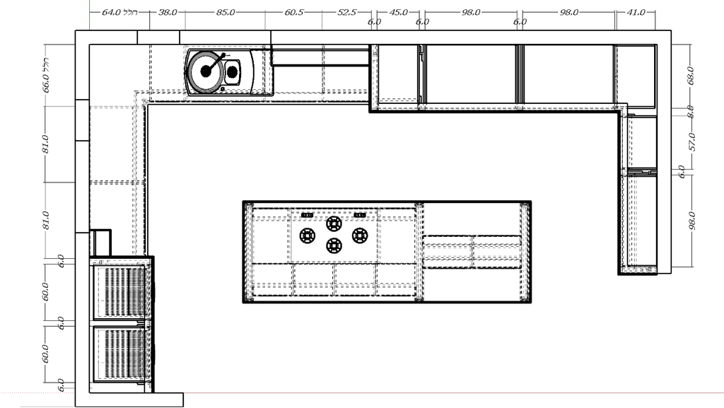
GProject Design

Kitchen


classik kitchen


Discussions

GProjectDesign  a publié le plan "Kitchen".
il y a 2 ans
Connectez-vous pour ajouter un commentaire.
1 157 vues
0 commentaire
281 téléchargements

Caractéristiques

Sketchup  Format
5 Mo  Taille
 1 fichier

Publications associées

0 collection

Tags

Autres plans de GProjectDesign 
Voir aussi