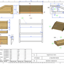
Il s'agit d'un petit chevet qui a été exécuté en CN par mes élève de 1 TMA.
L'objectif était de faire une imbrication de pièces et les programmations liées.
Nous avons choisit du CP 19mm pour la structure et du 12mm pour le tiroir (vérifications au pied à coulisse).
Autres plans de
Johncharles

Discussions