L'Air du Bois est une plateforme Open Source de partage collaboratif ouverte à tous les amoureux du travail du bois. (En savoir plus)
Rejoindre l'Air du Bois Se connecter
Le partage par vignette vous permet d'afficher ce plan sur d'autres sites, comme les forums ou les blogs par exemple.
Choisissez le format approprié et Copiez / Collez le code ci-dessous.
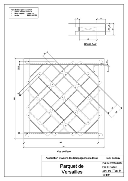
Plan d'un parquet de Versailles
Merci pour le plan, et bravo pour la réalisation, mais il manque un trou de mortaise en bas à gauche.
Avec plaisir, c’est vrai,il en manque un, merci
Pourquoi signalez vous ce contenu ?
Discussions
Merci pour le plan, et bravo pour la réalisation, mais il manque un trou de mortaise en bas à gauche.
Avec plaisir, c’est vrai,il en manque un, merci