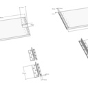
Voici les plans de rallonges de tables de dégauchisseuse pour dresser de grande longueur.
Les tables se montent sur une Kity 1647. Il est sans doute possible de les monter sur les autres modèles Kity en 310 mm comme la 638, ou encore sur d'autres modèles en adaptant les dimensions des rallonges.
                Autres plans de 
Trankil             
            
         
     
     
     
     
     
                                             
            
 
     
    
Discussions