L'Air du Bois est une plateforme Open Source de partage collaboratif ouverte à tous les amoureux du travail du bois. (En savoir plus)

Rejoindre l'Air du Bois Se connecter

LouisLucho13

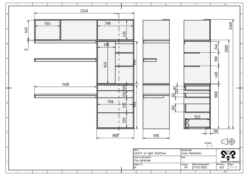
Placard bureau


Plan FreeCAD de mon placard-bureau du coin TV.
Le plan est paramétrable via la feuille de calcul "m" pour master.
Une fois configuré, le paramétrable de FreeCAD est fantastique.
Amusez vous bien

Publications associées


Discussions

LouisLucho13 a publié le plan "Placard bureau".
il y a 11 heures
Connectez-vous pour ajouter un commentaire.
0 coup de coeur
27 vues
0 commentaire
2 téléchargements

Caractéristiques

FreeCAD  Format
86 Ko  Taille
 1 fichier

Publications associées

0 collection

Tags

    Aucun