L'Air du Bois est une plateforme Open Source de partage collaboratif ouverte à tous les amoureux du travail du bois. (En savoir plus)

Rejoindre l'Air du Bois Se connecter

Syldesalpes

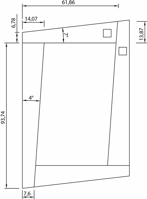
Cadres de glace


J'ai pas retrouvé le plan du troisième.

Publications associées


Discussions

Syldesalpes  a publié le plan "Cadres de glace".
il y a 10 ans
nash

cadre qui sort de l'ordinaire dans ses dimensions et sa conception. Je me lance...Bravo

Connectez-vous pour ajouter un commentaire.
561 vues
1 commentaire
137 téléchargements

Caractéristiques

AutoCAD  Format
23 Ko  Taille
 2 fichiers

Publications associées

0 collection

Tags

Voir aussi