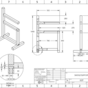
Mise en plan d'un support de selle pour deux selles américaines pesant environs 25 kg chaque.
Le support devait pouvoir entrer dans une armoire, la contrainte principale était la profondeur et la hauteur maximale.
Sur les deux montants porte selle seront ajoutés deux portes licols.
L'ensemble sera réalisé en pin traité et renforcé par quelques équerres par sécurité.

Discussions