Bonjour, je vais faire un escalier extérieur droit non abrité . Pour des raisons de coût je vais devoir partir sur du douglas hors aubier .
Ma première question concernent la section des limons
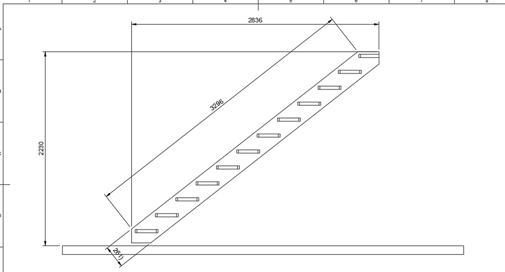
La longueur du limon sera de 3300 mm ( voir plan en pj ) , je suis sur une section de bois de 261*50 mm d'épaisseur , j'ai prévu 30 mm au dessus du nez de marche et 40 mm en dessous , est ce suffisant ou non ?
Ma deuxième question est sur l’emboîtement des marches , je suis parti sur un emboîtement type tenon mortaise comme sur un escalier intérieur , je pensais mettre en finition un saturateur et monter les marche avec du silicone ou mastic type sica pour limiter les entrées d'eau dans les usinages , ce montage vous semble -t-il correct ?
enfin j'aimerais gagner en compétence sur les escalier , j'aimerais savoir si il existe une documentation de référence , j'ai trouvé quelques ouvrage mais avant d'acheter un livre j'aimerais avoir un retour d'une personne expérimentée sur un bon ouvrage ou une bonne documentation .
Merci par avance de votre aide
3 réponses

les limons en 300 par 65 , un décalage de 4 a 5 cm entre l aplomb du nez de marche et l' arriéré de la marche du dessous
un système anti dérapant sur le nez de marche une entaille de 20 mm pour les marches un bois classe 4 un traitement efficace des bois les limons serons isolés du support bas par des éléments en métal pou laisser 2 cm de vide
un joint supplémentaire sera fait sur le dessus de la marche en haut de l'entaille sur le devant et l arrière , les limons peuvent être tenu par 4 tiges en métal boulonnée permettant le démontage
je vous ai expliqué pour le traitement des entailles,
finition soit du carbonil , soit un produit de non huileux du type xylophène
pour le calcul c'est simple vous compter 600 kg au mètre carré en pensant qui faut tenir la souplesse transversale , et je ne connais pas la la largeur de l escalier
sur certaines passerelles on met une résine sur le dessus de la marche avec un abrasif pour éviter la glissade
etienne desthuilliers maitre menuisier

Bonjour, question traitée régulièrement et assez récemment du reste, fais une petite recherche dans les questions .
Les tenons mortaises en extérieur même remplis de mastic ça finit rarement bien... Privilégie la fixation des marches sur tasseaux.
Dans la partie pas a pas tu as une excellente somme de connaissances partagées dans le "traité des escaliers". Tu y trouveras de quoi nourrir une vie de fabrication d'escaliers.