L'Air du Bois est une plateforme Open Source de partage collaboratif ouverte à tous les amoureux du travail du bois. (En savoir plus)

Rejoindre l'Air du Bois Se connecter

1 réponse
Boisbruts

Je comprends bien ce que vous dites, ça me rassure, je vais modifier sa.

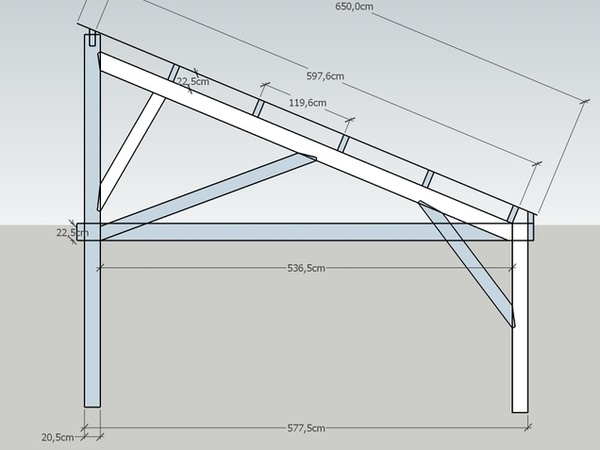
J'ai aussi oublié d'indiquer l'entraxe des pannes qui serai de 120 cm. En enlever une me ferai un entraxe de 150cm, ça devient limite je pense.

Pour ce qui est du poids, à supposé que le toît soit entièrement recouvert de panneaux, il me semble que avec le bac acier + les panneaux, on peut compter 25kg/m² auquel il faudrait ajouter un poids pour la neige, que je ne trouve pas...

Précision pour le mur auquel la bâtiment est adossé, il n'y aucun risque d'avoir de la neige supplémentaire venant de ce mur.

Et rajouter le poids des pannes sans doute pour dimensionner la ferme ? J'ai trouver 15kg par mètre linéaire soit 73kg par panne, çela me semble énorme.. Mais bon.