Se connecter
Astuces
Promouvoir
Le blog
FAQ
Financement
Mentions légales
Créations
Questions
Plans
Pas à pas
Ateliers
Xylothèque
Outils
Livres
Logiciels
Collections
Fournisseurs
Ecoles
Boiseux
Collectifs
Trouvailles
Evènements
Annonces
Processus
Astuces
Le blog
FAQ
Promouvoir
Créations
Questions
Plans
Pas à pas
Ateliers
Catalogues
Xylothèque
Outils
Livres
Logiciels
Collections
Annuaires
Fournisseurs
Ecoles
Boiseux
Collectifs
Trouvailles
Evènements
Plus
Annonces
Processus
Built for Fun
youtube.com/channel/UC5rAZp_n5...
S'abonner
119
Contacter
A propos
Créations
28
Questions
1
Plans
3
Pas à pas
1
Ateliers
1
Trouvailles
2
Récents
Populaires
Plus vus
Préférés
Plus commentés
Plus téléchargés
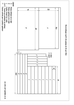
3 plans
Une table d'atelier en mdf
14 192
11
20
2 393
Un établi pour ma scie sur table
8 079
6
18
3 038
Mini établi de maqueterie en bois massif
2 030
3
564