 
    Suite à la réalisation d'un lit en frêne dont je publierai bientôt les plans, j'ai entamé le dessin et la réalisation de deux chevets symétriques. Comme souvent les meubles au dessin simple sont délicat à réaliser proprement, car toutes les imperfections sont très visibles.
Les plans sont disponibles dans l'espace "plan" du site.
Pour la fixation j'utiliserai simplement le célèbre "french cleat" (c'est français, donc on met un nom anglais, j'ai pas compris le truc là  ).
).
Liste des articles
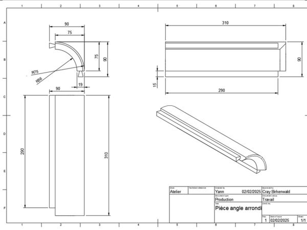
Premier point technique, les arrondis intérieurs
Les arrondis intérieurs font l'objet d'une vidéo complète, le gabarit n'est pas très complexe à réaliser, mais encore faut-il un minimum de soin pour assurer une géométrie correcte.
Pour les raisons énoncées ci-dessus, j'ai fait un plan côté de la pièce d'angle arrondi :
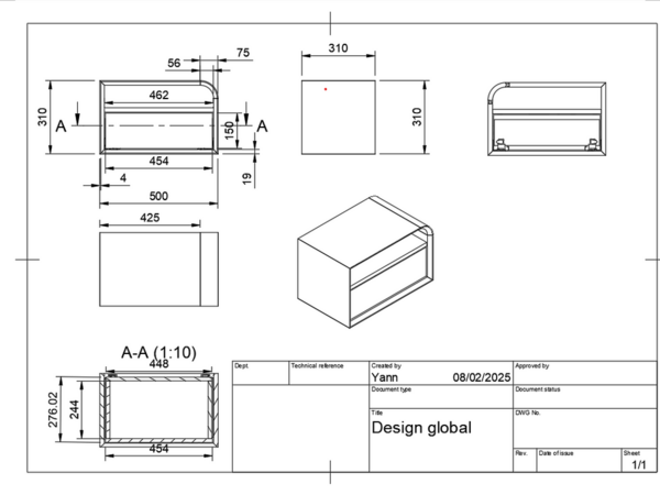
Constitution des caissons
Les caissons sont assemblés en rainure à queue d'aronde au niveau des angles arrondis, de manière à conserver la mobilité nécessaire en raison des croisements de fil.
Les côtés sont assemblés en onglet verrouillés (le passage à travers fil de la fraise à onglets verrouillés n'est pas la meilleure idée que j'ai pu avoir... )
Voici une vidéo dans laquelle je discute ces différentes difficultés
Pose des coulisses, arrondis extérieurs
Difficultés techniques suivantes :
- Le montage des coulisses, j'ai pris des Blum, pour tester la marque, j'ai beaucoup apprécié les différents réglages (le prix s'en ressent), et je les trouve supérieures en qualité à Hettich (point de vue tout à fait personnel et subjectif)
- Les arrondis extérieurs, j'en ai fait un à la râpe (Auriou n°7 et n°10) et l'autre au rabot (Lie Nielsen n°4), puis finition au racloir. Il faut être honnête j'ai pris mon pied avec ces outils.
Il ne restera plus qu'à aller poser ces deux meubles dans la chambre une fois la finition faite. Si possible je vous mettrais également des images en situation.
 
     
     
     
             
            
 
     
     
     
    
Discussions
Très sympa. Avec le temps est-ce que le fil croisé entre arrondis et cotés a posé problème en travaillant ?
Vu l'assemblage ça ne peut pas poser de problème, et donc ça n'en pose pas
cray ah merci, ca me permet de trouver une solution à mon prochain projet.
mais pour le coté pratique (et donc financier) je pense remplacer la queue d'aronde par des dominos "lâches"