L'Air du Bois est une plateforme Open Source de partage collaboratif ouverte à tous les amoureux du travail du bois. (En savoir plus)

Rejoindre l'Air du Bois Se connecter

Toutenbois

Bureau rond


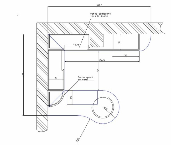
Vue d’ensemble du bureau. Au centre l'espace de travail, en bas l'espace pour le patient et le long des mûrs des rangements.

Publications associées


Discussions

Connectez-vous pour ajouter un commentaire.
2 269 vues
0 commentaire
230 téléchargements

Caractéristiques

PDF  Format
9 Ko  Taille
 1 fichier

Publications associées

0 collection

Licence

Licence Creative Commons
Autres plans de Toutenbois 
Voir aussi