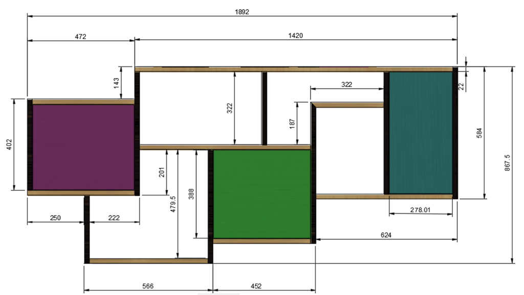
Plan pour une étagère qui me servira de base pour une première réalisation.
Je n'ai pas inclus dans le plan les tourillons, charnières, vis biaises etc ....
C'est une première découverte de fusion 360, qui m'a permis de découvrir l'outil et la modélisation 3D
Plus de détails concernant le projet dans la réalisation


Discussions