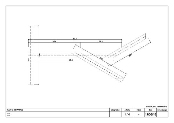
je vous présente un porte vêtements s'inspirant de la silhouette d'un arbre 
il est réalisé en pin section 25mm x 25mm pour
les barres sont simplement des tourillons diamètre 8 mm striées (afin que le vêtement ne glisse pas)
                Autres plans de 
pierrotonthemoon             
            
         
     
     
            
 
     
     
     
    
Discussions