L'Air du Bois est une plateforme Open Source de partage collaboratif ouverte à tous les amoureux du travail du bois. (En savoir plus)

Rejoindre l'Air du Bois Se connecter

pierrotonthemoon

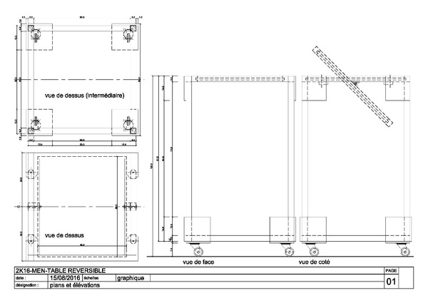
Servante reversible


toujours dans l'idée d'optimisation d'espace. je me suis inspiré d'une réalisation du l'gosseux d'bois.
Le tout est bien évidemment sur roulette

Publications associées


Discussions

pierrotonthemoon  a publié le plan "Servante reversible".
il y a 9 ans
jeplor
( Modifié )

Merci pierrotonthemoon pour ce plan

Connectez-vous pour ajouter un commentaire.
1 354 vues
1 commentaire
265 téléchargements

Caractéristiques

PDF, AutoCAD  Format
130 Ko  Taille
 2 fichiers

Publications associées

0 collection
Voir aussi