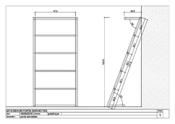
Afin de répondre à la demande de madame (on peut rien lui refuser) il m'a été demandé de dessiner et construire un porte serviettes. je m’exécute et j'imagine l'ensemble en bois un peu sur le principe d'une échelle que l'on vient poser contre un mur. Madame proposa l'idée d'incorporer un autre matériaux à savoir du cuivre. je m’exécute et voici le résultat.
la section du bois est du 25x25mm
le tube en cuivre est de diamètre 16 mm

Discussions
Bonjour,
J'aime beaucoup ton porte serviette ... Bravo !
Quel est le mode d'assemblage stp ? Tenon mortaises ?
Merci et bravo
Les assemblages sont réalisés avec des dominos
super, je te remercie. Bon dimanche !
Mais de rien bon dimanche également et bon copeaux