L'Air du Bois est une plateforme Open Source de partage collaboratif ouverte à tous les amoureux du travail du bois. (En savoir plus)

Rejoindre l'Air du Bois Se connecter

pierrotonthemoon

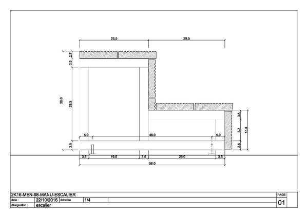
Escalier pour terrasse


voici un petit escalier 2 marches pour permettre l'accès au séjour depuis la terrasse

Publications associées


Discussions

pierrotonthemoon  a publié le plan "Escalier pour terrasse".
il y a 9 ans
Connectez-vous pour ajouter un commentaire.
1 553 vues
0 commentaire
180 téléchargements

Caractéristiques

PDF, AutoCAD  Format
68 Ko  Taille
 2 fichiers

Publications associées

0 collection
Voir aussi