L'Air du Bois est une plateforme Open Source de partage collaboratif ouverte à tous les amoureux du travail du bois. (En savoir plus)

Rejoindre l'Air du Bois Se connecter

pierrotonthemoon

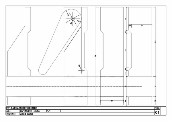
Wood clamp


parce que on a jamais assez de serre-joints

Publications associées


Discussions

pierrotonthemoon  a publié le plan "Wood clamp".
il y a 9 ans
Le Cévenol

Genial, merci pour le plan

rider360

Super, est ce que ca tien bien dans le temps ?

Connectez-vous pour ajouter un commentaire.
1 537 vues
2 commentaires
495 téléchargements

Caractéristiques

PDF, AutoCAD  Format
60 Ko  Taille
 2 fichiers

Publications associées

0 collection
Voir aussi