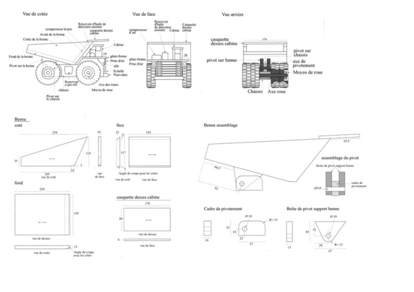
Voici les plans tant espérer, toutes les pièces sont coté, il n’est pas impossible qu’il y est des erreurs, vous seriez bien sympathique de bien vouloir me les signaler de façon que je puisse les rectifier.
Merci.
Autres plans de
ponsin73

Discussions
bonsoir apparement il manque le chassis dans le pdf .... (la page 2)
mais hâte de voir ça pour mon ptit gars merciiii
Effectivement mais le fichier était trop épais et il n’a pas passé.
Le voici.
Superbe realisation , pouvez vous me donner la tailles des roues ?
Le plan est il a l'echelle ?
jeremy213
Bonjour.
Votre question que vous vous posez est dans le texte et la documentation technique de Caterpillar que l’on trouve sur internet.
Il y a diffèrent type de pneu donc c’est au choix, soit des 40,00R57, soit des 46,90R57, soit des 50,80R57.
C’est selon le chargement que vous voulez imposer à votre camion, ou la rentabilité du matériel que vous avez acquis.
Même un débutant en menuiserie ou d’autre corps de métier n’aurait pas posé.
ponsin73 SUPER la réponse ..... Je ne vous permet pas de juger de mes compétences dans quelques domaines que se soit ....
Grace a des réponses comme ca les forums deviennent fort peux intéressant.