La tracette
La tracette décrite par Michel dans son pas à pas Manche de ciseau m'a fait des clins d’œils très insistants, et pas qu'à moi je pense!
Elle permet de tracer facilement des traits à 2, 4, 6 etc. jusqu'à 20 mm d'un bord, bien plus simplement que toutes les équerres à trous ou réglets à butée auxquelles je peux penser.
En fait, tous les outils de traçage ou il faut tenir l'outil d'une main, le crayon de l'autre, et les déplacer tous les deux ensemble par rapport à la pièce immobile, font regretter de ne pas avoir une troisième main pour tenir cette pièce.
Or, le besoin d'une troisième main est un prédicteur très fiable d'un truc qui va merder.
La tracette, simple et efficace, a donc tout de suite exercé un charme fort sur moi, et gagné sa place dans ma todo list.
Un modèle paramétrique
Celle de Michel démarre à 4 mm, et progresse par pas de 2 mm.
Je me suis demandé ce que cela donnerait si je la faisait partir de 8 mm au lieu de 4, ou dans quelle section faudrait-il que je la taille si je la voulais partant de 5 avec un pas de 5...
Je me suis vu refaire 36 fois la cotation de la section, avec le cortège inévitable des erreurs apparaissant quand tu gomme une cote pour un mettre une autre sans en répercuter les conséquences sur le reste du dessin.
J'ai eu tout de suite mal à la tête :-)
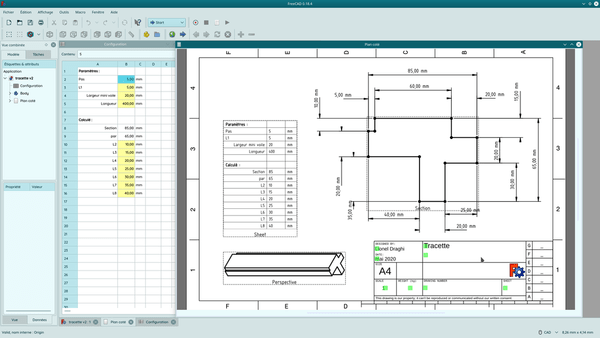
J'ai trouvé amusant l'exercice de faire un modèle paramétrique, c'est à dire un modèle ou l'on entre seulement les deux données pas et dimension de départ, plus l'épaisseur minimale que l'on veut laisser entre les feuillures, et ou le modèle calcule les autres cotes automatiquement.
On le voit sur l'image, les valeurs sont modifiées dans le tableau à gauche, et le plan à droite est mis à jour automatiquement.
Quel logiciel?
J'ai d'abord utilisé SolveSpace, sur Linux.
Mais SolveSpace n'étant ni d'un usage courant ni en développement très actif, ses fichier slvs ne sont pas accepté sur LADB. J'ai alors re-tenté de travailler avec Freecad malgré une première expérience décevante à l'automne.
Grand bien m'en a pris, car je suis revenu dedans avec facilité, et c'est infiniment plus puissant que SolveSpace.
NB : je fais dans le logiciel libre, ça me simplifie les choix!
Tout ça pour quoi?
En conclusion, je dirais que :
- on peut faire la série suivante de la tracette de Michel (c'est à dire 20 à 34 mm) dans une section de approximativement 80 par 80 mm, ce qui parait encore raisonnable;
- et la suivante (38 à 50 mm) dans du 120 par 110 mm. Là, je pense que ça commence à devenir limite pour la facilité d'utilisation. Mais ça se discute, je laisse les plus audacieux essayer.
- pour une tracette 5/10/15/.../40, il faut un profil de 85x65, et je l'annonce, elle fera bientôt parti de mon outillage!
Une note finale : j'ai fait une hypothèse de conception, celle de garder toutes les dimensions dans l'ordre.
Or, si l'on inverse la deuxième feuillure avec la troisième, on peut gagner quelques millimètre de section sur le bois (par exemple en faisant 4 6 12 14 8 10 16 18)
Mais c'est tout à fait le genre de truc qui peut me rendre fou à l'usage, alors tant pis pour les quelques grammes de bois en plus, priorité à l'ordre!

Discussions
haha a se que je vois freecad as encore évoluer depuis mes derniers essaies (il y a de sa 3ans maintenant) intéressant, il intègre donc maintenant une gestion des configuration (pas le souvenir que s'a ai été le cas à l'époque)
Et sinon intéressant comme règle reste à parvenir à l'usiner de manière précise avec le défonceuse à la volée je craint d'avoir du mal mais je garde en tête si je me motive à la passer sous table
Oui, il y a eu (d'après ce que je comprends) un avant et un après la version 0.17, donc si ton essais date de la 0.16, il y a des chances que tu ne reconnaisses pas tout.
Il y a un atelier "Spreadsheet", dont les cases peuvent être nommées, et ces champs sont accessible un peu partout dans le logiciel. C'est simple et pratique.
De même, l'atelier pour produire des plans techniques (que l'on voit à droite) à partir des modèles 3D ou des esquisses est nouveau, et a été facile à prendre en main.
Je me suis posé la même question sur l'usinage, voir même sur comment éviter les usinages en collant des contreplaqués de l'épaisseur du pas : je n'ai pas trouvé de solution plus simple et/ou plus précise que l'usinage avec le router sous table, ou de le faire à la main pour ceux qui ont les bons rabots pour cela.
En ce qui me concerne, je dispose d'un routeur sous table avec un montage très simple (pas d’ascenseur), et d'une scie plongeante. J'ai essayé hier pour un autre gadget dont je parlerai bientôt de faire une feuillure avec la scie plongeante. La précision sur la profondeur n'est pas aisée à atteindre, mais sur la largeur, ça se gère.
Je me tate (par goût pour l'expérimentation) d'essayer de faire la tracette à la scie plongeante : deux trait de scie parallèle par face, ça me semble jouable.
Mais c'est pour le fun, je ne vois pas comment ce pourrait être plus simple ou plus précis qu'avec un router sous table.
LionelDraghi je sais que c'est l'alternative gratuite avec la communauté la plus active
C'est vrai qu'avec solidworks au boulot je n'est pas vraiment le besoin mais vais jeter un œil aux avancées
Oui bonne idée la scue sous table mais sa non plus je ne m'y suis pas motivé
En fait je me concerti principalement au travail à la main pour une question de bruit et de poussière travaillant dans la cave qui est derrière les chambres pas trop ke choix si je veut pouvoir bosser
Ravi de voir que j'ai suscité des envies et idées !
Lorsque j'avais fabriqué la mienne, j'avais utiliser la toupie avec un outil à feuillure. A défaut de toupie, une défonceuse sous table me semble l'équipement le mieux adapté (des lamelles rabotées précisément et collées me semble aussi une bonne solution). Il faut réfléchir à l'ordre d'exécution des feuillures, de façon à garder la plus grande surface d'appui possible pour l'exécution de la dernière .
Vous verrez, c'est un petit accessoire sacrément pratique d'utilisation .
Bonnes réalisations .
Par curiosité, je vais essayer de créer un modèle paramétrique sous Solidworks
Bonjour,
Quatre feuillures donc huit cotes parce-que les quatre côtés et angles d'un carré ou rectangle.
L'instrument en soi est simplement génial et génialement simple, et me fait penser à ces "multiclefs" plates, une pièce d'acier avec un jeu de plusieurs tailles dessus, encore utilisées pas mal dans le cyclisme me semble-t-il. Et le côté "casse-tête chinois" afin de trouver la pièce capable selon les dimensions souhaitées est juste du petit lait pour les allumés dans mon genre hihihi.
Je me dis toutefois que, afin que l'instrument soit et demeure un instrument de référence, il faut tenir compte des déformations du bois et donc s'astreindre à n'utiliser que du quartier..?
Ah oui, c'est vrai que si on a la fibre dans le sens de la longueur, les déformations vont changer les dimensions qui nous sont ici utiles.
Le plus simple est probablement de laminer du MDF (ou éventuellement du contreplaqué).