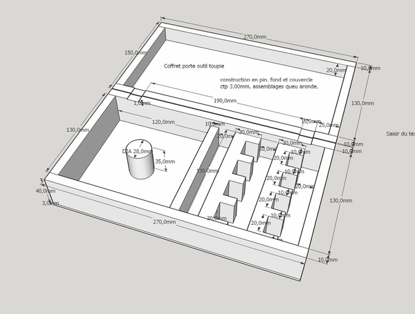
Ayant besoin d'un coffret pour porte outil hauteur 50 fraichement acquis, je l'ai dessiné d'abord avec Sketchup pour aller en atelier pour la réalisation. Assemblage par queues droites. J'ai utilisé des chutes de planches de coffrage, dégauchies et rabotées pour cette réalisation. L'intérieur du couvercle est tapissé de mousse pour bloquer l'outil. On peut y stocker jusqu'à 10 paires de fers. La finition est un vernis polyuréthane brillant. Toujours utile un coffret surtout si l'outil est vendu sans.

Discussions