Bonjour à tous
J'envisage de construire un abri à voitures 2 places. En glanant des informations sur différents sites et bien sûr sur l'AdB, j'ai dessiné le projet suivant.
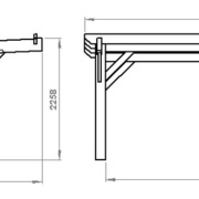
En gros, les dimensions hors tout seraient de 6 000 de large, 5 000 de profondeur et de 1 800 de hauteur minimale et pente de 3%.
La structure portante serait composée de 5 poteaux en 180 x180, de deux arbalétriers de 230x80 et 2 pannes de 180 x 80.
Les assemblages seraient entre les poteaux et les arbalétriers des enfourchements (?? Je ne connais pas les termes techniques, 1000 excuses) et entre les arbalétriers et les pannes des tenons/mortaises, le tout rigidifié par des contrefiches de 120x45 assemblées elles aussi par tenons/mortaises.
Pour la partie "toiture" devant supportée des bacs acier, 4 pannes de 180x45 viendraient appui sur les arbalétriers. Une "ceinture" viendrait cacher les bacs.
Mon questionnement est le suivant :
Voyez-vous une ou des erreurs de conception ?
Les sections vous paraissent-elles correctes ou sous/sur dimensionnées ?
Comment détermine-t-on la longueur des contrefiches ?
En vous remerciant par avance de vos critiques, commentaires et suggestions.

Ancrage?
Bonjour Marc.
Pour être franc, j'attendais de voir si ce projet était viable (conception, coût, autorisation administrative, etc) pour me pencher sur l'ancrage. Mais je vois qu'à priori, ce choix est important.
Je pense que mon choix se porterait sur des platines réglables. J'habite dans le tarn à une altitude de 220 mètres, et peu venteuX
Ce choix est-il judicieux?
Merci
Cordialement
msma12
Selon ce que tu dis,
30 M2 DE VOILURE!!!
Ça fait réfléchir!
Tes poteaux ont une section confortable. De ce côté
"tranquille"
Des platines bien fixées j'imagine tiges filetées diamètre 14 ou 16. Scellement chimique...
Tu as trouvé des platines aux mesures de tes poteaux ? ou tu es obligé de ""scier"" de faire une réduction avec des angles rentrant à 90degres...
Commént envisages tu de solidariser les poteaux avec leurs supports?
Boulons? Quel diamètre
.....
Souvent ce genre de fixation au sol, est un "étui" pour le pied de poteau avec tous les avàntages que ce mode de fixation comprend. Mais aussi un inconvénient majeur! Si d'aventure un peu. Même très peu d'humidité stagne. Cet "etui" devient une terre d,'accueil pour les insectes xylophages ou non et pour les moisissures de toutes sortes.
Tout cela est bien beau. Mais alors, comment procéder ?
Comme le faisaient nos grands parents
Goudron, scellement béton, et surtout. Bande de solin à engraver avec bavette en plomb
C'est sous ces conditions que tu assureras la pérennité de ton ouvrage.