Bonjour / Bonsoir,
je m'exerce depuis peu à la conception de plans, j'essaie de prendre de bonnes habitudes, mais je vois beaucoup de façon de faire contradictoires sur internet.
Quelle est à votre sens la meilleure méthode de cotation pour un plan ? Est ce qu'il faut être généreux, où plutôt aller à l'essentiel et faire en sorte de ne pas se répéter ?
Je suis aussi preneur de tout retour ou conseil à propos du dessin technique en général !
5 réponses
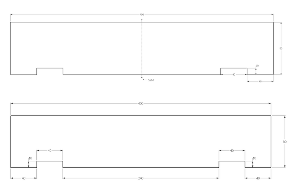
Une conseil parmi d'autre si c'est un plan d’exécution utiliser des cotes cumulées/parallèles (voir planche 3 de la réponse de Paul26 ) est beaucoup plus pratique pour la personne qui va réaliser la pièce. Elle n'aura pas à faire le calcul elle même (dans ton cas 40+40=80 puis 80+240= 320 etc.).
C'est évident quand tu fais une pièce avec de l'outillage qui possède un afficheur digital 1,2 ou 3 axes (ta position zéro étant fixé, seul la position absolue t’intéresse). Mais c'est la même chose si tu utilises un mètre/réglet. Pour un maximum de précision tu positionnes ton mètre/réglet une bonne fois pour toute et tu traces tous ce que tu as besoin de tracer : il te faut donc des cotes absolue.
Évidement si c'est un plan pour réfléchir à la conception, tu veux privilégier les informations qui te permettent de voir si ça rempli ton "cahier des charges" ce n'est donc pas pareil.
Pour le probleme de tenon mortaise évoqué par etiennedesthuilliers il y a la possibilité d'utiliser des tolérances asymétriques comme on le fait en mécanique pour les ajustements d'arbres-allesages. Ainsi la ou les personnes qui réalisent savent si elle doivent faire "plutot plus" ou "plutot moins" que la cote annoncé.
bonjour
il est difficile de coter un plan le problème est pour moi de bien faire passer l' information et on le voit si l 'on envoi un plan a un mécanicien ou a un charpentier
j ai cote la mortaise a 8 mm et le tenon a 8 mm drame au montage
car celui qui fait les mortaises n' est pas celui qui fait les tenons
et de coter une charpente en mm est une source d erreur de lecture
tout cela pour dire que la prise de cote est source d erreur sauf dans l industrie ou il y a plus de renseignement
mais le menuisier moyen a plus vite fait de faire un plan sur règle que de faire des dessins avec des cotes précises qu'il n aura pas les moyen de vérifier
moins on prend de mesure mois il a des erreurs , éviter les mètre a rouleaux les mètres pliants et favoriser les réglets de 2 m, et faire vos repports au compas
mais chacun fait son choix pour travailler seul le résultat compte
etienne desthuilliers
en théorie le minimum suffit et même est recommandé, le moins de cotes le plus de visibilité, ca c'est la théorie du temps du dessin technique a l'encre de chine.
C'est un outil a utiliser en atelier, si tu te projettes plus ou moins dans l'atelier quand tu modélises (dimensions max des machines, tel outil etc) tu peux aussi projetter tes besoins, références par rapport a tel coté, positionnement par rapport a un gabarit etc.
perso je modélise toujours en 3D, et n'imprime avec des cotes que au moment ou la situation l'impose et ces cotes visibles seront fonction de la situation.
Vous pouvez répéter la question ...?!
Plus sérieusement, en dessin technique les cotations sont toujours à l'extérieur de la face dessinée .
Personnellement je côte principalement en millimètres, sur de grandes longueurs, avec du calepinage, une erreur de 1 ou 2 mm peut s'avérer problématique à l'arrivée .

Merci à tous pour vos réponses, je prends note de vos conseils !