Bonjour a tous,
Vous connaissez surement le gabarit de fraisage Festool surement très bien mais chère pour un particulier, aussi je me suis inspiré du système pour en réaliser un avec des matériaux facilement approvisionnables en grande surface :
- 1 règle de maçon de 2m
- 4 tige filtée diam 6
- 4 écrous M6
- 4 écrous papillon M6 + rondelles
- fer plat 15x3
- profilé alu en U 15x15
La règle est découpé en 4 morceau de 50cm bien d'équerre, puis une rainure est réalisée sur la longueur sur un seul coté (j'ai fait ça à la défonceuse attention ça bourre il faut y aller lentement par petite passe, l'idéal est d'avoir un ami usineur)
Les fers plats sont découpé en 4 longueurs de 5cm puis percés / taraudés M6 en leurs centres
Les tiges filtés coupé en 4 longueur de 55-60cm
Le profilé est coupé en 8 morceaux de 10cm (largeur de ma règle) puis ajusté pour que le U rentre dans la règle (une fente a gauche et a droite + une fente au centre), percé à 6cm de bord. il ne reste plus qu'a assembler le tous :
Fer plat dans le premier morceau de règle, tige vissée dans cet ensemble, profilé dans le second morceau de règle enfilé sur la tige filtée, second profilé en bout rondelle + écrou papillon, ensuite on recommence avec au autre bout de règle... bref regardez les photos c'est surement plus parlant
Le réglage de la taille se fait simplement en desserrant les écrous papillon et en ajustant chaque longueur (deux a deux c'est plus simple)
A vos limes et scie...

Discussions
c'est bien joué
L'idée est bonne et ça semble précis.
Tu peux nous mettre une photo du serrage, on ne voit pas les papillons quand c'est monté et j'ai un peu de mal à comprendre comment ça s'organise.
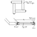
Hello Jeanco77
Voici un petit dessin qui devrait d'aider a mieux comprendre comment ça se monte
Au plaisir
Thierry,
Merci, le dessin est très clair.
Je pense à me faire un gabarit de ce type et le tiens me semble très bien. As tu des réserves ou ton gabarit t'apporte t il toujours satisfaction?
D'avance merci.
Salut, désolé pour la réponse tardive. Je m'en sers peux en fait, le réglage a l'usage n'est pas simple car tout bouge et se déforme il faut être bien a plat lors de réglage. c'est aussi un peu épais du coup ça limite la profondeur d'usinage avec des fraise standard
Voilà, tiens nous au courant si tu as réalisé et amélioré le principe
Thierry