Ce pas à pas présente un projet en cours de réalisation.
Bonjour à tous,
J'aimerai utiliser ce pas-à-pas pour partager avec vous la construction de mon atelier !.
Ca fait 20 ans que j'en rêve et ça fait maintenant 2 ans que je bataille sur le projet maison dont il fait partie et là : les travaux ont commencé !! :) Alors je suis hyper content et je ne résiste pas au plaisir de partager avec vous :)
J'ai également un autre post sur Copain de Copeaux que je tiens à jour.
Liste des articles
- 1. les plans
- 2. Chiffrage : matière première outils et quincaillerie
- 3. Terrassement, Fouilles, Fondations et Sousbassement
- 4. Outillage
- 5. Réception devis montants d'ossature et chiffrage visserie
- 6. Démarrage des travaux : Lisse d'implantation
- 7. Découpe des montants :
- 8. Assemblage et levage des murs
- 9. Finition Ossature Murs et Premier Linteau
- 10. Second et dernier Linteau
- 11. Deux premiers poteaux support des poutres
- 12. Relâche
- 13. Derniers Poteaux et Decoupe des Tuyaux
- 14. Petite digression : les portes
- 15. Tuyauterie pour l'aspiration dans la dalle et mini cataclysme
- 16. Livraison du matériel pour la finition des murs
- 17. Grosse Journée de travail
- 18. Toit Livré : Demain j'attaque les murs
- 19. Pose des poutres en I
- 20. Pose du contreventement par l'intérieur
- 21. Contreventement 2ème partie
- 22. Contreventement Episode III
- 23. Poutres au vent
- 24. Poutre au vent fin
- 25. Pose du toit
- 26. Isolant et Pare pluie
- 27. Pare Pluie - fin
- 28. Litellage
- 29. Tuyauterie et Préparation Elec
- 30. Préparation pour le coulage de la Dalle
- 31. Coulage de la dalle
- 32. Préparation Tableau Elec et gaine GTL
- 33. Les portes
- 34. Les portes : Tentative de rattrapage 1
- 35. Portes temporaires version finale
1. les plans
En général quand on fait les choses bien on commence par le commencement. Dans le cas présent : les plans !!
J'ai bien bataillé mais je suis arrivé à un truc qui me plait et qui a été validé par mon charpentier donc c'est pas si pire comme disent nos amis canadiens ! :)
Voici quelques visuels des plans, le reste est dans le plan associé :
2. Chiffrage : matière première outils et quincaillerie
Maintenant que j'ai des jolis plans bien propres (enfin aussi propres que peuvent être des plans faits par un néophyte comme moi ! :)) j'ai pu faire ma liste de course et l'envoyer à un ami qui travail chez les hommes en bleu pour avoir des devis et commander le merdier !
Je suis donc parti de mes plans et j'ai obtenu une première liste :
Qui m'a ensuite permis de synthétiser :
Pour tout ce qui est fixations ce sera vis 60x120 pour les montants entre eux et 6x40 pour fixer l'OSB aux montants, et peut-être un peu plus petit pour fixer le litelage qui sera en 20x40 ou 27x40.
Je vais également récupérer ma KAPEX d'occas dans la semaine, c'était un bon prétexte : ça faisait un moment que je lorgnais dessus 
3. Terrassement, Fouilles, Fondations et Sousbassement
Donc les travaux ont bien avancés et durant la semaine écoulée, on a eu droit au gros oeuvre :
- dans un premier temps le terrassement

- ensuite le creusement des fouilles (c'est le trou dans lequel on coule les fondations) et féraillage

- et après on est passé dans le dur avec le coulage des fondations et la mise en place du coffrage pour le soubassement qui recevra la lisse basse et on finit par le hérisson (c'est les cailloux sous la dalle) :
On attend plus que les premiers montant d'ossature pour commencer le boulot. Pour couper la capilarité je vais installer une bande delta vent ca m'a l'air pas mal.
Et maintenant je trépigne d'impatience dans l'attente de mon bois ! 
4. Outillage
Comme j'avais prévu un peu de budget outillage pour ne pas y aller uniquement avec mon couteau et un autre outil que je ne souhaite pas abîmé .... mais alors pas du tout !!! ... du coup hier soir j'ai été chercher l'outil principale de ce projet :
Il y a bien sûr d'autres outils nécessaires mais celui-là je m'en resservirai alors que le cloueur me sera prêté par un ami charpentier qui m'a bien aidé pendant la phase de conception.
Houhouhoou Samiiiiii c'est jouliiii ! 
J'ai également acheté la bande d'arase à mettre entre la lisse d'implantation et le soubassement en béton pour éviter le pourrissement et les remontées d'humidité :
5. Réception devis montants d'ossature et chiffrage visserie
Aujourd'hui reception du devis pour les montants d'ossature. Finalement c'est le charpentier qui monte la maison qui va me les approvisionner, ce sera donc 480 ml de montant 45x145 en barres de 6m de long et en lamellé collé prix : 1590€ livré sur le chantier. J'attends la confirmation de la date de livraison, j'espère les avoir d'ici 10 jours.
Cest également lui qui va me fournir à son tarif pro les vis. J'ai fait un petit calcul (en fait j'ai bêtement compté sur mon plan !! :)) et à raison de :
- 114 montant fixés en haut et en bas par 2 vis ==> 456 vis
- 46 entretoises fixées a gauche et a droite par 2 vis ==> 184
- 58 montants fixés entre eux sur la hauteur avec 10 vis ==> 580
- environ 200 vis pour la fixation des lisses basses et haute ==> 200
- on arrive à : 1420 vis donc on va dire 1800 parce que je sais pas compté et que j'ai probablement oublié la moitié. Là on est sur du 6x120 je pensais m'orienter vers ça : vis assy 3.0 tête fraisoirs à facettes ref 0170 676 120 (ça ressemble à ce que j'ai vu à l'atelier).
- Ensuite il me faudrait 35 goujons d'ancrage pour les lisses d'implantation comme ça : Goujon d'ancrage W-FAZ/S en 8x115 ref 0904 520 803.
- Et enfin pour les panneaux OSB : je pensais aux VIS A BOIS ASSY P INOX A2. là il m'en faudrait environ 2000.
Pour calculer le nombre de vis pour l'OSB j'ai pris un panneau de 2500x1250 et j'ai compté une vis tous les 15cm en bordure soit : ((2500/150)2)+((1250/150)2) ce qui donne et une tous les 30cm sur le montant intermédiaire soit un total de 61vis et pareil pour les autres panneaux et bien sûr une marge au cas où j'en mette un peu plus ou que je me sois trompé.
6. Démarrage des travaux : Lisse d'implantation
Ca y est !!! C'est pas trop tôt, le bois pour l'ossature vient d'être livré !
l'est content !
Du coup je démarre par la lisse d'implantation et pose de la bande d'arase.
Premières découpes, j'enlève le bout de chaque montant car ca n'est ni droit ni plat (c'est du lamellé-collé donc les blocs ne sont pas parfaitement alignés en bout de montant) et ensuite mise à longueur :
Ce week-end je me fabrique des trétaux comme ceux-là pour pouvoir travailler sans me casser le dos : ShopDog
Promis j'essaye de prendre plus de photos la prochaine fois : là j'avais trop hâte de taper dans la butte ! 
Hier j'ai fini de découper et fixer les éléments de la lisse d'implantation :
Le plus long a été de s'assurer que tout était d'équerre !!
Pour ça : la géométrier est ton amie !! il faut arriver à 4 côtés parralèles 2 à 2 et 2 diagonales de même longueur et paf on a un rectangle parfait
et il faut surtout se fier à ses plans et pas aux mesures de la maçonnerie dont les tolérances ne sont pas les mêmes. Bien que dans notre cas la planéité est presque parfaite avec moins de 3mm sur 8m : chapeau le maçon !:)
7. Découpe des montants :
C'est là que ma station de découpe portative maison m'a été bien utile pour ne pas me fusiller le dos qui predn déjà assez cher à transporter les barres de lamellé-collé en 45x145 en 6m de long!!! pour un pauvre informaticien : ça fait un choc physique, j'ai bien dormi hier soir !! 
Quoi qu'il en soit, aujourd'hui et demain c'est découpe de tous les montants à longueur + un chouillat et demain après-midi ou Jeudi matin je fais toutes les coupes d'angles. Cet ordonnancement m'a été suggéré pas mon ami charpentier qui m'a dit : les coupes d'angle, tu ne fais les réglages qu'une fois comme ça tu es sûr d'avoir le même partout. De cette façon, même s'il y a une petite erreur, c'est la même partout et du coup ca s'assemble encore
Voilà les débit du jour : les deux murs latéraux (on devine la pente avec l'effet d'escalier et les 3/4 du mur du fond) :
Encore un petit truc de mon pote charpentier : la marque pour ne pas perdre son trait. Quand on fait juste un petit trait à la l'endroit de la coupe, on passe du temps à chercher. Le charpentier lui il aime pas chercher le bougre !!! alors il fait son petit trait comme les humains normaux (moi entre autres) et ensuite il fait un grand trait du côté de la chute, ca permet à la fois de retrouver la marque vite et à la fois de savoir de quel côté on doit mettre la lame de la scie.
Ca parait tout con, mais c'est hyper pratique pour les tête en l'air comme moi qui se gourrent une fois sur deux sur le côté ou mettre la lame 
La suite demain ou après demain 
8. Assemblage et levage des murs
C'était la veille de noël et comme j'avais rien à faire, j'ai embauché un pote qui est venu avec ses enfants (grands je précise) et on a fait l'assemblage des 2 premiers murs en 4h et on a fini à la frontale !! 
Alors 4h c'est surtout parce qu'une minuscule erreur de 45mm dans une mesure d'écartement de montants nous a empêché de finir la première fois :
Comment ça ça fait pas 45mm ? oui bon d'accord ............. ca fait 40cm mais c'est parce que l'erreur de 45mm a été faite sur l'ensemble des 9 montants !!!
Bref, on a dû redescendre le mur et refixer les montants au bon eccartement. En plus je pouvais pas me plaindre : ils sont venus m'aider le jour de noël et en plus c'est moi qui me suis gourré tout seul
Quoiqu'il en soit, les coupes d'angles se sont parfaitement alignées et l'assemblage des deux parties du mur du fond s'est faite sans problèmes : j'étais le premier surpris. Je m'attendais à devoir faire plein d'ajustements mais finalement les mois de préparation, de modélisation et d'échanges ont portés leurs fruits : merci à tous ceux qui ont mis leur grain de sel.
Voici quelques photos de l'assemblage :
Avec en prime un magnifique couché de soleil, même si on s'est bien gelé une fois qu'il a fait noir :
A dans le Week-end pour la suite du montage
Marco.
9. Finition Ossature Murs et Premier Linteau
Ce matin, mon excellent ami est revenu accompagné de sa progéniture pour m'aider à monter les 2 derniers murs à savoir :
- Le mur latéral Droit
- Le mur frontal avec les ouvertures pour les portes
Tout s'est bien passé, sauf que j'ai encore merdé dans mes mesures d'écartement pour le mur latéral .... ca devient pénible à la longue
Sinon à la fin de la matinée on avait ça :
J'étais tellement content que j'ai fait un gros câlin à mon garage !
:
Les lisses hautes ont été installées devant et derrière.
J'ai profité de l'après-midi pour fabriquer mon premier Linteau. Grosso modo c'est une boite avec 3 côtés et on taille des bouts de montants pour rentrer et renforcer le biniou. Les étapes de fabrication donnent ça :
C'est surtout au moment de la mise en place que j'ai bien pleuré !!
il est lourd le bestion, 3090mm ca pèse son poids quand même ....
Du coup j'ai été obligé de ruser :
- Je l'ai amené
- J'ai vissé 1 cale de chaque côté à l'intérieur de la porte.
- J'ai posé le linteau dessus
- ensuite, j'ai utilisé les montants qui le supporteront pour le monter petit à petit d'un côté puis de l'autre.
Le plus gênant (et dangereux, il faut le reconnaître) c'est que les montants ont tendance à glisser tant que l'angle avec le sol est faible. plus on monte et plus les frottements nous aide. Ensuite, le linteaux ne peux pas glisser complètement car il est assez ajusté mais il peut basculer, tout comme les montants que j'ai donc "guidés" avec 2 cales. En me servant de ces cales j'ai bloqué le linteau plaqué contre la traverse haute le temps de le visser et j'ai ensuite retailler légèrement mes montants (environ 3mm) pour pouvoir les encastrer sous le linteau ça donne ça :
L'utilisation du serre-joint pour assurer l'affleurement et rattraper les déformations des barres est également très sympa quand on est seul
et au final ca donne ça :
Je mettrai une image de jour demain quand j'aurai fait le second linteau
Bonne nuit à tous.
Marco.
10. Second et dernier Linteau
Et hop comme promis hier, voici une photo du premier linteau en place et à la lumière du jour :
Aujourd'hui construction et pose du second linteau.
Tout s'est bien passé jusqu'à la mise en place ou je me suis aperçu que j'avais 5mm de moinsen largeur pour ma porte !!! AAAARRRRrrrrghhh !! il a fallu tout redémonter et retailler les planches qui forment le socle. Bref, je pensais rentrer tôt et ben c'est râté !!
du coup pour la mise en place une petite cale dessous à l'une des extrémité, puis une sangle c'est allé beaucoup plus vite et bien plus sécurisé que la première fois, merci Wil 
Je dois dire que je suis plutôt content !!! Pour un débutant et gratte-papier de surcroît c'est pas si mal
Demain, je vais chercher les tubes PVC de 100 pour faire toutes les évacuations qui seront dans la dalle et je débite les montants pour les poteaux qui supporteront les poutres en I.
A+ Marco.
11. Deux premiers poteaux support des poutres
Aujourd'hui pas de grand changement, si ce n'est la découpe et le montage des deux poteaux avant de soutien des poutres en I. 8 longueurs à découper et à assembler avec des vis.
J'ai pas plus de photos parce que des photos de découpes, je crois qu'il y'en a eu assez et ca n'intéresse plus personne
demain je vais chercher les tubes PVC et les gaines électriques comme il pleut et mercredi je finis les 2 derniers poteaux.
A+ Marco.
12. Relâche
Hier et aujourd'hui c'était un peu relâche avec l'arrivée des parents pour une visite surprise, du coup j'ai profité des bras de mon père pour aller chercher les tuyaux pour l'aspiration et les déposer sur le chantier.
La protection des linteaux a été faite sur les conseil de mon charpentier avec le mauvais temps qui arrive enfin si je ne veux pas me retrouver avec 2 bacs à eaux au dessus des portes 
Si tout se passe bien je finis les 2 derniers piliers de support des poutres en I demain et je commence l'asemblage du réseau de tuyaux.
A+ Marco.
13. Derniers Poteaux et Decoupe des Tuyaux
Aujourd'hui j'ai finis les deux derniers poteaux de support des poutres en I ce matin !! enfin !!
Du coup cet AM je me suis attelé à la découpe des tuyaux pour l'aspiration de l'atelier. Il y'a juste un coude à 90° que j'ai été obligé de cassé pour le ressortir parce que CastXXXX y'a tout ce qu'il faut mais c'est vraiment de la M.... pardon je m'emballe. Enfin bref, ce dont j'ai besoin j'irai le chercher ailleurs à partir de maintenant.
Voici les travaux du jour :
Du coup je suis content, j'ai fini mon ossature avant la nouvelle année !!
Je vais pouvoir démarrer la nouvelle avec entrain et sur ce je vous souhaite à tous un très bon réveillon et que la nouvelle année vous apporte santé, bonheur et propsérité dans l'ordre que vous voulez
A+ Marco.
14. Petite digression : les portes
Je m'autorise une petite digression en avance de phase sur les portes du garage.
En me baladant sur internent j'ai trouvé par hazard ce truc :
Et là ça a fait : click !! Je me suis dit : j'en veux sur mon garage !!
Bon d'accord, il n'est pas impossible que je commence par des portes bien standards et bien plus faciles à réaliser, mais du coup comme j'avais du temps ce WE entre deux parts de frangipane j'ai fais ça :
Y'a encore un peu de boulot mais j'ai déjà le principe :
- Deux pivots en haut à droite et en bas à gauche
- Deux charnières entre chaque triangle
- Une rotule au milieu à gauche pour permettre un pivot dans plusieurs directions.
(mes excuses si les termes mécaniques ne sont pas bons). L'idée serait de faire le cadre en métal et de l'habiller avec du bois. Il y a encore plein de considérations à prendre en compte (isolation, sécurisation, ...) avant d'en faire un projet final mais j'avoue que ça m'amuserait bien 
Si j'ai le temps cette semaine je ferai un petit prototype en attendant que les matériaux arrivent pour la suite de l'atelier ! 
15. Tuyauterie pour l'aspiration dans la dalle et mini cataclysme
Je suis un peu en roue libre ces derniers jours car la livraison du toit en acier double peau ne pourra pas se faire avant 3 semaines et du coup j'ai dû décaler la livraison de l'OSB, de l'isolation et des poutres en I pour que ça arrive juste un peu avant le toit et que ça ne poireaute pas 3 semaines à la flotte !!
Du coup je finis tout doucement la tuyauterie de l'aspiration et j'ai commencé par faire une présentation à blanc qui est pas mal du tout :
Et j'ai pas pu allé beaucoup plus loin car si vous regardez attentivement le coin en bas à droite de la seconde photo vous verrez une petite branche qui m'a un peu gêné ....... la petite branche en elle-même ne m'a pas gêné ..... par contre la grosse si :
Il a fait un peu de vent l'autre nuit (la nuit de Dimanche à lundi) et du coup l'arbre mort qui est sur le terrain d'a côté en a eu assez et il s'est viandé sur mon garage !!
Alors déjà : je suis hyper content parce que la structure n'a rien malgré le choc !!
et doublement content que le toit soit en retard parce que sinon il aurait morflé assez sévèrement je pense !!
Ca faisait 2 ans qu'on essayait de faire abattre cet arbre par les propriétaires d'à côté qui ne nous ont jamais répondu, du coup on a fait un démarche de mise en péril auprès du maire et c'est la commune qui intervient après 2 relances et une mise en demeure de faire l'abattage .... d'ici fin février ca devrait être plié et heureusement parce que l'autre arbre qui menace la maison est assez impressionnant :
Donc les deux gros là, devraient être par terre d'ici un mois et demi.
Ça ne va pas beaucoup bouger dans les 3 semaines qui viennent alors à dans 3 semaine pour la suite 
16. Livraison du matériel pour la finition des murs
Hier, livraison du nécessaire pour la finition des murs :
- Isolant
- Panneaux d'OSB
- liteaux
- Poutres en I
- et Pare-pluie Delta Fassade.
La livraison du toit est prévue le 16/02 ce qui me laisse le Week-End d'avant pour faire les murs, les isoler et poser le pare-pluie.
Ca avance !!!!
A+
17. Grosse Journée de travail
Alors aujourd'hui c'était top motivation mega groove ! plus motivé que moi tu meurs !! et puis j'ai ouvert les volets :
bon ben ca sera pour plus tard ....
18. Toit Livré : Demain j'attaque les murs
Le toit vient d'être livré et le temps s'annonce clément en terme d'humidité sinon en températures demain donc j'attaque le contreventement, l'isolation et le littelage.
Quelques images de la livraison du toit :
Plus de photos demain pendant le travail 
19. Pose des poutres en I
Ca y est, les poutres en I sont posées. J'aurais aimé faire mieux hier, mais entre le cuisiniste et la visite de l'architecte on a pu bosser que 3h ....
Bref, les poutres en I sont posées et tout s'est bien passé !
Comme j'avais prévu les emplacements des poteaux dans l'ossature, je n'ai eu qu'à dévissé un montant puis a insérer la poutre et refixer mon montant. Pour sécurisé, j'ai mise un vis à travers le montant dans la membrure et le tour est joué :
L'une des deux poutres était un peu trop longue, je l'ai donc mise à longueur à la main avec mon cadeau de noël :
DU coup vu d'en haut ça ressemable vachement à mon plan et je suis hyper content !!! 
Je m'y rend de ce pas pour essayer de poser une ou deux plaque d'OSB avant la nuit
donc peut-être une ou deux photos de plus ce soir
. Prochaine étape également : pose des croisillon pour l'entretoisage de poutres et le maintient du devers :
20. Pose du contreventement par l'intérieur
On a commencé par poser une plaque dans l'angle et ensuite on s'est appuyé dessus :
Pour fixer tout ça : utilisation du cloueur pneumatique prêté par mon ami charpentier le temps de ses vacances au Perou 
C'est hyper pratique surtout qu'il faut mettre des clous tout les 15cm sur le tour et tout les 20/25 au milieu de la plaque. Je peux vous dire que ça fait quelques clous sur des plaques de 1250*2500 !!
On a bien sûr fait attention de bien découpé l'emplacement des poutres pour que ça soit bÔ :
Et ensuite on a posé les entretoises. J'ai fait le coix bizarre de poser mes entretoises après pour deux raisons :
- Qu'on les pose avant ou après, àfixer c'est la misère car il y a toujours un côté qui est déjà pris.
- Si les hauteurs ne sont pas parfaites, il faut recouper les plaques alors je me suis dis : "autant couper les entretoises directement à la bonne taille et les mettre à la bonne hauteur pour chaque plaque comme ça on s'embête pas à recouper
Et au final vu de l'extérieur ça donne ça :
Il faut évidemment refaire une passe à l'intérieur pour mettre des clous dans les plaques d'OSB le long des entretoises pour garantir la fonction contreventante de la plaque.
Demain je continue et si je peux, je pose l'isolant et le pare-pluie et Dimanche j'attaque le toit 
21. Contreventement 2ème partie
Aujourd'hui j'ai bien avancé même si j'étais tout seul. Ce qui m'a le plus manqué c'est mon collègue pour tenir les plaque en place pendant que je les clouais mais avec un peu de réflexion et on trouve toujours des solution
Programme du jour :
- Découpe et pose des plaques pour le murs du fond
- Découpe et pose des plaques pour le mur de droite
- découpe et pose des entretoises pour le mur de droite
- Découpe des entretoises pour le mur du fond.
Du coup j'étais assez concentré sur le boulot et je n'ai que peu de photos à vous montrer mais voici les quelques unes que j'ai pensé à prendre.
Tout d'abord ma station de travail avec mes tréteaux faits maison qui m'ont carrément sauvé la mise 
Ensuit le mur du fond terminé :
Et le mur de droite fini avec les entretoises posées :
Planning pour demain :
- Pose des entretoises pour le mur du fond.
- Couper quelques buches pour un pote.
- Décider si je pose le toit avant de mettre l'isolation et le pare-pluie.
A+ Pour la suite.
22. Contreventement Episode III
Aujourd'hui :
J'ai pu faire le contreventement des façades des portes sauf au dessus de l'une d'elle car le ballot de laine de verre me gêne
En plus je n'ai pas avancé autant que je l'aurait voulu car j'ai du dépanner un pote et recouper un stère de bois 
Voici l'avancement de la journée :
- Pose des entretoises coupées hier soir
- Premières découpes des contreventements pour la façade des portes. C'est là qu'une paire de main supplémentaire est très utile : l'un tient la plaque en place et l'autre trace au dos la découpe à faire. Au final on s'est pas mal débrouillés et on presque parfaitement à fleur
- une chute utilisés sur la façade du fond
- Puis en fin d'AM deuxième porte et linteau, j'ai encore fini à la frontale
(encore que là c'était plutôt un projecteur LED du plaquiste
) et une zone derrière la palette de laine de verre que je ne peux pas accéder tant que je ne l'ai pas posée.
Et comme le disait ma grand-mère quand on pas de tête on a des jambes, pour le coup c'était des bras et une tête, mais j'ai oublié de découper pour tomber sur un montant au dessus de la porte. Et comme j'avais déjà cloué il m'a fallu être créatif pour pouvoir découper sur place. 2 cales en haut et en bas pour pouvoir utiliser les mini serres-joints du rail et découpe avec réglage de la profondeur :
Pareil, pour pouvoir caler la plaque qui va entre les deux portes : 4 vis, deux cales et le tour est joué
Ensuite il n'y avait plus qu'à couper la plaque du milieu et le tour était joué.
Stand by jusqu'à Mardi pour la pose du toit et bosser une peu quand même
A+
23. Poutres au vent
Comme je ne vais pas poser d'OSB sur le toit avant de mettre le bacacier, on m'a très justement fait remarqué que du coup le plan de ma toiture ne serait pas contreventé. C'est pas hyper grave, mais ça entraîne une diminution de la solidité du bâtiment et surtout ça augmente le risque de déformation et de casse en cas de vent.
On m'a donc conseillé de mettre des poutres au vent en bordure de mes pentes de toit.
C'est donc ce que j'ai fais aujourd'hui !!
une poutre au vent c'est une poutre assemblée composée de deux montants entre lesquels on dispose des renforts en K en V ou en W c'est ce qu'on voit sur cette image entre les deux fermettes :
Cette image est tirée d'un article rédigé par Philippe Berger qui a gracieusement mis en ligne les cours de charpente qu'il donne dans une école spécialisée !!! merci à lui et pour ceux que ça intéresse c'est une vrai mine d'information. Il n'y a d'ailleurs pas que le contreventement mais tout ce qu'il faut pour construire en ossature bois.
Bref, après cette page de pub revenons à mes poutres au vent. Au final ça ressemblera à ça (la partie noire) :
aujourd'hui j'ai posé les deux poutres qui me permettront de fixer les renforts sur chaque côtés.
pour faire ça j'ai utilisé 2 barres de 45x145 qui me restaient des murs pour avoir des morceaux d'un seul tenant. Elles étaient plus longues donc il a fallu les recouper et également être créatif pour découper l'OSB cloué pour laisser passer les nouveaux montant !! (pas question de se fixer dans l'OSB !! il fallait que je me reprenne sur l'ossature).
donc découpe de l'OSB :
Le truc c'est que l'OSB était cloué !! avec des pointes annelées ...... autant dire qu'à enlever c'était pas gagné. J'ai donc dû découper sur place.
A cette occasion j'ai d'ailleurs pu découvrir un nouveau sport extrême : la découpe d'OSB cloué à la scie plongeante en haut d'une échelle à 3m de haut. Je sais pas si on peut trouver un acronyme sympa mais en tout cas je vous le déconseille vivement !! C'est complètement con et très dangereux et j'ai bien failli me faire dessus en repensant à ce que j'avais fais après coup ..... (un clou qu'on a pas vu, la scie qui rippe, l'échelle qui bouge parce qu'en plus c'est des graviers au sol, un pied qui glisse sur les barreaux métalliques de l'échelle parce qu'il pleut très légèrement, bref vous avez saisi que c'est stupide et dangereux hein ?!)
Bref, par le plus grand des hasard et sur un malentendu (je ne peux pas compter QUE sur mon physique ...) je m'en suis sorti indemne et je n'ai maintenant plus qu'à poser les renforts, ce que je ferai demain avant de mettre le toit :
A bientôt pour un nouvel épisode.
24. Poutre au vent fin
Ca y est j'ai fini les 2 poutres au vent.
Je suis parti des montants posés hier et j'ai coupé et posé les montants :
et ça des deux côtés :
Pour la coupe des renforts, j'ai utilisé mon cadeau de noël
tout à la main. C'est moins rapide mais vachement plus gratifiant 
Maintenant plus qu'à trouver des bras pour le toit vu que mes assistants se sont défilés pour demain
Sinon je loue un truc et je me débrouille ....
25. Pose du toit
Yeeeeeaaaaahhh !! comme dirait nos amis cowboys
Ca y est le toit est posé et même pas besoin de louer une grue !
Ce matin j'ai fini les derniers morceaux d'OSB pour les hauts de murs latéraux :
Puis cet AM un pote de l'Aïkido est venu me filer un coup de main à la dernière minute !! Merci Olivier !!
Et en plus notre futur voisin et ses deux garçons sont aussi venu filer la patte, du coup on était 5, le nombre idéal, 4 qui portent et un allonger su l'échelle qui fait glisser la plaque.
pour la principe c'est assez simple, une personne était allongée sur l'échelle (qui était sécurisée aux linteaux par 2 sangles !!) les 4 autre amenaient la plaque, la posait sur le bord du mur avant et ensuite on poussait la plaque jusqu'à ce que le milieu passe le linteau. A ce moment, on laissait aller doucement la plaque qui se posait naturellement sur le plan du toit. Ensuite, une personne à l'intérieur sur un escabeau qui s'assurait du passage sur les poutres en I et le tour était joué.
On a posé les 4 premières plaques en 30 minutes, ensuite on a mis 1h30 à régler la première qui a jour le rôle d'ancrage pour toutes les autres. C'était une phase importante à faire correctement car sinon, tout le toit risquait d'être de traviole. Au passage je me suis aperçu que mes murs n'étaient pas parfaitement à l'équerre : j'ai 8mm sur 8m ..... J'ai hésité à démonter les murs pour corriger et finalement j'ai laissé comme ça ..... j'ai ben fait ?
En revanche, du coup j'étais une fois de plus tellement dans mon truc que je n'ai pas pris beaucoup de photos.
mais voici celles que j'ai :
Normalement demain :
- je finis de poser toutes les vis de fixation de la toiture avec les cavaliers
- je mets l'isolant et le pare-pluie.
- je pose les tuyaux pour l'aspiration centralisée
- je creuse pour poser le janolène qui amènera l'eau à l'intérieur.
Demain, le garage est prêt pour le coulage de la dalle dans 15 jours 
26. Isolant et Pare pluie
Travail du jour :
- Pose de l'isolant
- pose du pare pluie
J'avais prévu de poser également les tuyaux de l'aspiration mais j'ai pas eu le temps, j'ai encore fini à la frontale 
Ensuite pose du pare pluie, je suis un peu court sur le pare pluie à l'arrière, mais cette partie sera recouverte par les éléments de finition du toit. Malheureusement je n'ai pas de photos du pare pluie car il faisait éjà bien sombre !!
Et maintenant que la palette de laine de verre est dans les murs : c'est encore plus grand !!
Normalement mercredi je pourrai finir les tuyaux à l'abri pour être prêt pour le coulage de la dalle la semaine prochaine.
27. Pare Pluie - fin
Ce soir après le boulot, comme je m'ennuyais j'ai été finir mon pare pluie !
En fait je ne m'ennuyais pas, mais la pluie était annoncées et il me manquait un bout de pare pluie avec de l'isolant à l'air et c'était pas top. Du coup, dès que j'ai eu fini le boulot, c'est à dire dès que le soleil s'est couché
Je suis parti me détendre au frais
Cette fois-ci j'avais prévu : j'avais le projecteur
donc voici mes trois photos du soir :
Du coup, pour être sûr que l'eau ne rentrera pas, j'ai également posé en temporaire les rives de finition du bacacier. Il pleut en ce moment, j'irai vérifier demain l'état du merdier 
28. Litellage
Rien de bien passionnant aujourd'hui : pose des liteaux qui servent à la fois de tenue pour le pare pluie et de support pour le bardage
Et pour une fois j'ai pas travaillé à la frontale !!
Bon par contre j'étais humide ! il s'est mis à pleuvoir juste au moment ou j'ai commencé à bosser
C'est pas grave ce n'est que de l'eau mais c'est pénible quand même.
Donc aujourd'hui litellage pour pose du bardage un peu plus tard :
Rien de très compliqué, juste de poser sur les montants et encore une fois le cloueur de mon pote a été d'une aide précieuse !! si j'avais dû faire ça à la visseuse j'y serai encore !!
Demain pose des tuyaux et nettoyage, la semaine prochaine le chapiste vient couler la dalle béton. Il est passé vérifier ce vendredi et m'a demandé quel charpentier m'avait fais le garage !! Un grand moment de bonheur !! Désolé si ça fait un peu genre j'me la pète, c'est pas trop mon style mais j'avoue que j'étais particulièrement fier de pouvoir dire que c'était moi
. Comme quoi on peut y arriver si on prend le temps de réfléchir avant d'agir et si on écoute les conseils autour de soi
, si j'ai pu le faire tout le monde le peut.
Merci à toutes les personnes de ce forum et d'autres qui ont apporté leurs conseils c'est en grande partie grâce à eux que ce projet a pu voir le jour : Merci !!!
Prochaines photos : coulage de la dalle !!
A+ Marco.
29. Tuyauterie et Préparation Elec
Avancée du jour : Tuyauterie et Gaines électriques pré-filées !!
dernière étape avant la préparation (demain) avant coulage de la dalle (jeudi), j'ai enfin posé les tuyaux de l'aspiration dans la dalle !! J'ai procédé en plusieurs étapes :
1- Enlever les graviers à l'endroit prévu des tuyaux
2- Creusage et passage du janolaine pour le tuyau d'eau
3- "Montage à blanc" et présentation des tuyaux
4- Collage des tuyaux à la colle PVC
5- Ratissage pour tout remettre bien propre
6- et dernière étape : réouveture l'AM car j'avais oublié de passer les gaines !!! 
Pour les gaines j'ai fais le choix de gaines de 20mm de diamètre préfilées en 2.5mm². 20mm car on peut retirer une jeu de fils si besoin et 2.5mm² car ca me laisse de la marge pour brancher des appareils qui nécessitent de la puissance sans risquer de trop faire chauffer.
Bref demain préparation pour le coulage de la dalle qui aura lieu Jeudi toute la journée. Si je peux j'irai prendre quelques photos 
Voici un plan de l'asipration et des gaine elec :
Je mettrai à jour le plan dans la semaine.
30. Préparation pour le coulage de la Dalle
Aujourd'hui les chapistes sont passés pour préparer la maison et le garage au coulage de la dalle.
Finalement il s'agit de poser le poliane et le grillage d'armature et de protéger les murs :
Demain j'aurai normalement des photos du coulage de la dalle et vendredi c'est sciage des joints de dilatation.
Ensuite j'ai 2 semaines pour préparer la suite des travaux à savoir :
- Achat et câblage du tableau électrique
- prise de contact avec le commercial de chez Hammer pour la combiné
- Achat et approvisionnement du bardage
- Fabrication des portes
- Pose du bardage
et pour finir :
- ARROSAGE !!!!!

31. Coulage de la dalle
En accord avec le planning, le coulage de la dalle de la maison et celle du garage ont été faites aujourd'hui. Il s'agit de dalles de béton quartzé qui sont finies. Pas besoin de traitement de surface supplémentaire pou éviter la poussière ou autre.
Ca se passe en 2 étapes, d'abord du béton standard (ciment + sable + Graviers) arrivé en 2 camions toupies (il y en a pour 19m3 quand même). A l'aide du camion pompe, on amène le béton sur les sols préparée et on étale en mettant à niveau grossièrement et en ayant bien pris soins de coffrer les entrées et de mettre une cornière métallique pour éviter que le nez de la dalle ne se fissure lors des passages :
Ensuite on laisse tirer pendant 2h environ et on saupoudre du ciment coloré que l'on mouille légèrement avant de passer l'hélicoptère sur les grandes surfaces et de finir les bords et les tuyaux à la truelle. Ca ne se voit peut-être pas mais sur la dernière photo au dessus il y'a une pente en face des deux portes pour évacuer l'eau qui pourrait rentrer. Et le résultat est superbe :
Demain, sciage de la dalle pour les joints de dilatation. J'essaierai d'avoir des photos.
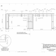
32. Préparation Tableau Elec et gaine GTL
Pendant le séchage de la dalle, j'ai commencé à réfléchir au câblage du tableau électrique. J'ai téléchargé le logiciel de chez Legrand qui s'appelle XL3 400 et j'ai les plans suivants :
- Organisation du tableau divisionnaire (c'est un tableau qui est après le tableau principal de la maison)
- Schema de branchement des 2 rangées de disjoncteurs
- Exemple de ce a quoi ressemblera le tableau
- Les étiquettes
Un truc dont je ne suis pas sûr c'est le parafoudre sur chacune des lignes ..... a voir je demanderai à mon électricien.
Du coup après moults périgrinations toilistiques et des heures de discussion j'ai un dossier électrique complet conforme à la norme 
Pour ceux qui veulent tous les détails de mes réflexions et les réponses apportées par des pros je vous renvoi temporairement à mon post sur CDC (pages 18 à 21) le temps pour moi de voir comment rapatrier tout ça ici.
33. Les portes
Alors ce Week-end fabrication des deux battants de l'une des portes !!
C'est pas très compliqué mais quand même, je suis tombé sur un problème pour lequel je n'ai pas de solution : mes battants vrillent !!
Bon une fois qu'ils seront fermés ca ne sera pas un problème mais c'est moche et ça ne me plait pas !
les coupables :
On voit bien sur chacune un coin qui ressort.
J'ai utilisé du bois de GSB (je sais j'aurai pas dû) et du coup je ne sais pas trop comment rattraper le truc si c'est possible.
Je prends toutes les idées et les conseils.
Pour l'instant mon coeur balance à aller acheter du bois sec en scierie ......
Merci à tous de votre aide.
34. Les portes : Tentative de rattrapage 1
Alors ce week-end j'ai tenté d'appliquer la technique Nico (merci niconathy) !!
Bon ....... comment dire ......... Ca ne l'a pas fait !
Disons que mon OSB est peut-être un peu trop fin du coup impossible de tout rattraper.
On m'a suggéré sur Copain Des Copeaux d'essaye la technique du raidisseur sur le côté ou ça rebique. Je suis en en congé Vendredi donc j'essaye ça le matin et si ça ne marche pas je vais visiter la scierie à côté de chez moi pour des plateaux secs !!
Sinon autre Solutions : utiliser les barres d'ossature 45x145 lamelé-collé qu'il me reste ... Ca m'ennuie un peu parce que je les réservaient à la fabrication d'un dessus d'établi ... mais bon, faut bien fermer avant que la bête arrive !!
Je vous tiens au courant. Et merci pour toutes les idées.
A+ Marco.
35. Portes temporaires version finale
Salut !
Du coup ça y est, j'ai pris le temps d'aller le bois pour faire la seconde porte et j'en ai profité pour faire évoluer un peu le concept
.
Comme je me posais pas mal de question sur le porte-à-faux des porte avec des charnières latérales, je me suis dit : pourquoi pas faire des charnières horizontales !!
C'est pas plus compliqué à poser et je trouve que c'est plus simple à sécuriser avec 2 verrous sur l'une et des verrous à baïonnette sur l'autre.
Pour la sécurisation, toutes les fixations seront sous le bardage et ne pourront don pas être facilement dévissées.
Voici donc l'avancée du WE :
- Découpe et marquage des deux derniers vantaux :
- Assemblage des deux derniers vantaux avec l'aide des serres-joints reçu de Dorora et Maelenie ;) :
- Mise en place des portes, calage et pose des charnières :
- Ajout des pieds de soutient et tests des portes ouvertes :
Moi ça me plait
. Juste un petit doute sur la facilité d'ouverture une fois l'OSB posé
Maintenant reste à faire la mise en place de l'OSB et la sécurisation. Après je pourrais commencer à ramener des trucs dedans comme mes deux établis que je pourrais remettre en état et je pourrais également préparer les rack à bois pour ranger un peu mieux tout le bordel qui est au fond
.
A+ Marco.
Ce pas à pas présente un projet en cours de réalisation.

Discussions
Super, un rêve de 20 ans qui commence à devenir réalité ! A suivre attentivement.
Une petite question bête, on ne voit ni gaine ni rien qui arrive pas le dessous. Comment fais tu arriver ton élec et éventuellement l'eau dans le bâtiment ?
je pense que tous ceux qui travaille le bois ,le fer ,ou autre on tous eu ce sentiment délicieux de se projeter dans son propre atelier ,comme des grands gosses , battissent leur nouveau jouet et les rêves qui vont avec !!!
alors bon trip a toi fait toi plaisir
zeloko il n'y aura pas d'arrivé d'eau dans l'atelier, et pour l'arrivée elec la gaine n'est pas encore posée mais elle est prévue dans le coin au fond à droite sur le plan.
Mon travail de cette semaine : acheté des tuyaux PVC de 100 de diamètre et les installer dans le lit de gravier pour faire une partie du système d’aspiration. J'ai prévu une sortie dans chaque angle et au milieu de chaque mur avec des guillotine à chaque fois.
sylvainlefrancomtois c'est un peu comme un Lego pour les papas !!
et j'adore les Legos !!! 
Tu n'as pas d'arrivé d'eau dedans, mais la maison ne sera pas trop loin ?
Je dis ça, parce que presque toutes les forme de finition vont finir par te demander de l'eau
C'est vrai ! effectivement la maison n'est pas loin et j'ai une sortie de robinet extérieur à moins de 5m de l'atelier ..... Ca suffira peut-être. Ceci dit j'ai une gaine supplémentaire de prévue et je vais peut-être l'amener dans le garage quitte à installer l'eau plus tard. Bonne remarque, Merci
5m et dehors, ça marche pas à toutes les saisons ;) Surtout en hiver où tu auras coupé le robinet extérieur.
Je pense que ça serait dommage de construire un tel atelier sans y prévoir l'eau et donc aussi l'évacuation de cette dernière.
Puisqu'on en est dans le confort, as-tu prévu un système de chauffage ?
C'est pas faux !!
Pour le chauffage, j'ai un vieux poêle godin qu'un ami m'a donné et qu'il faut que je remette en état pour brûler des copeaux et/ou des bûches :j'ai plein de bûches avec tout ce que j'ai abattu sur le terrain pour degager l'emplacement de la maison et j'espère bien que je vais faire pleins de copeaux avec mes nouveaux jouets !
et sinon en attendant j'ai soit la solution du chauffage électrique soit un chauffage portable a gaz (avec une bouteille).
pour la flotte du fait que tu part de 0 pour ton atelier pourquoi ne mettrais tu pas un réservoir d eau de pluie relie a ton chéneau
avec un robinet en direct ,ou un petit surpresseur ,?? c est tendance et un petit geste pour la planète qui en a bien besoin
Encore une très bonne idée a laquelle je n'avais pas vraiment pensé !! :) et qui en plus sera plus simple à réaliser :)
+1 pour cette illumination, merci
C'est pour ça que j'adore ce site merci zeloko
joli jouet !!!!
Ca va pas m'aider à apprendre le débillardage mais je ferai d'autre choses avec
n hésite pas a faire les vides grenier ,il y a souvent des affaires a faire en visserie Electricité plomberie ou autre ,si j avais eu cela quand je faisait ma maison ,j aurais fait de sacrées Economies ..
Oui bonne idée je vais déjà aller faire un tour sur le bon coin, je n'y avais pas pensé pour de la visserie
Je ne saurai te dire la norme, mais une vis tous les 15 cm sur les montants pour l'OSB, me paraît énorme.
Alors je suis pas un pro donc j'ai peut-être mal compris.
.
Et c'est clair que quand j'ai vu le nombre de vis j'ai un peu pâli !
Cela dit, c'est du contreventment donc les vis vont travailler en cisaillement et pour ce type de fixation elles ne sont pas de fort diamètre donc j'imagine qu'on doit compenser le diamètre individuel par le nombre, mais ca n'est qu'une hypothèse.
Ma source c'est ça : Kronofrance OSB 3&4 en contreventement ou en page 2 ils citent la DTU 31.2 et la norme NF P 21-102 et les contraintes, je n'ai pas acheté la norme DTU 31.2 ni la norme pour deux raisons : d'abord je ne l'aurais très probablement pas comprise
et ensuite parce que faut quand même pas déconner
ca serait se faire un peu trop de noeuds au cerveau :)
Pour l'ossature bois la liaisons lisse basse et montants (2 clous de 90mm torsade) et pour l'osb en périphérique entre 10 et 15 cm et en milieu de plaques entre 20 et 30 cm (clou devan depasser de minimun 45mm dans le montant)
Merci Morgan !
) et ça veut dire qu'il faudra que je prenne des 5x60 en vis puisque je suis en OSB 12mm (60-12 = 48mm).
Donc j'ai bon sur le calcul du nombre de vis (ca rassure
C'est bien d'avoir des pros qui nous aide
tu peux prendre de la 4X55 après je te conseil plus de le clouer car viser tu en n'a pour un moment
Oui ...... C'est pas faux .... 61 vis par panneaux ........24 panneaux ......... ca fait trop !!
ah j avais pas vu ! tu as utilisé ta nouvelle bécane ,encore une fois bon courage !
Très beau travail et bien préparé.
Je suis tout ça de très près, c'est très intéressant.
Je te félicite.
Je confirme ce que te dis Morgan , des pointes en contreventement c'est parfait. Je te joint l'extrait du DTU, paragraphe 4.3.1.3.2. Vu qu'en plus on te prête un clouer, tu vas vraiment gagner du temps et de l'argent ! Moi je mets de la pointe de 55 mm. J'espère juste que mon post n'arrive pas trop tard !
I have a dream.... You do it !
Wil génial !! merci pour l'info, ça confirme ce que j'avais trouvé etentenddu de manière indirecte et ça n'arrive pas trop tard
PapaBricole si tu es dans le coin, tu es le bienvenu à l'occasion
comme vous tous d'ailleurs 
Eh eh, ça avance même à Noël !
Sur la deuxième photo du paragraphe 8 on a l'impression que le pignon est 45 mm plus haut que la façade arrière, il y a une raison ?
Et je vois aussi pour le pignon que tu as modifié la conception par rapport à ton plan d'origine (et à y regarder de plus près, pour la façade arrière aussi d'ailleurs). Tu prévois donc de mettre tes pannes sur sabots, ou posées sur la lisse haute ?
hello ninja tu prévois des étrésillons comme sur ton plan ,ou en traverses contre ventée ??
Wil y'a pas de repos pour les braves ni pour les pressés !
j'ai une date butoir, il faut que je sois hors d'eau pour fin janvier. Pour les 45 mm c'est tout à fait juste et c'est prévu puisque quand j'ai pris la photo il n'y avait pas la traverse haute du mur du fond, l'erreur est donc juste
. J'ai effectivement modifié le plan (je le mettrai à jour d'ici un moment) car je vais passer avec deux poutres en I de 400 d'épaisseur, sur les conseils de mon charpentier, plus besoin donc de poteaux dans le mur du fond.
sylvainlefrancomtois oui, les entretoises sont toujours prévues, elle seront juste plus haut que sur mon plan car elles devront servir à fixer les plaques d'OSB pour le voile travaillant.
A+ Marco.
Et tes 2 poutres en I vont remplacer quoi alors ?
ok bon courage pour la suite !!
will Les poutres en I vont remplacer la charpente. Je viens de mettre à jour le plan, on voit bien la modif sur l'image. Il faudra également que je les étrésillonne (pas représenté).
Ah oui, c'est parfait les poutres en I. En plus si tu veux isoler c'est plus simple : il suffit de fermer en dessous et d'injecter de l'isolant type ouate de cellulose.
Mais pour les insérer dans tes pignons tu es obligé de recouper tes lisses hautes, c'est ça ?
Pour monter ton deuxième linteau, il serait peut-être plus simple de le hisser avec 2 cordes de chaque côté, petit à petit de chaque côté, comme tu as fait pour le premier ? Il y aurait moins de risque de se le prendre sur le nez !!!
will sur le dessin c'est effectivement comme ça, mais j'hésite encore. Je ne suis pas fan et je pense que si j'installe les poutres avant la mise en place de l'OSB je pourrai les enfiler sans avoir à découper les lisses hautes. Je ne suis pas sûr que ça ai un impact ...
Et pour le second linteau : Bon sansg mais c'est bien sûr !!!
pourquoi n'y ai-je pas pensé avant ? deux sangles et le tour devrait être joué de manière bien plus sécurisée. Merci
Pour ceux qui le désirent, un lien vers un document parfait pour savoir ce qu'on peut faire ou pas et comment avec des poutres en I.
Je viens de rouvrir à nouveau ton plan, et je vois que les poutres en I sont en effet sous le niveau de la lisse haute (c'est pour quelle raison ?). Donc en effet dans ce cas si tu peux éviter de les couper c'est pas plus mal.
Par contre tu as prévu un montant de chaque côté de ta poutre + des montants en dessous, il aurait été je pense plus facile de les assembler avec tout le reste au sol, en laissant un petit jeu pour glisser la poutre en I.
En fait d'une manière générale je préfère en assembler un maximum au sol, je trouve que c'est plus pratique que de le faire une fois levé. Ça évite par exemple de larder les vis pour la fixation basse des poteaux, etc...
Mais l'avantage de l'ossature bois c'est que chacun peut avoir sa méthode et que ça marche tout le temps, surtout quand le chantier est bien préparé comme le tien !
will la raison pour laquelle les poutres en I sont en dessous de la lisse haute c'est qu'elles seront posées d'aplomb et n'auront donc pas la pente du toit et d'après ce que j'ai lu on ne doit pas modifier les membrures des poutres en I sous peine de changer considérablement leur caractéristiques mécaniques. Donc une fois insérées je mettrai une barre en bois dessus que je delarderai pour avoir la pente du toit.
Pour le montage au sol je suis d'accord, mais la modification est arrivée tard et mes bras supplémentaires étaient déjà commandés
du coup j'ai dû m'adapter au planning de montage
mais c'est pas grave, soit je désolidarise les murs et je les décale légèrement pour passer par dessous sinon je planterai en biais. Dans ce sens ça ne me gène pas trop car ces poteaux vont travailler exclusivement en vertical et les vis n'assurent pas vraiment la tenue de la charge et puis avec les entretoises ca devrait assurer la tenue latérale.
Plan sketchup mis à jour avec la tuyauterie d'aspiration coulée dans la dalle.
Ah ben oui, j'aurai du y penser au morceau rajouté et délardé ! En effet, il ne vaut mieux pas raboter directement la poutre en I.
Tu sais, je pense que ça ne vaut pas le coup de s'embêter à décaler le mur pour visser par en dessous, larder c'est pas ce qu'il y a de plus précis mais ça fonctionne quand même !
Et en effet, avec les entretoises + le contreventement en OSB ça va former un ensemble indéformable. Donc pas de problème de résistance !
J'ai juste une question. Je suis le pas à pas depuis le début, mais j'ai peut être loupé une info.
La grue sur les photos, elle est bien présente sur les lieux? Tu ne peux pas l'utiliser pour soulever tes charges lourdes?
Sinon pour un "gratte papier" tu fais de jolies ossatures en bois. Cela promet...
Oui il y a bien une grue mais je n'ai pas le piano de commande
et les charpentiers sont partis en vacances la veille de la levée des murs. Et comme ils n'ont pas compté leurs heures et ont fait du très beau travail sur la maison, ça m’embêtait de leur demander de revenir en dehors des heures de boulot et pendant les vacances 
du coup on s'est débrouillé sans
Tu t'es débrouillé comme un chef!
Chouette équipe.
Tu as prévu 2 belles ouvertures.
Oui c'est pour pouvoir manipuler des grandes pièces de bois et faire rentrer de grosses machine
!!! (et puis si je vends je pourrai toujours dire que c'est un double garage
!
Hmm ... bon, bah j'y réfléchirai à deux fois à faire une visite surprise, si on se fait exploiter ... :P
Mais non ...... n'ai pas peur !!! viens voir l'atelier !! viens !!
Moi je viendrai quand il sera fini!
Comme ça, au pire, j'irai chercher les



Ça avance, c'est cool. Et très pro en plus!
Merci
Super projet !
Je vais suivre ça de près ^^
Bravo pour le travail déjà accompli !
Merci !
ça avance bien ,bientôt la récompense !!! en attendant bon réveillon a tous !!
oh oui !! bientot la place pour mettre mon combiné Raaaaahhhh Lovely !!!!
Bon réveillon à tous et une bonne année pleine de joie et de bonheur.
A+
Salut NinjaRouge. Petite question mais tu un pare pluie et si oui que mais tu comme isolant dans tes murs? Pourquoi ne pas mettre ton voile travaillant a l'intérieur pour pouvoir suspendre ou autre, isoler ton mur et lettres le pare pluie direct avec support bardage.
bonjour et félicitations pour ce super boulot !
je suis attentivement ton projet qui est passionnant et en plus j'ai un projet semblable que je devrait réaliser en 2016 si tout va bien... et en plus je suis informaticien aussi donc ça me rassure de voir que des tapoteurs de clavier peuvent s'en sortir aussi bien :)
bonne continuation ;)
Morgan Oui bien sûr, je vais mettre un pare-pluie. J'ai prévu de le mettre sur l'OSB à l'extérieur. Ca n'est pas la première fois que l'on me parle de faire l'isolation "par l'extérieur". Le truc c'est que je ne me sens pas assez compétent encore pour faire ça et surtout, cela rajouterai un coût non négligeable sur le projet et ça c'est carrément pas possible
. En plus, le garage est en limite de propriété et ce genre de méthode va me rajouter de l'épaisseur chez le voisin et je ne te cache pas que j'aimerai éviter ça autant que faire se peut (avec les voisins de ce côté là ça ne se passe pas hyper bien
)
flo70 merci
n'hésites pas quand tu feras ta réalisation, si je peux aider dans la mesure de mes moyens ça sera avec plaisir.
Bonne année à tous, qu'elle vous amène santé bonheur et propspérité dans l'ordre que vous voulez
et merci à zeloko pour cet excellent site 
Ce n'est pas une isolation par l'extérieur que je te propose. Mais de mettre ton voile travaillant a l'intérieur. Jai fait un petit schéma pour te faire voir ce que je te propose
Ah Oui !!!! Excellent, c'est pas comme ça que je le voyais. J'ai discuté avec quelqu'un d'un truc similaire, mais j'avais compris qu'il fallait mettre du pare-pluie rigide.
Et le pare-pluie qui fait contreventement ca coûte presque 11€ / m² au lieu de 3 pour l'OSB .... c'est pas le même budget.
Du coup effectivement ca me plait beaucoup car du coup je fait l'isolation et le bardage et en plus j'ai une surfce de mur intérieure déjà faite, pas besoin de rajouter de l'OSB ou du placo.
En revanche au fur et à mesure que j'écris je me rends compte d'un truc chiant : si je fais ce que tu dis, je n'aurai pas de plenum (je crois que ça s'appelle comme ça) pour faire passer mes gaines électriques et tout va se retrouver en apparant ou alors il faut que je perce des trous dans mes montants (en haut de préférence) et que je fasse passer mes câbles avant de mettre le voile travaillant.
Dans ma solution, je peux rajouter une épaisseur de liteaux pour fixer ma finition murale et avoir l'espace nécessaire pour faire passer mes gaines.
Et paf !!! un autre dilemme !! j'adore !!
je vais me creuser la tête là dessus tiens ! 
Alors soit tu passe tes gaines en faisant les trous dans les montants avant de mettre ton voile travaillant soit tu passe tout dans des goulotte. Moi perso je trouve sa pas mal d'avoir une goulotte périphérique a 1m de hauteur avec toutes les prises et les interrupteur. A voir mais le faite de mettre ton voile travaillant a l'intérieur t'évite 2 fois le même boulot
Pour les prises électriques, j'ai vu dans un atelier un système intéressant. Le propriétaire des lieus avait suspendu du plafond des rallonges électriques. Disposées au dessus des différents plans de travail, à bonne distance les unes des autres, à bonne hauteur, aucun fil ne traînait par terre, plus de fil qui s'entremêlent. Il en avait disposées une paire au dessus des différents lieux de passage afin de ne pas être embêté si un montage ou usinage se faisait au milieu de l'atelier. Son atelier fait dans les 120 m2 et moins d'une dizaine de prises faisaient l'affaire.
Sinon le système de zeloko est très intéressant aussi. Ayant eu le privilège de le tester personnellement, il est une très bonne alternative.
Ok, dans un cas comme dans l'autre, je pense que je vais faire comme l'a suggéré Morgan, rien que pour l'économie de temps et d'efforts.
Pour le système électrique, j'avoue que je ne suis pas fan des goulottes et en même temps je trouve ça très pratique (notamment pour pouvoir enlever, rajouter, déplacer des prises). Ceci dit je suis preneur d'infos sur le système zeloko(C)(TM)(R)
j'ai regardé l'article sur l'atelier du maître mais je n'ai rien vu sur cet élément.
NinjaRouge, regarde au paragraphe "Bloc prises" dans cet article ;)
Et si tu veux le voir en action, regarde là.
Ah oui ! très bonne idée. J'aime bien. Reste la question d'amener l'élec jusqu'à la prise multiple et une fois que j'aurai ça, je pense que je vais piquer l'idée !
D'ici là je pense que je vais faire passer mes gaines dans les murs pour les faire arriver à des endroits "stratégiques". L'idée c'est que le jour ou je veux aménager pour faire un studio pour ma fille par exemple (ou pour moi si ma femme me met dehors !!
) je n'ai pas les goulottes sur les murs. Donc je me dis que 2 arrivées Elec dans chaque murs latéraux, 3 dans le grand mur du fond et un dans le pilier entre les portes c'est pas mal et après je dispatch avec le système de zeloko. Ça fera moins de 2m entre chaque prise, ça devrait le faire. Et pour le combiné je fais sortir une gaine de la dalle au milieu de la pièce à côté de l'aspiration.
A propos de l'aspiration je fais appel à vos retours d'expérience si vous en avez : dans la dalle ou en aérien ? Ce que je me dis c'est que dans la dalle c'est pratique, ça ne gène pas, en revanche le jour ou je convertis j'aurai 9 "gros trous" à boucher ou a masquer et en aérien ça s'enlève en deux coups de cuillère à pot mais du coup ça risque de gêner pour la manipulation des grosses pièces. Qu'en pensez-vous ?
Tu prévois ton atelier sur du long terme, ou juste quelques années? Même si personne ne peut prédire l'avenir, c'est ton projet de vie qu'il faut regarder.
A priori on est là pour rester. Seule inconnue, dans 10 ans quand la petite aura 18 ans et si elle veut un petit chez elle si elle fait pas des études loin. Donc mini pour les 10 prochaines années l'atelier sera ma grotte à moi !!
et même après ca risque de le rester. Il n'y a que la revente qui pourrait poser problèmes et là c'est pas dans les plans à long terme.
S'il y a des imprévus ou des impondérables on gèrera
Donc si cela ne pose pas de problème technique à l'utilisation, personnellement je prendrai l'option dans la dalle. Mais je laisse le soin au processeur d'un tel réseau de donner leur avis, et surtout le propriétaire des lieus de cet atelier dauphinois de décider en son âme et conscience.
Je me dis que le mieux c'est en effet dans la dalle. Tant qu'à se faire un atelier tout neuf, autant aller jusqu'au bout ! Et puis le jour où tu vends, l'acheteur potentiel peut bien comprendre que cette construction là, et bien c'était TON atelier !
Bon, ça me conforte dans mon idée, ça sera dans la dalle !!
C'est la classe ces portes !!! Par contre en effet ça demande une bonne réflexion pour l'habillage, l'étanchéité, etc...
Je pense que c'est plus des portes intérieur que des portes d'entrée. J'avais vu une vidéo où le système était présente en porte pour accéder à une grande pièce.
perso , je ne vois pas trop l'intérêt (autre qu'esthétique et de la fierté de le faire soi-même...) de ces portes...
Sinon, belles avancées!
Niouniou on est bien d'accord ! c'est surtout pour le fun et parce que je trouve l'idée ingénieuse et le challenge technique et intellectuel (comprendre comment ca marche) intéressant

et merci
Yeah, les affaires reprennent !!!
Ah ba ouai, là c'est andergroove !




alors un peu de mauvais temps et tu t'arrêtes, dommage ...
nous attendons tous le ton atelier avec impatiente de plus tu dois réalisé plein d'ouvrage intéressant ^^
nous sommes tous derrière toi, ... surtout derrière nos écrans ^^ pour te soutenir et suivre cette belle aventure !
te voila avec du taf ,je t encourage de loin !!!
Vivement demain pour la suite !
Bon courage!
Cette nuit je travaille, mais juré, demain quand je dore, je suis avec toi.
Aller au lit, c'est l'heure! Demain tu as besoin d'énergie. Bon aussi, pour le plaisir, il y en a tout le temps.
Bon, le neige à fondue alors ;) Bon courage
!
cela prend forme tu vas te rendre compte bientôt du volume réel, tu dois avoir hâte???
Et bien c'est parfait tout ça ! Tu as bien fait de mettre les entretoises après, comme ça tu n'as pas à te casser les méninges pour être sûr de leur position.
Il ne serait pas plus prudent de mettre le toit avant l'isolant ?
Franchement j'hésite .... J'ai pas encore décidé !!
va falloir que je me bouge parce qu'il faut que je décide avant demain !! 
Si ton isolant prend l'eau c'est pas bon du-tout!
petite question technique: tu ne va pas scotcher ton isolant pour l'étanchéité a l'air? ( bon en vrais j'ai déjà la réponse vue que l'OSB intérieur est déjà poser donc c'est juste pour savoir si c'est un choix de pas en mettre ?)
L'OSB peut tout à fait servir de frein vapeur, il suffit de scotcher les raccords de plaques et tout les trous de pointes. Après c'est un garage, je ne suis pas convaincu de l'utilité. Un bon scotch coute cher et ça prend du temps à faire.
Par contre NinjaRouge , si tu veux le faire il faudrait que l'OSB monte jusqu'en haut, et raccorder au scotch les OSB au frein vapeur du toit.
Je reconfirme que tu devrais mettre le toit en premier...
mattlalielouise Oui effectivement l'isolant n'est pas fait pour prendre l'eau !
. Du coup par construction je ne scotcherai pas puisque je poserai les plaques d'isolant avec le pare-vapeur côté OSB. C'est un choix pour deux raisons :
Wil pour le toit je pense que tu as raison. Maintenant que mes murs sont contreventés je vais pouvoir poser mes plaques de bacacier tranquille.
Il faudra que je fasse la pose de l'isolant et du pare-pluie dans la même journée ou il ne pleut pas .... Je vais patienter un peu
Super boulot! Ça doit être génial de partir d'une feuille blanche et voir ton atelier avancer au fil des jours.
Bon courage pour la suite.
Je ne connais rien de plus gratifiant que ça !!! (à l'exception de la naissance de ma fille et de mon mariage
) Je souhaite à tous de pouvoir le faire un jour ça fait un bien fou au moral de pouvoir réaliser un rêve et de pouvoir le partager ici et d'avoir plein de retours et de conseils. C'est un grand moment pour moi !! 
Wil NinjaRouge étanchéité a l'air peux être intéressant si l'on veux placer l'aspirateur a copeau a l’extérieur mais effectivement c'est pas indispensable.
Pour la découpe de l'OSB, lorsque celle-ci est de petite taille, le plus simple est de la faire à l'ébauchoir. La coupe ne sera peut-être pas très nette mais c'est facile à réaliser en haut d'une échelle.
Un petit moment que je suis les travaux, et je n'apprends qu'aujourd'hui que tu es un acrobate accompli!
Fais attention, on voudrait voir l'atelier fini sans photos de toi à l'hôpital.
Sacré boulot en tout cas.
Wil Effectivement, le truc c'est que je n'en ai pas
!! bon d'accord je reconnais que j'aurais pu prendre un gros ciseau à bois .... mais il m'aurait fallu rentré chez moi pour le récupérer ..... Cela dit c'est une mauvaise raison je le reconnais mieux vaut perdre 1h qu'un doigt ou pire ....
jeanco77 alors pour le coup acrobate je ne sais pas mais imbécile accompli c'est devenu une certitude !! moi qui suis habituellement un fou furieux de la sécurité tellement j'ai peur d'y laisser un bout, je ne te cache pas que je me suis étonné moi même et pas forcément en bien ... Enfin bon ce qui est fait est fait mais dans ce cas là faudra pas refaire !!! moi aussi j'ai envie de voir l'atelier fini et en un seul morceau !!
D'ailleurs si j'ai mentionné la chose ce n'est clairement pas pour me vanter mais bien pour mettre en garde ! A ne jamais refaire pour aucune raisons. Les risques sont bien assez nombreux pour ne pas en plus leur offrir des occasions de se produire.
Le mieux de tout en charpente c'est une tronçonneuse !!! Sa avance bien tout sa rien que voir les photos sa me rappelle des bon souvenir quand je faisait des maisons
Après pour le contreventement de ta charpente je suis d'accord sur le principe mais vu la taille et le bac acier que tu met sur le toit tu ne craignait pas des masses. Bonne initiative !
mouais, la tronçonneuse sur une échelle, je suis pas sûr que ça soit moins dangereux que la scie plongeante, Morgan A part pour celui qui maîtrise, mais bon... Quoi que...
Sinon, NinjaRouge , un feuillard qui faisait les 2 diagonales et bien fixé sur chaque panne et sur chaque pan de mur, ça n'aurait pas été aussi efficace et moins chiant à mettre en œuvre ?
Si je visualise bien où tu as fait ta découpe, tu aurais pu minimiser peut être les risques. En te sécurisant à l'aide d'une corde accrocher à l'ossature. Une scie plongeante comme la tienne ne te met pas complètement à l'abri, mis des que tu la décolle, c'est à dire dès que ta force d'appuis est moindre, le ressort prend le dessus, et rentre la lame très très très rapidement.
Mais c'est sûr, à ne pas faire à une telle hauteur. Bien heureux de te savoir entier.
Morgan La tronçonneuse je pense que c'est un excellent outil en charpente pour tailler de très grosses poutres et avec les pieds fermement ancrés à terre
. J'en ai une bonne (husqvarna 550XP) pour m'occuper du bois derrière chez moi mais franchement même au sol je flippe à mort tellement ça peut être dangereux ces bestioles !! n'oublions pas qu'à la base je suis un col blanc pousse-bouton (je bosse dans l'informatique
)
Niouniou Oui effectivement, un câble acier dans chaque diagonale faisait aussi partie des solutions et là j'ai fais le choix du coeur, je voulais travailler le bois avant tout
.mais ça aurait très bien marché aussi.
niconathy merci, moi aussi je suis bien heureux d'être entier
Haha, ça y est te voilâ à l'abri !
C'est a ce moment la qu'on croit qu'on a presque finit...
et qu'il reste 2 fois plus de temps à consacrer pour terminer...
Seulement 2 fois ? tu es optimiste !!
il reste :
et j'en oublie probablement pas mal !!
Mais c'est que du bon
Voulais pas te saper le moral.
Et pour finir la mise en place de tout le matériel!!! Et pour chaque machine, il faut un certain temps afin de faire les réglages. Et puis après on a qu'une envie, c'est de jouer avec. Puis on passe à la suivante. Et après on optimise l'espace, comme madame dans sa cuisine qui réorganise un peu ou beaucoup...
Il y a effectivement des constantes universelles : madame qui joue dans sa cuisine, monsieur qui joue avec ses machines ..... heureusement que ma femme ne lit ce post sinon qu'est-ce que je prendrais !!
Et bien, ça avance !
Pour l'équerrage, tu as bien fait de laisser comme c'était, tu es pile à la tolérance maxi : 1 pour 1000
Je veux pas faire le casse-pied, mais les débords de toit sont pas un poil court pour bien protéger le bardage ?
Ouf !!! Ceci dit, pour être franc, il y aurait eu plus : je n'aurait rien changer quand même !!!!
J'imagine que tu parles de la face avant ou il y a les portes.
En l'état oui il sont trop courts, mais c'est parce que je n'ai pas encore posé les closoirs. Ce sont des pièces d'acier qui épousent la forme des vague trapézoïdales du toit et ajoutent un peu longueur. On peut y fixer ensuite des chenaux qui s’emboîtent dessous.
Oui, en façade, mais aussi sur les côtés. Le bardage aime bien être protégé !
J'ai déjà posé des closoirs mais ils ne rajoutaient pas de longueur. Je regarderais donc ton modèle avec attention !
Autant pour moi, je n'ai pas regardé le bon modèle pour la pose, les closoirs ne rajoutent effectivement pas de longueur. Je verrai bien à l'usage ....
Sur les côtés, j'ai des pliages de finitions de même qu'à l'arrière qui viennent par dessus le bardage et le protège.
Oui, c'est vrai qu'en ce moment travailler à l'extérieur n'est pas le plus agréable !
Pour le bardage, l'important est de savoir comment tu vas gérer tous les détails (angles entre murs, raccord avec les portes de garage) avant même d'avoir commencé à poser la première lame ! Sinon tu risque de te retrouver à poser une grosse baguette d'angle qui n'est pas toujours très belle à mon goût, et pas toujours facile à poser proprement après coup.
Je t'ai fait un p'tit croquis de la méthode que je préfère. Je fabrique une baguette d'angle constituée de 2 morceaux : un morceau de bois massif de même essence que le bardage (ou pas d'ailleurs) et une contrelatte. Le massif est déligné suivant les épaisseurs de bardage et de contrelatte utilisées. La contrelatte est vissée-collée derrière le massif.
Ensuite je pose l'ensemble en lieu et place des 2 contrelatte que tu as mis sur l'angle.
Le bardage est posé à joints creux avec la baguette d'angle, je laisse environ 5 mm de jeu.
Je passe aussi le fond du joint creux au goudron végétal en faisant attention de ne pas débordé sur la partie visible de la baguette d'angle. Cela protège la contrelatte qui a été vissée au massif.
Pour les portes de garage, ce que je préfère c'est poser un précadre sur lequel viendra se fixer la porte par l'intérieur, et à l'extérieur le bardage terminera en joint creux sur le bord du précadre.
Mais si ça se trouve tu as déjà tout prévu !
N'hésite pas à me dire si tu trouves mes explications pas très claires !
Wil Tes explications sont claires et les schémas les rendent limpides !!
Tu m'accordes beaucoup de crédit et je t'en remercie, cela dit force m'est de reconnaître que je n'avais pas prévu ces détails là
.
J'y avais pensé un peu et mon idée de départ était de faire des coupes d'onglet entre les lames et aux bords extérieurs des murs comme sur l'image en dessous.
Mais c'était une réflexion un peu simpliste car après réflexion je me dis que les découpes vont être un peu ardues et que la pose doit être parfaite pour qu'il n'y ait pas de jour. En plus si je ne me trompe pas, la moindre erreur en bas va se démultiplier pour faire un gros espace en haut.
Bref je ne sais pas encore !
Je te déconseille de faire des coupes a 45' pour de la pose horizontale,la méthode a wil est celle que j'utilisais aussi. Apres tout dépend le type de bardage que tu utilise.
Ca sera du faux clairevoie en melèze avec un profil comme celui ci-dessous ...... du coup ça risque d'être encore plus compliqué non ?
Les coupes d'onglets vont être d'autant plus difficile à réussir proprement que sur tes pignons elles devront être bonne pile poil des 2 bouts à la fois. Et si jamais tes lames de bardage sont un peu tuilées, pour le coup la coupe d'onglet parfaite est impossible !
Bon, je ne veux pas te faire changer tes plans, mais c'est une solution qui parait simple mais finalement ne l'est pas tant que ça je trouve !
En bardage le plus simple niveau pose c'est le bardage verticale. Tu pose tout et après tu met des coups de plongeante !!!
J'ai vu il n'y a pas longtemps sur un chantier une rainure de l'épaisseur du bardage dans les précadres des ouvertures, ce permet d'arriver propre... Et il me semble que c'était similaire dans les coins sortants...
C'est aussi une bonne solution je trouve, que j'ai déjà utilisée. Elle fait un peu plus de travail dans la fabrication des précadres, mais l'avantage c'est que les coupes du bardage n'ont pas besoin d'être pile poil ! Et du coup on regagne du temps !
Par contre il faut bien faire la feuillure plus large que le bardage de 2mm environ, et laisser aussi du jeu en bout lors de la pose de ce dernier.
Couvre le haut de tes tuyaux, il serait ballot qu'un truc tombe dedans. demain dernière ligne droite pour le gros oeuvre!
Comment as tu déterminé les positions de tes tuyaux ? Tu sais déjà exactement ce que tu vas mettre comme machine et où ? Allez vas y, fait nous rêver !
Oui niconathy, un truc genre du béton !!! Tu as bien raison, en fait ça arrive souvent en plus ce problème.
Pour l'électricité, j'aurais fait comme toi : pas de questions à se poser, tout en 2,5mm2 !
niconathy très juste. J'y ai pensé il y a un mois en achetant du gros scotch orange et puis aujourd'hui j'ai complètement zappé !!
Wil Pour les emplacements, j'avais prévue d'en faire 9 comme sur le plan que j'ai été obligé de simplifier (second plan) ar mon chapiste m'as dit que c'était compliqué de gérer ce genre de truc car ils ne peuvent pas passer l'hélicoptère. C'est comme sur les bords, ils font tout à la main pour le lissage.
Là j'ai :
Je vois que les tréteaux ont déjà trouvés leur place !
Wil obligé : je ne voulais pas qu'ils couchent dehors !!
Le truc c'est que j'ai fais ça un peu dans la précipitation du coup pas sûr que ce soit leur emplacement définitif. Maintenant j'ai 2 semaines pour réfléchir à l'organisation de l'atelier et l'implantation des machines, et l'ordonnancement des postes de travail comme l'a conseillé racmterroff dans les commentaires du plan
J'aimerai bien avoir la même dalle chez moi. Mais heireusement que je ne l'ai pas fait à l'époque car le lendemain du coulage, j'avais des jolies signatures de félins sur ma zolî dalle toute neuve, alors sur une quartzée, j'aurai eu encore plus les boules !
C'est vrai que ça ressemble à un vrai miroir!
Le quartz, ça bloque vraiment la formation de poussière en surface ?
Allons, allons Niconathy, ne sois pas amer ... tu devrais plutôt te dire que tu as une dalle unique, dédicacée par mistigri ! haha!
Ouai ouai...



niconathy Oui !!! nous aussi
mais uniquement sur la dalle béton du maçon. Les dalles de finition comme celle-là ne sont généralement coulées qu'une fois les menuiseries posées car elles font plus ou moins office de référence, donc portes fermées et pas de risque de jolis z'animaux.
Ensuite il faut pondérer, la dalle est quasiment à sa dureté maximale le soir même. En tout cas en surface. Les deux semaines c'est pour le séchage à coeur et pour que la dalle atteigne sa résistance nominale.
jeanco77 non, ce n'est pas le quartz qui empêche la formation de poussière mais la résine bouche-pores qui est appliquée après séchage complet. Le quartz c'est surtout pour la dureté de la couche superficielle histoire qu'elle ne s'use pas trop.
Enfin, tout ça c'est ce que j'ai compris
peut-être qu'un pro pourra confirmer 
hello ninja !!quel aboutissement la dalle ! tu doit commencer à toucher du doigt ton rêve le reste viendra vite beau boulot sur toute la ligne ,pour nico c est vrais que avoir la dalle ça donne faim lolll !
sylvainlefrancomtois Oh oui !!! je trépigne !!! je vais bien profiter de ces deux semaines pour reprendre contact avec le commercial de chez Hammer et finaliser l'arrivée de la combinée !!
et merci pour les compliments !! je suis bientôt prêt à m'essayer à l’arêtier et au débillardage !!
Cool ça prend vraiment forme !
effectivement pour le quartz c'est pour la dureté (en surface)
Mon beau frere bosse dans le béton ciré c'est lui qui a fait notre plate forme pour notre piscine et justement je lui ai demander a quoi servais le faite de rajoutez du quartz juste répondue c'est pour garantir une dureté sur la surface.
belle dalle.
Je ne suis pas électricien, mais sur mon tableau de maison, je n'ai qu'un parafoudre en tête de tableau...
Ah, enfin l'électricité ! Bon, ben là je peux pas te conseiller !!!
Quand j'ai fait construire, la norme était de mettre 3 prises par différenciel. Sur la 2eme photo, je crois comprendre que tu as prévu 8 point de prise. Je ne suis pas sûr que cela passe pour le consuel. Un point de prise peut contenir une prise double voir triple mais à vérifier.
Perso, ils ont mis un parafoudre pour tout le tableau.
Alors d'après la norme NFC-15-100 dans l'amendement 5 paru en février de cette année qu'on trouve ici il est dit qu'on peut mettre jusqu'à 8 prises derrière un disjoncteur 16A câblé en 1.5mm² et jusqu'à 12 prises derrière le même disjoncteur câblé en 2.5mm².
Comme je suis en 2.5mm² normalement je suis bon. A moins que j'ai mal lu et interprété la norme ce qui n'est pas impossible !!
NinjaRouge effectivement tu as raison et surtout bien lu, la norme c'est bien celle la 8 prises derrière un 16A en câblé en 1.5 et tu peut mettre 12 prises en 2.5 toujours en 16A et protéger par un dif de 30 mA
Ton atelier fait combien de mètre carré? Si je prends ma calculette, 8*3=24 prises!!! Tu montes un atelier de production avec 10 bonhommes? Tu vois peut être un peu grand, en nombre de prises. Je me souviens que cette question à été évoquée au début. Tu avais parlé d'en mettre une tous les mètres. Perso, j'en positionnerai un peu partout de façon stratégique, mais 24 me paraît beaucoup. Dans ma maison je n'en ai pas autant.
Cela dit je respecte ton choix car je crois bien que c'est ton atelier. Alors c'est toi le chef d'équipe, et surtout de chantier.
Merci NinjaRouge pour cette mise à jour de la NF 15-100!
Niouniou de rien c'est un plaisir de partager
niconathy outre le fait que c'est vrai : c'est moi le chef !!!
, il n'en reste pas moins que toute critique est bonne à prendre
. Pour répondre à ton interrogation tout à fait légitime, j'aurais dû préciser que le 8 en question c'est un maximum. Mon idée c'est de disposer de blocs de 3-4 prises tous les 2-3 mètres sur chaque façades à la façon de notre maitre à tous : zeloko !!
(en tout cas le mien
) (voir cet article dans la section bloc prises)
Il n'est pas sûr que je les utilise toutes. Disons que je travaille encore à l'organisation des postes et que ça pilotera pas mal la disposition des p'tites mémères !
NinjaRouge, me v'là bien gêné d'être le maitre de qui que ce soit ;)
Sinon, pour les prises, je me suis rendu compte que mon usage a changé depuis que j'ai un aspirateur à mettre au cul de mon électroportatif. En effet, 95% de mes outils sont à brancher sur l'aspi. Mais c'est vrai qu'il arrive toujours un moment où je vais avoir besoin de brancher un outil plus loin.
Et voici mon tableau : 4 lignes (1 tri et 3 mono - une par phase)
J'ai 6 prises mono (2 par phase).
Il y a de la place, parce que j'ai bon espoir d'électrifier cette section de la maison et donc de venir dans ce tableau.
Salut Zeloko,
petite question (on ne voit pas hyper bien sur les photos) :
Tes machines sont en tri
tu as, sur t a ligne "tri" un sectionneur (quel calibre en A stp?) puis un 30mA (quel calibre en A stp?) puis un disj tri par machine...
as-tu le neutre qui va jusque tes machines, ou seulement 3 phases + terre ? (question cachée : pourquoi des disjoncteurs tri et pas tétrapolaires...?)
Merci d'avance
Je suis pas certain de comprendre la question des calibres. J'y bite rien là dedans.
Tu peux reformuler ?
non
Je sais pas. C'est l'électricien qui a géré.
je sais pas si ça s'appelle calibre, en fait... C'est savoir si c'est 16 ou 20 ou 32A...
De gauche à droite, tu as ton sectionneur (certainement un truc du genre 40A, selon moi...) puis un disjoncteur différentiel (avec un bouton test et 30mA de marqué dessus) et ensuite, un disjoncteur par machine 16/20/32A selon la machine...
Si tu avais le neutre jusqu'à tes machines, tu aurais besoin de disjoncteur tétra polaires (3 phases + neutre)... Mais là, non, donc, tu as des disjoncteur tripolaires (qui ne gèrent pas le neutre car tes machines n'en ont pas besoin... CQFD
> Je sais pas. C'est l'électricien qui a géré.
En fait, j'essaie de savoir si je dois mettre des disjoncteur tri ou tétrapolaires (sachant que je ne sais pas encore quelle machine(s) j'aurai...
Je vais faire une question plus précise et ouverte dans la rubrique concernée...
Merci pour l'info et les photos maître zeloko !!! Mouhahahaha
Petite question par rapport au triphasé d'ailleurs : est-ce que ça coûte plus cher ? est-ce que c'est mieux pour les machines ?
Parce que je regarde pas mal sur le net et beaucoup de machines sont en tri et celles qui sont en mono sont assez chères. Et puis j'adore les vieilles machines genre guillet ou l'invincible et celles-là sont toutes en tri...
en mono, tu es TRES limité en puissance, le maxi, ça doit être 2CV (1500W) (mais 1500, c'est pas sûr du tout!!), donc pour dégauchir, c'est plutôt limitant...
L'abonnement est plus cher mais le kWh doit être similaire théoriquement...
Mais Tri, il faut équilibrer tes phases au niveau de ton installation, c'est un plus gros cable jusqu'au compteur edf, ce n'est pas le même compteur edf...
J'ai jamais eu le mono dans la maison. Je peux pas comparer. Je crois pas que ça coûte vraiment plus cher. Reste que si ton arrivée est pas en tri, il y aura de frais de transformation ...
Le hic, c'est qu'avec tout ce qui consomme du jus dans une maison maintenant, une installation domestique en tri, c'est plus cher, parce que tu es obligé de prendre plus de puissance. DU fait que sur chaque phase tu n'as qu'1/3 de ta puissance totale. Genre moi je suis à 9k et j'ai 3k sur chaque. Si je branche deux appareils mono qui consomment plus de 3k sur la même phase tout saute ...
Normalement, oui. Le rendement est meilleur.
Je suis équipé en mono. Mes machines fond 4 cv, soit environ 3000W. En tri tu as plus de couple. Le démarrage d'une machine tri coûte plus cher qu'en mono, par contre si tu la laisses tourner à vide (le temps de prendre une pièce, de peaufiner un réglage, ...) elle consomme presque rien par rapport au mono.
Le prix de l'abonnement est plus cher en tri. La proportion, je ne la connais plus mais c'est pas négligeable.
EDF arrive en tri au bord de ton terrain. Si tu veux du mono, ils tirent 2 files, si tu veut du tri, ils en tirent 4.
Si tu n'as encore rien décidé avec EDF, c'est pas encore trop tard en théorie. L'installation n'a pas le même coup (compteur, équilibrage des phases, ...)
Le tri c'est plus costaud,
Je vais me renseigner avec EDF parce que du coup je me pose la question de mettre un compteur mono pour la maison et un compteur tri pour le garage. Il faut juste que je chope les infos de coût d'abonnement histoire d'être sûr de ne pas faire une connerie économique : ça pousse pas ces trucs là !!
"Je suis équipé en mono. Mes machines fond 4 cv, soit environ 3000W."
Autant pour moi, il me semblait bien que c'était pas tout juste, ma réponse!! Merci niconathy
Pas de problème Niouniou .
NinjaRouge si tu mets deux compteurs, tu auras deux abonnements à payer!
renseignements pris :
Ce qui donne :
Conclusion : Ca me triple le coût mensuel de l'abonnement c'est NON !!!
L'autre solution serait de tout passer en tri mais là l'équilibrage des phases va être un peu compliqué et de toute façon, le compteur à l'intérieur est déjà câblé en mono donc c'est niet. On verra quand j'aurai gagné à l'euro million !!
La différence n'est pas négligeable, effectivement.
Les prix de l'abonnement sont les mêmes, certe mais a puissance équivalente, or en tri c'est mini 15KWh, donc au final, c'est plus cher.
Chez moi tout est électrique, sauf le chauffage, c'est un pôele, je suis à 9KWh pour l'abonnement. En tri, j'ai regardé à l'epoque, je me souviens, quand j'ai cherché mes nouvelles machines, et j'ai très vite abandonné.
Bah ... j'ai un abo en tri et à 9kVA ... Faut peut-être pas que j'essaye de le changer alors ;)
Et je viens de regarder, j'en ai pour 105 euros HT d'abo + acheminement pour l'année dernière.
Je pense que je vais abandonner l'idée. Il y a de très bonnes machines en monophasé également !!
J'y pense d'ailleurs, 3 fils d'un monophasé avec un condensateur sur chacune pour décaler les phase ca peut pas marcher ? (encore une idée à la noix
)
NinjaRouge pour ce qui est d'avoir un abo a la maison en mono et de ton garage en tri je ne pense pas que ce soit possible a moins d'avoir deux abonnements séparer obliger.
Après certaine vielle machine comme tu la stipulé en tri tu peut les passé en mono moyennant une modif (avec perte de puissance) avec certain moteur , branchement en étoile , je me suis renseigner il y a quelle que temps mais j'ai abandonner car les scie que je trouvais avais trop de rénovation.
Apres comme tu dit il y a de bonne machine plus récente en mono et qui marche très bien !!
Oui je confirme, 2 compteurs = 2 abonnements = x3 sur l'abonnement donc j'abandonne !!
Je suis pas à la rue mais c'est pas une raison pour jeter l'argent par le fenêtres ! avec cet argent j'achèterai du bois pour faire de jolies réalisations pour ma fille, c'est bien plus gratifiant que de le donner à EDF
J'ai une vieille aspiration en tri, que j'ai branché en mono en y intégrant un condensateur. Si mes souvenirs sont exactes, on est limité en puissance pour cette modif. on m'avait parlé, le vendeur du condensateur, d'un variateur et je crois qu'il transforme le mono en tri, et là je suis sûr que c'est limité en puissance. Il est sur Voreppe.
Ma scie 4 CV ne peine pas pour couper du chêne en 80. Avec une bonne lame, et des bons fers, aucun soucis sur la toupie non plus. Sur la raboteuse je fais régulièrement des passes de 2mm.
J'ai un copain de formation qui a du leman (moins puissant mais je ne sais plus exactement 2,5 pu 3 CV) et il était assez déçu.
Sinon tu peux te fabriquer une éolienne pour mettre sur le toi de l'atelier et produire ton électricité en tri.

pour les plan : ici
a réaliser en bois bien-sur
mattlalielouise J'adore !!! j'en fais une dès que j'ai finis les autres projets
Dommage que le projet soir au point mort
Pour ceux que ça intéresse, beaucoup de détails sur l'elec du garage sur mon post sur CDC (pages 18 à 21 !!)
J'intègre le dossier électrique dans ce pas à pas mais je ne sais pas si ça fait du sens de tout recopier zeloko qu'en penses-tu ? et les autres ? si vous pensez que c'est mieux je le ferai avec plaisir
Ca y est le combiné est commandé
il arrive dans un mois et demi Hhhouuuuuuu Sammmiiiiiii c'est jouuuuuliiii ! 
Vas y fais nous rêver!
Raaaaahhhh lovely !!! :D
Le plus dur c'est que maintenant que j'me la suis bien pété : va falloir apprendre à s'en servir pour faire des trucs bien avec !!
J'ai la même !!
Elle fonctionne très bien et pour du matériel grand public, la qualité est vraiment top : précision, puissance ...
Tout pareil!!!
Arbre elicoidal pour la rabo?
Nan, faut pas rêver trop quand même ... j'y ai mis 7500 zeuros il y a 8 ans c'est déjà pas mal. Elle avale quand même ses 4mm de passe toute largeur sans broncher, alors c'est pas mal quand même.
moi non plus je ne l'ai pas. je ne suis pas plus malheureux. et notre ami NinjaRouge , il l'a pris l'arbre hélicoïdal?
Voui m'sieur !!
Je suis assez proche de mes voisins (au sens propre comme au figuré) du coup j'ai voulu ménagé leur oreilles et les miennes
et dispositif multi réglages pour la toupie mais ça c'est parce que je suis un feignant
Héhé ... petite question curieuse NinjaRouge, avec toutes ces options, la note s'élève à combien pour ton nouveau jouet ?
Au sujet de l'élec, à toi de choisir si tu veux dupliquer ce qui a été expliqué sur CDC.
Je me posais la même question que zeloko mais je n'ai pas osé la poser...!
Wil il n'y a pas de mal à poser des questions
au pire si c'est trop perso je ne répondrai pas
Wil , zeloko La facture totale est de 9188,32€ TTC précisément et ça inclus une réduction de 1912€ TTC. Ca fait presque 2 ans que je fais poireauter le vendeur car nous avions intégrer ce coût dans le prix de la maison, on a pas tous les jours 40 ans !!!
.
Alors on a fait construire la maison pour ma chérie c'est ce qu'elle voulait pour ses 40 ans et moi j'ai intégré la machine dans le prix
Ce que j'ai particulièrement apprécié chez Hammer c'et que le commercial a gardé le contact sans jamais me pousser à l'achat et sans jamais me dire : "si vous la prenez pas maintenant l'offre ne tient plus.". Il a toujours accepté mes reports gracieusement et sans broncher et me rappelait régulièrement pour prendre des nouvelles et ça j'aime bien. Je le conseil d'ailleurs c'est un gars très sympa. Pour ceux qui veulent les coordonnées envoyez moi un MP.
Zeloko, je le ferai alors comme ça les deux posts seront auto portants et ne feront pas référence l'un à l'autre ça évitera aux gens d'avoir à jongler, par contre je vais étaler un peu ça dans le temps. Je mettrai ça dans un article dédié.
Bon ben alors il me reste 5 mois pour fabriquer une maison à ma femme et m'équiper comme un pro !!!
Non, je ne suis pas à plaindre sur ces deux points !
Tu as eu raison d'intégrer ta machine dès le départ dans ton projet, vu que ce genre de joujou coûte cher, après, le risque c'est de ne jamais franchir le pas.
Wil Exact, c'est notamment pour ça que je n'ai pas franchi le pas depuis tout ce temps
et puis une épreuve personnelle asez récente m'a fait me rendre compte que la vie est très courte et qu'il vaut mieux en profiter maintenant
d'ailleurs le Dalaï Lama a dit "Il y a deux jours dans l'année ou on ne peut rien faire, ils s'appellent hier et demain. Aujourd'hui est le bon moment pour vivre et aimer". Ca me parle beaucoup plus maintenant 
J'viens d'aller faire un petit tour sur le site Hammer, et ça fait rêver ! Comment ça se passe pour la mortaiseuse, c'est une option que tu as pris où tu prévois d'en avoir une à part ? Parce que la mienne est en bout d'arbre de raboteuse et c'est un peu fastidieux ! En tout cas ça a l'air bien pratique les tables de dégau qui s'ouvrent vers l'intérieur de la machine.
Wil je n'ai pas pris la mortaiseuse pour plusieurs raisons :
Oui et un gros avantages c'est qu'elles s'ouvrent à plat et pas en papillon du coup ca prend moi de place.
Je t'en dirai plus dans un mois quand j'aurai eu ma formation par l'installateur
.
La toupie de la machine ? Tu fais comment ?
Même question que Wil : autant faire une rainure, ok, mais une mortaise???
bon établi, trusquin, bédane ,maillet ,dégorgeoir ,huile de coude ,œil, précision ,et passion = belle mortaises !!! encore un peu de courage et ca sentira les copeaux dans ta tour d argent ,je sait pas mettre un smiley avec clin d œil mais le cœur y est !!
Wil , Niouniou autant pour moi je n'ai pas réfléchi avant d'écrire ma réponse. A la toupie c'est bien un rainure. Ensuite, avec le bon outil on doit pouvoir creuser sans faire glisser, mais il resterai bcp de matière à enlever et je doute que ce soit moins long qu'à la main. Je reste sur mon idée de faire ça à la main.
sylvainlefrancomtois pour faire un clin d'oeil il faut taper 'deux points'wink'deux points' soit : wink : sans les expaces
heu !!!!!!!!!!!!!! wink ????? tu sait je suis vieux lollllll
L'âge bonifie les boiseux comme le vin !!
wink ça veut juste dire 'clin d'oeil' en anglais
zeloko : il faudrait, à l'occasion, rajouter une icône pour les émoticônes (entre autres pour sylvainlefrancomtois ;o) )
Sinon les mortaises se font bien aussi à la défonceuse
Ah oui... Ca vrille bien!!
Tu les as bien choisi sur place (il faut souvent faire le tri en GSB, car beaucoup sont vrillés)...
Sinon, tu les as simplement vissés entre eux, les montants, traverses et barre biaises?
Oui, j'ai tout choisi sur place et pris les moins tordues. Au final je penses que c'est un mix entre les barres un peu vrillées qui ont continué à travailler et les coupes.
Et oui, j'ai mis 2 vis de 6 x 80 à chaque extrémité.
Tu comptes les habiller comment tes portes ?
Pareil que les murs, OSB, pare-pluie, litelage et bardage. Encore que je me pose la question du litelage.
L'idée c'est ce mettre la structure des portes à fleur de l'ossature et ensuite de poser litelage et bardage. En plus si la structure est au même niveau que l'ossature pour la fixation des charnières je me dis que ça sera plus pratique.
Ou sinon pose en diagonale directement sur l'ossature ca peut faire un effet sympa mais la fixation des charnoères risue d'être plus compliqué du coup si je veux avoir le bardage de la porte au meme niveau que celui des murs.
Ok, merci NinjaRouge !
zeloko a raison, l'habillage peut peut-être contribuer à "détordre" ça un peu...
Comme tu as un peu de place, tu peux les poser sur des cales à l'horizontal. Tu contraints un peu dans l'autre sens en jouant sur la hauteur des cales. Tu verrouilles le tout et fixes tes plaques d'OSB. Si c'est pas suffisemment clair, dis le moi, j'essayerai un tit' schéma.
Je ne pense pas que l'OSB arrivera à redresser les portes. À mon avis elles vont revenir à leur état initial lorsque tu les dévérouillera.
Je dirai qu'il n'y a pas de solution miracle : le plus radical serait de les refaire avec du bois droit. Je choisirais du bois d'ossature en section 45 x 95 que j'utiliserais sur chant (c'est à dire le 45 mm dans l'épaisseur de la porte)
La conception que tu as faite est parfaite, et vu que tu as mis des diagonales tu n'as pas besoin d'OSB pour contreventer. Quand j'en fais je mets directement le bardage, sans pare-pluie vu qu'il n'y a pas d'isolant à protéger. Et mine de rien le bardage aide sacrément à contreventer.
Et même comme cela ça reste déjà pas mal lourd !
Avant de tout refaire je vais quand même tenter le redressage ... En revanche, j'ai un souci de compréhension : comment contraindre ? Parce que l'histoire des cale je vois bien, mais le soucis c'est que si mes cales ne sont pas fixées au sol je ne vais pas pouvoir mettre des serre-joints pour contraindre ...
Si ça ne marche pas, j'essaierai de raboter / dégauchir les barres mais comme elles sont assez vertes, elles risquent de continuer à travailler ..... En dernier ressort j'utiliserai peut-être des montants d'ossature qu'il me reste (45x145) mais je voulais les garder pour me faire un dessus d'établi
. Sinon je vais voir la scierie a côté de chez moi et je prends des poteaux secs ....
Merci à tous pour votre aide.
Si vous avez d'autres idées : je prends !
Arf, pour un truc qui aurait plein de points d'encrage, ça me semble pas impossible d'espérer redresser. Là tu es dans le cas d'une porte qu'il sera difficile de contraindre une fois ouverte.
Perso, je referais avec un bois qui est plus sec et surtout raboté sur place en ayant attendu que ça s'adapte au lieu.
Parfois il faut savoir refaire pour ne pas éternellement se dire "J'aurais du" à chaque ouverture de la porte ;). Mais après tout dépends de ton niveau d'exigence.
Mon niveau d'exigence est élevé : je ne me suis pas cassé le tronc à faire tout le reste du mieux que je pouvais pour tout merder sur les portes !!
Pour la seconde porte je vais passer voir à la scierie pour evaluer le coûts. Parce que même si j'ai des exigences élevée, mon portefeuille n'est pas sans fond et comme on arrive à la fin du chantier, je commence à sentir un truc au bout des doigts quand je pioche dedans !!
Salut Ninja.
D'accord avec Zeloko. Il faut refaire avec du bois qui mérite de faire partie de ton oeuvre. De toute façon, le premiers morceaux ne sont pas à jeter. Tu trouveras un autre projet pour les utiliser. Il suffit de faire des morceaux plus petits, ça supprime 80 % du gauche + un petit coup de raboteuse et le tour est joué.
J'ai eu le même problème et vu que le bois n'est pas sec si tu tente quelque chose ca recommencera! La solution refaire! Quitte à refaire plus tard quand tu sentiras moins le fond de tes poches!
perso c'est la solution que j'ai retenue.
hello ninja ,si tu as vissé tes montants ,une combine est de re dévisser et d introduire des cales fines pour contrebalancer les devers et de revisser avec cales ,
je m explique ,un calage fin de exemple 2 mm par rapport à tes coupes d équerre peuvent mailler un ouvrant de taille comme tes portes de plusieurs cm ,si il y à trop ,c est de retailler tes coupes en faux équerre !!
Original comme ouverture mais j'ai le même doute que toi concernant le poids une fois l'osb et le bardage mis en place. A+
Comme sur les portes basculantes, va falloir prévoir des ressorts.
Hmm ... oui, ça va faire lourd une ouverture comme ça, non ? Question bête, mais pourquoi ce type d'ouverture ?
PS : Toujours pas arrivée la machine ;) ?
Original! en été cela servira de casquette pour protégé du soleil.
C'est sur que tu évite la déformation/contrebalancement...
Il va falloir trouver des gros vérins
mattlalielouise Pour les verins je ne sais pas ça risque de coûter cher !
je pensais plus à des ressorts de porte de garage pour "assister" à l'ouverture comme le suggère niconathy . Automatiser un truc comme ça, à part des poulies ça me semble un peu compliqué et cher.
zeloko Principalement pour le fun et comme le dit mattlalielouise ca fera une sorte de auvent sympa. Et non !! toujours pas arrivée !
je relance notre ami dès cette semaine 
Cette AM je met l'OSB sur l'une des portes et j'installe le verous baïonnette si tout se passe bien
Le truc c'est qu'une porte de garage, le pivot n'est pas juste en haut comme toi. Dans ta configuration tu as tout le poids de la porte à lever et avec un bras de levier énorme du coups.
Et d'un point de vu pratique, tu ne peux pas "entre ouvrir" pour passer ;)
Aie, on t'avait annoncer quel délais pour la livraison ?
Le seul avantage c'est qu'avec le pivot à l'autre bout je n'ai au maximum (quand c'est ouvert) que la moitié du poids ...... mais bon c'est juste pour discuter que je dis ça parce que c'est toujours beaucoup plus qu'avec une porte standard
Il ne m'avaient pas donner de date précise il m'avait annoncé un mois et demi / deux mois max.
Le truc, c'est que je vois pas trop comment tu peux mettre un contre poids efficace dans ce genre de configuration.
Et tu as déjà dépassé les 2 mois ?
Quelle type de charnière as tu utilisées? Surtout quelle grosseur. Une photo de la porte fermée au niveau des charnières a l'intérieur serait intéressant.
Une fois les machines reçues, il faut prendre rendez vous pour l'installation.
Délai 15 jours à mon époque pas si lointaine.
Les charnières sont en diamètre 10 et il y en a 3 par porte. Je prends une photo cet AM.
Pour l'instant pas de nouvelles du commercial. La commande a été faite le 17/03/2016 donc on est pas encore complètement à 2 mois
. J'ai envoyé un mail hier, j'aurai probablement un coup de fil ou un mail Lundi dans la journée.
Diamètre dix, tu fais dans le solide. Si je me souviens bien, il te reste un peu de hauteur au dessus des portes. Donc tu devrais pouvoir créer un contre poids. A condition que les charnières et leurs encrages soient solides.
niconathy oui c'est bien ça. Je n'avait pas pensé au contre-poids mais c'est une excellente idée
zeloko comme prévu réponse aujourd'hui, la machine est en cours de fabrication et devrait être finie dans le courant du mois de juin ça fera donc un total de 3 mois. Perso ça ne me gène pas, comme ça je pourrais finir le garage tranquille sans pression.
Même crainte que tout le monde: le poids à soulever avec une seule porte...
Patience pour la machine!!
Pour les ressorts, ce n'est pas des ressorts de traction, pour les portes de garage...? Là, tu aurais besoin de ressorts de compression... Les vérins seraient à mon avis plus simple, plus standards et ptet pas si chers que ça...
NinjaRouge ... Aie, j'ai commendé la mienne 15 jours après toi et il me l'avait annoncé pour début juin. je crois que je vais pouvoir m'assoir dessus ;(
Sinon, ce week-end j'écoutais du Boom Boom dans un ancien hanger avec des portes bien massives et voici comment elles avaient l'air de s'ouvrir :
zeloko : tu as l'air de passer des week-ends intéressants!! ;o)
Moi, quand je vais dans ce genre d'endroit, je ne regarde pas trop les portes. Mais bien vu!

NinjaRouge , voici le système que j'ai utilisé hier pour fixer une porte de grange fabriquée sur le même principe que la tienne. L'ossature est en 45x220 mm, chaque vantail mesure 3m x 1m60.
Le plus intéressant est le système de fixation. Il y a une crapaudine en bas avec une penture sur la porte. En haut, un axe massif rentre dans le linteau. Ce système est très robuste, la porte ne force pas sur des pentures traditionnelles. Certes, le prix de la quincaillerie est conséquent : plus de 100 euros par porte !
Avec les photos c'est mieux !
Et 2 autres !
Wil la crapaudine, elle est fixée au sol ? On ne voit pas de vis/chevilles...
will ça c'est une bonne idée !!
Je ne connaissais pas mai ça a l'air pas mal du tout.
du coup j'en ai trouvé plusieurs sur le net :
L'avantage avec la seconde c'est que je peux en mettre une en haut et une en bas.
Ensuite ce qui me chagrine un peu avec ce que je propose c'est le montage. Si je veux pas qu'on puisse dégonder la porte il faut que je fasse des trous borgnes et ça implique également que je fixe la crapudine du haut avec la porte déjà mise en place. Je sens bien que ça va être chiant.
Sinon comment s'appelle la partie femelle que tu as fixée sur ta porte ? un gond ? une charnières ? que je vois ce que je peux trouver.
Merci pour l'info en tout cas.
Sinon il y a ça :
Ca m'a l'air bien adapté à ma situation. Du coup je perce ma structure et le tour est joué.
Bah, du coups tu reviens sur des battants à axes verticaux ?
Pas encore fais de choix définitif. Trop de bonnes suggestions : je ne sais plus quoi choisir !!
Disons qu'en l'état actuel de ce que j'ai il me serait plus simple de revenir à des portes à battants classiques, j'ai juste à enlever les vis qui maintiennent les deux battants ensemble et à mettre les crapaudines.
Passer à la suggestion que tu as fais plus haut nécessiterait que je refasse complètement mes armatures. C'est pas tellement le temps passé parce que j'adore ça mais plutot de devoir racheter du bois.
Du coup les deux options que j'ai et sur lesquelles je peux encore partir sans tout refaire :
Avantages de la première solution, tout est déjà en place on continue simplement sur la lancée, avec un doute majeure sur la faisabilité de l'ouverture une fois les portes contreventées, isolées et bardées .... ça va peser le poids d'un âne mort!! Et la sécurisation reste encore un peu floue.
Avantages de la seconde solution, tout est déjà prêt on sépare les deux battants et on achète la ferronnerie. Plus d'inquiétude quand au poids. Plus facile à sécuriser avec des verrous et serrures standards. Mais pas de fonction "pergola", c'est dommage et puis j'aime moins
C'est pas à proprement parlé de vérins hydrauliques, c'est juste des vérins à gaz d'assistance, comme sur ton coffre de voiture, mais en plus gros...
Je ne sais pas combien ça vaut, mais il faudra faire des fixations solides (mécano-soudées par exemple) sur tes dormants et sur tes ouvrants dans cette configuration, par exemple
le choix du cœur ou de la raison !
le soucis avec contre poids ou système de vérin ou ressort ,c est que ça te bouffe de la place le long des parois !!
Oui mais c'est la classe!!
mattlalielouise C'est toujours les plus durs et les plus frustrants ce choix là !!
sylvainlefrancomtois tu as tout à fais raison, cela dit si on regarde la configuration de cette façade je ne vais pas pouvoir en faire grand chose car j'ai 60cm de chaque côté et un peu moins de 80 au milieu ..... c'est pas là que je vais mettre mes établis !!
. Ca peut éventuellement me pénaliser en profondeur mais si je pars sur une platine avec des moelons dessus pour exemple je perds max 15-20cm ... c'est raisonnable je pense.
oui avec platine pas de soucis les portes de grange chez nous étaient comme la demo de will
60 de chaque côté est la profondeur d'un établi. 80 au milieu tu peux mettre un rack pour la visserie et quelque outils à main type rabot. En même temps, l'été, ouvrir pour avoir moins chaud sans avoir le soleil qui tape sur le bois, pas mal comme idée. Tu peux utiliser la pente de ton toit pour mettre tes contre poids en l'air.
Pour la mise en hauteur je suis d'accord mais au final ça ne changera pas grand chose, la course de mon contre poids sera au moins égale à la hauteur de ma porte si je ne le trompe pas. Donc en position fermée, le contre poids est en haut et en position ouverte, le contre poids est en bas.
Comme mes portes font 2.10m et que j'ai 3.30m au plus haut je ne vais pas gagné grand chose. A ce compte là autant me mettre au plus près de la porte pour limiter la longueur de câble et le nombre de poulies de renvoi qui font augmenter le poids du contre poids à chaque fois.
Je voyais plus les choses comme sur le petit croquis. Promis je ferai mieux la prochaine fois.
Oui Niouniou , la crapaudine est fixé dans le sol, elle est scellée. Sa forme pyramidale l'empêche de ressortir.
NinjaRouge , la partie femelle s'appelle un pivot.
Celles que j'ai posée viennent de chez Legallais : pivot et crapaudine
niconathy Ok, je crois comprendre, tu verrais que les contre poids glissent dans le sens de la pente du toit c'est ça ?
SI c'est ça j'ai un doute, mes cours de physique sont bien loin mais si je fais ça je n'ai qu'une fraction du poids de mes contre-poids qui m'aidera puisque le poids est une force perpendiculaire au sol. A ce moment là, ce sont les frottements qui vont entrer en ligne de compte et ça ferait rajouter une charge permanente non négligeable et très localisé sur le poutres ....... j'ai un doute.
Wil Ah oui !!! C'est pas donné quand même !! en plus moi il m'en faut 4
Que penses-tu de celle que j'ai mis en lien plus haut ? tu penses que ça ne le ferai pas ?
Je ne saurais pas trop te dire si ça pourrait aller ou pas, il ne faut quand même pas que ce soit trop léger. Dans le kit, c'est pour un portail en alu, et c'est sacrément léger ce type de portail par rapport aux portes que tu vas avoir.
Mais c'est vrai que le coût chez Legallais n'est pas négligeable. Il y a peut-être moyen de trouver un pivot moins cher ailleurs.
Petite Question à vous tous : Ca y est, la Hammer sort de la ligne de fabrication le 20/06 et pour l'intervention du technicien pour la mise en route il me faut des outils pour la toupie, que dois-je choisir ? en fait, j'ai trouvé des coffrets par ci par là, mais je ne sais pas à quelle marque me fier.
Mon besoin dans un premier temps est assez limité (bouvetage, calibrage, et un porte fers pour les chanfrein par exemple), auriez-vous une marque ou un site de vente à me conseiller qui fait de la bonne qualité ?
Je viens de commander un outil à tenon Ici. Il est 100€ moins cher que chez la plus part des revendeurs. Je crois que c'est un leman. La question c'est ton budget. J'avais regarder des calibreurs, et ça peut aller du simple au quadruple. Si tu t'en sert 3 fois par an, comme moi, je ne vais pas mettre 400€ pour ça sans le roulement. Les marques grand public sont leman et le ravageur.
NinjaRouge ... piouf et bien c'est un sacré retard. La parole d'un vendeur n'est vraiment pas fiable ... On m'annonce le même retard ;(
Pour mes outils de toupies, je me suis principalement fournis là. Calibreur, Fraise à tenoner et fraise à rainer. J'en suis satisfait.
Mon porte outils, c'était en coffret ici. C'est du ISO. Je m'en sers plus trop.
Oui j'ai vu Leman, en plus il sont à 1Km de chez moi

Par contre en terme de qualité de machines ils ne sont carrément pas au top. Du coup je me pose la question pour les outils .... ca tourne quand même vite et je ne voudrais pas en perdre un bout en route !
niconathy PS : tu as eu mon SMS ?
Oui je t'ai laissé un message vocal ce soir.
Désolé pour la longue absence mais on est dans la maison depuis un bon mois et on a de nouveau accès à internet que depuis hier !!
Je vais vite rattraper mon retard et poster quelques nouvelles notamment de ma petite combinée pareil que celle du chef !
A+ Marco.
Oui ... la suite, la suite !!
Alors ses portes ?
Bonjour NinjaRouge
C'est tardivement que je découvre ton projet de longue haleine qui est passionnant.
Je suis exactement dans la même démarche mais en cours de réalisation > ICI
Alors heureux ?