Ce pas à pas présente un projet en cours de réalisation.
Salut tous le monde
Voila je suis en train de faire mon établi avec des récup de bois de palette pour le piétement et du méduim pour le panneau du dessus (mais pas encore définis).
- Ebauche

Discussions
20mm d'épaisseur sur 2m de longueur, ça fait léger pour le plateau.
Dans un premier temp sa sera sa, pour cause de financement. Je le changerai le plateau par la suite
VirgileM j'ai envie de me ranger avec Jean Galmot: 20mm c'est léger. Si c'est pour cause de financement, tu vas devoir doubler la structure en dessous du plateau avec du bois de récup. Un établi ca doit par fonction etre bien solide. En plus tu vas devoir etre bien précis si tu veux que ton plan de travail soit parfaitement plat.
olofe oui je pensais a mettre des traverse de renfort mais je ne sais pas combien encore
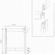
pas d'enfourchement haut des pieds ...pas de tenons avec echancrures a mi hauteur faire des vrais tenons et mortaises avec epaulements mettre des traverses vers le pas entre pieds pour assurer un contreventement ...j'ai utilisé souvent du bois de recup mais j'ai une vieille formation proffessionelle
Pour la traverse, c'est bien pour les petite longueur mais pas pour les grandes, vu que j'utilise du médium il me faut un maintien sur toute la longueur.
Pour tes tenon mortaise avec épaulement peux tu me faire un croquis, par ce que je vois plus ce que c'est.
Comme dit Sanglier, Ton shéma est trop compliqué: c'est plus compliqué à faire et toutes ces petites languettes, ca ne va pas tenir. Suis l'adage du "plus c'est simple, mieux ca marche". Je te joins le détail le plus simple à faire. Si tu colles bien tout cela, ca va tenir. J'ai un pas à pas avec une version plus complexe car démontable et sans vis apparentes, tu peux aller jeter un oeil. Jettes un oeil sur la page de Sanglier aussi, les assemblages c'est sa spécialité.
olofe merci pour l'info