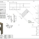
Hello, j'ai pas trop de boulot ces derniers temps, je me suis dis que de me challenger à refaire ces exercices d'examens (l'apprentissage de menuisier en suisse dure 4 ans. Ces exercices font partie de la troisième année et ne sont donc pas l'examen final pour devenir menuisier CFC en suisse.) devait être une bonne source d'occupation.
Ces examens sont à réaliser en 60' hors temps de préparation des pièces.
Je posterais ce que j'arrive à faire dans les conditions sous "création", avis aux amateurs: Go!
P.S: y'a 10 plans d'exercice à télécharger

Discussions
Merci ! C'est intéressant.
telechargé !
....Merci pour les exercices !! une belle occasion de progresser pour moi ...modeste amateur...
Salut comment a tu fais tes plans en 2D?merci
c'est des sujets d'examen qu'il a eu d'un apprenti ou des archives de son époque d'apprentissage, à mon humble avis
Salut l'ami, ils sont réalisés au moyen d'autocad.
bravo je vais esseyer de le faire et merci d'avoir difusé