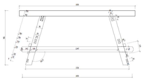
Établi que je souhaite réaliser prochainement, issue des plan de "Wood and shop", Les côtes ont été modifiées, la hauteur passe à 905mm au lieu des 854mm du plan de base, pour plus d'ergonomie. Le plateau a aussi été élargie à 650mm.
Je suis preneur pour toutes remarques, et conseils, je souhaite installer une presse de serrage rapide sur le coté gauche, créer quelque usinage pour un valet d'établi. et hésite à installer une presse à chant. cela en vaut-il la peine économiquement ?
Je ne sais pas encore comment créer le plateau, je dispose de plot de chêne qui pourrai faire du 30 ou 40mm d’épaisseur, soit je les colles en 3 couches croisées soit je les colles sur chant. Laquelle conseillez-vous ?
Un plateau de rangement sera peut être prévu dans un version future.
Merci pour vos retours !
Amicalement Antoine

Discussions
Bonjour, tu devrais plutôt éditer une question pour avoir les réponses, dans la section plan tu n'auras pas beaucoup de réponse.
Le Plan a été légèrement revu pour s’adapter un établi de seconde main.
Voilà la dernière version.
Il vient d'être fini, plus de photos viendront sur une "création".