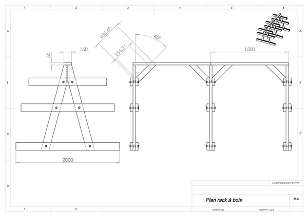
Effectivement cela ne fait pas trop large, mais mon problème est la "toiture" car je n'ai plus de place à l'intérieur, Je pensais faire une petite toiture deux pentes, en rajoutant un rack de ma longueur du pied qui serait légèrement plus large que le portique et fixer la toiture . Est-ce possible ? car je suis pas un super pro ! Merci ! *
Salut, Pour la couverture je ne suis pas spécialiste, mais le plus simple c'est une ba^che de bonne qualité par dessus avec des sandows pour tenir le tout. Si tu fait en tôles, je pense qu'une structure indépendante (4 piquets et tôle par dessus ) serait pratique à mon sens. Si tu t'appuis sur un mur, tu n'a besoin que de deux piquets et d'une poutre muralière.
C'est vrai des fois on va chercher midi à quatorze heures, j'ai des poteau de téléphone que j'ai récupéré, je vais faire un abri et je placera tout la dessous! Merci !
Discussions
Effectivement cela ne fait pas trop large, mais mon problème est la "toiture" car je n'ai plus de place à l'intérieur, Je pensais faire une petite toiture deux pentes, en rajoutant un rack de ma longueur du pied qui serait légèrement plus large que le portique et fixer la toiture . Est-ce possible ? car je suis pas un super pro ! Merci !
*
Salut,
Pour la couverture je ne suis pas spécialiste, mais le plus simple c'est une ba^che de bonne qualité par dessus avec des sandows pour tenir le tout. Si tu fait en tôles, je pense qu'une structure indépendante (4 piquets et tôle par dessus ) serait pratique à mon sens. Si tu t'appuis sur un mur, tu n'a besoin que de deux piquets et d'une poutre muralière.
C'est vrai des fois on va chercher midi à quatorze heures, j'ai des poteau de téléphone que j'ai récupéré, je vais faire un abri et je placera tout la dessous! Merci !