Bonjour à tous,
Après décision de m'équiper de machine stationnaire pour le bois, je suis en train de regarder l'organisation de mon atelier.
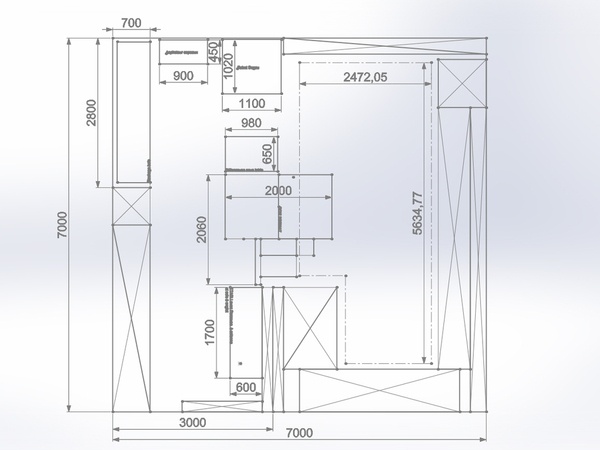
J'ai réussi à négocier avec ma femme (merci à elle) d'utiliser le garage en annexe de mon atelier pour la partie assemblage etc. et un léger débord de machine (table de scie à format par exemple), c'est la zone en trait de construction.
Il ne de devra, cependant, ne pas y avoir de machine dans cette zone pour éviter tout blocage si on veut rentrer la voiture et en plus de cela ce sera plus facile pour aussi de rentrer mon bois.
Je vous mets le plan en pièce jointe.
Sauriez-donc vous comment je peux optimiser au mieux mon atelier avec le placement des machines ?
Dimension des machines :
- Scie format 2000 x 2060
- Rabot dégau : 110 x 1020
- Aspi copeau : 900 x 450
- Etabli scie onglet et perceuse à colonne : 1700 x 600
- Défonceuse sous table : 980 x 650
- Stockage bois : 2800 x 700
Tout ce qui est marqué avec une croix est immuable et ne peut être déplace ou occupé.
Si vous des conseils ou autre, je suis preneur de tout.
P.S : j'ai un pdf avec une définition plus fine mais je n'arrive pas l'insérer.
Je vous remercie,
Hugo
1 réponse
Bonjour Hugo,
Pour commencer, double standing ovation (une pour l'orthographe fort appréciable et appréciée, une pour la clarté du projet)
Concernant votre aménagement, c'est un peu comme la femme universellement parfaite, c'est impossible à déterminer/trouver...
Le premier travail à faire que je vous suggère, c'est connaître le taux de sollicitation de chaque machine en en mesurant le temps d'usage (allez-vous + déligner que raboter par exemple)
En conséquence, plus un matériel sera utilisé, plus il devra être accessible (et réciproquement)
Progressivement, l'ordre d'installation devrait devenir évident...
