Bonjour à tous,
Ce post est directement dans la continuité de celui-ci, mais du fait que le projet ait un peu évolué suite aux retours (en particulier de Medalegno et niconathy que je remercie) et ma question se concentrant sur un point particulier, j'en ai créé un nouveau.
J'espère que cela est conforme au fonctionnement du forum, désolé si non.
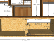
Je souhaite réaliser un caisson de 275 de long, composé de 2 caissons identiques en mélaminé chêne 19mm, au-dessus desquels je viendrai fixer une planche de 275cm de chêne lamellé-collé (par 810 de profondeur, 19mm d'épaisseur). Sur le côté droit, il y aura une joue en chêne lamellé-collé, et sur le côté gauche également.
Celle du côté gauche sera assemblée esthétiquement via une coupe d'onglet au plateau. Esthétiquement, car mécaniquement le plateau et les joues seront bien fixées au caisson en agglo.
J'ai cru comprendre, dites-moi si je me trompe, que je dois visser le lamellé-collé (plateau et joues) avec des trous oblong réalisés dans l'agglo perpenticulairement au sens du fil du plateau, afin d'éviter le tuilage. Y a t il d'autres précautions pour la fixation à prendre en compte ?
Le fait que le plateau soit bloqué des deux côtés par des joues est il gênant ?
Je sais bien que partir avec une coupe d'onglet est risqué (bien que mes premiers tests soient concluants avec la scie plongeante, mes tests ne sont pas aux dimensions finales), mais si cela bloque le bois et risque d'engendrer des dommages dans le futur, je resterai sur un assemblage en T bien plus simple.
PS :
- Pour les plaquages de chants (sujet évoqué dans l'autre post), je plaquerai des chants en mélaminés au fer à repasser...
- Les tiroirs seront réalisés avec les chutes d'agglo, glissières BLUM MOVENTO, et l'épaisseur des côtés sera donc repris à la défonceuse en partie inférieure pour s'adapter aux glissières (ép. 15mm max). Suivant cette façon de Benoit Pirard
