Bonjour,
je construis ma maison en ossature bois et je me pose quelques questions sur les cloisons.
Actuellement, il y a:
1- Plancher existant
- solivage douglas 80x250mm, portée 5,15m, entraxe 54cm
- dessus, cloué perpendiculairement aux solives, un lambris / clin douglas de 18mm d'épaisseur, 177mm de large, assemblé en rainure et languette.
2- Plafond existant
- entraits de charpente 45x145mm douglas, entraxe 50cm, parallèle aux solives du plancher
- tasseaux/chevrons de 40x60mm (4/6) en douglas, vissés perpendiculairement aux entraits et prenant en "sandwich" une membrane frein-vapeur au-dessus de laquelle 40cm de ouate de cellulose ont été soufflés.
Le projet:
- sur le plancher, pose à plat de panneaux de fibre de bois phonique (deux couches croisées de panneaux de 20mm d'épaisseur, soit 40mm au total). Panneaux de densité 250kg/m³ et résistance à la compression 150kPa.
- les cloisons seraient montées directement sur la fibre de bois (ou pas, selon vos réponses...)
- ossature bois, douglas ou équivalent, 4/6 avec le 6 dans le sens de l'épaisseur de cloison, constituée d'une lisse basse, d'une lisse haute et de montants avec un entraxe de 50 à 70cm (à définir).
- remplissage de l'ossature par un mélange de paille-terre banché allégé (330kg/m³ environ)
- enduits terre crue de chaque côté
- aux endroits des portes, dormant fixé à l'ossature en pose tunnel par des vis à double filetage et un "linteau" en 4/6 ajouté entre les montants concernés.
Pour info, j'ai calculé une charge linéique de 111 daN/m.l. et une pression exercée par la cloison d'environ 20kPa sur la surface de contact. Je détaille mes calculs sur demande, avec plaisir. (mais là, cela aurait beaucoup alourdi mon texte...)
Le point de vigilance qui a retenu mon attention:
- une fixation "en dur" de la cloison sur le plancher créerait un pont phonique, ce que je souhaite éviter.
Mes questions:
*- Comment faire lorsque la cloison est parallèle aux solives mais n'est pas à l'aplomb des solives ? Est-ce OK comme cela ou dois-je faire des renforts, par exemple avec des tasseaux ou chevrons perpendiculaires ? (et si oui, quelle section et quel entraxe).
Comment assurer la stabilité de la cloison sans la visser (pont phonique) ?
Les panneaux de fibre de bois pouvant avoir une (faible) variation dimensionnelle en épaisseur, quelles sont les conséquences sur la cloison et comment y remédier ?*
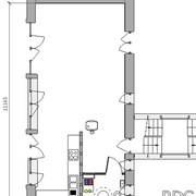
Ci-dessous une illustration du projet discuté (et discutable ...) ;-)
P.S.: comme vous l'avez constaté, j'hésite entre les termes (clin/lambris et tasseau/chevron).
J'ai l'impression que selon les corps de métier, les régions, les usages, les termes sont différents et je suis un peu perdu. Savez-vous s'il existe un lexique de référence ? (sur l'Air du Bois, par exemple ?)
EDIT: ci-dessous, quelques compléments par rapport au message initial
J'ajoute quelques photos de la maison lors de différentes étapes pour illustrer les façons dont le contreventement a été fait ainsi que quelques détails des principes constructifs retenus, à toutes fins utiles, pour satisfaire la curiosité des personnes ou pour apporter des éléments à cette discussion, voire les deux.
Je mets à nouveau les plans déjà postés ailleurs dans la discussion.
Maçonnerie
Les lisses basses reposent sur un mur de soubassement monté en blocs maçonnés de pierre ponce (Cogetherm) de 20cm d'épais. Malgré le caractère anti-capillaire de ces blocs (contrairement à du parpaing classique de ciment), une bande d'arase en feutre bitumineux sépare la maçonnerie de la lisse basse et cette dernière a été fixée au chaînage par des goujons métalliques munis de rondelles larges.
Le chaînage a été réalisé en béton armé, repris par des potelets coulés dans les blocs et reprenant les ferrailles des semelles filantes en béton armé des fondations.
Ossature et levage
L'ossature est en douglas de 145x45mm et a été réalisée en plusieurs modules pour permettre une chronologie de levage par phases.
La maison est encaissée d'environ 1m au nord par rapport au sud et l'arase du soubassement des pignons est à la même hauteur que celle du nord.
Je précise cela car les valeurs indiquées ci-dessous peuvent sembler incohérentes si l'on imagine partir de la même altitude.
Hauteur du mur gouttereau nord: 3,5m
Hauteur du mur gouttereau sud: 4,5m
Phase 1: modules du RdC
- au sud, sur une hauteur de 2,7m, soit jusqu'au plancher intermédiaire. 3 modules dans la largeur.
- au nord, toute la hauteur, de la lisse basse à la sablière, soit environ 3,5m. 3 modules dans la largeur.
- à l'est et à l'ouest, environ 1,8m, soit légèrement plus haut que le plancher intermédiaire. Modules d'un seul tenant (rectangles de 6x1,8m)
Phase 2, après avoir posé le solivage et quelques planches de contreplaqué temporaire: modules de l'étage + passage extérieur au nord (coursive).
- au sud: sur une hauteur d'environ 1,8m. 3 modules dans la largeur, à nouveau.
- à l'est et à l'ouest, module haut des pignons, soit une hauteur du module au faîtage de 4,3m environ.
- au nord, rien, puisque la sablière était déjà en place.
- à l'extérieur, au nord, modules est et ouest de la coursive, fixée aux modules nord de l'ossature, d'une part, et fixés au mur en maçonnerie de la maison d'en face (en rénovation).
Phase 3: fermettes. - après avoir été assemblées à l'étage, les fermettes ont été levées dans la foulée.
Contreventement de l'ouvrage
Le contreventement des pignons (est et ouest) est assuré par des voliges clouées en biais.
Le contreventement au sud est assuré à l'étage par des voliges clouées en biais.
Le contreventement des fermettes est assuré par des tasseaux en croix de Saint-André, fixés sur la face intérieure des arbalétriers des fermettes (section 300x38mm, entraxe 500mm).
Du feuillard tendu au-dessus des arbalétriers complète le contreventement des fermettes.
Les entraits des fermettes sont également contreventés par des tasseaux.
Le mur gouttereau nord est stabilisé dans le sens nord-sud par l'ossature de la coursive, elle même reprise sur la maçonnerie existante.
Le contreventement du plancher intermédiaire est assuré par des croix de Saint-André en feuillard métallique tendu (une extrémité pointée, l'autre tendue pendant qu'une personne chauffait au chalumeau le métal pour le dilater au maximum avant de pointer, puis une pointe à chaque intersection avec les solives).
Au RdC: colombage en châtaignier, section des colonnes 13x13cm hauteur environ 2,5m. Les solives qui reposent dessus sont fixées par des équerres et des pointes crantées.
Note 1: les photos n'ont pas été prises à la même date, d'où les différences d'état d'avancement.
Note 2: on voit beaucoup le contreventement provisoire sur les photos. Bien entendu, au niveau des ouvertures, celui-ci a été retiré lorsque la relève était prise par le contreventement définitif...
Les photos qui suivent, plus récentes, reflètent plus l'état actuel du chantier.
Au sud: bardage châtaignier, volets coulissants
A l'étage, mise en place d'un frein-vapeur et insufflation de ouate de cellulose dans les caissons des fermettes et soufflage dans les combles.
Et voici les plans du RdC et de l'étage.
Le nord est à droite sur mon plan.
On aperçoit le début de l'ossature de la coursive.
Sur le plan de l'étage, le tireté représente les emplacement des solives et la bande verte représente l'emplacement de la traverse haute de mon colombage.
Pour les personnes curieuses d'en savoir plus sur le colombage, je me dis que je partagerai volontiers cela ici, dans la rubrique "Créations": je suis parti de grumes de châtaignier sélectionnées en forêt et j'ai équarri à la hache doloire tous les éléments. Je me suis bien amusé !
Si ça vous intéresse, dites-moi, je ferai une fiche dessus :-)
3 réponses
bonjour
on ne construit pas sur le sable une cathédrale
votre plancher n est pas adapté pour le type de travaux , simplement pour un plafond
les madrier tout les 33 d axe en axe avec 2 rangées d 'entretoise et cela fera un plancher assez souple
pour moi le projet est a revoir
etienne desthuilliers maitre menuisier et aussi charpentier
Bonjour,
beau projet de construction.
Je ne me prononcerai pas sur le dimensionnement (futur), car ton interrogation implique beaucoup trop de responsabilités. Je ne peux que te conseiller de te rapprocher d'un charpentier, constructeur bois ou bureau d'étude de ta région qui pourra passer sur ton chantier. Il pourra apprécier les contraintes existantes et quantifier le poids total appliqué sur la bande de chargement des solives, et déterminer ainsi les sections appropriées.
À mon sens, il ne faut pas hésiter à payer quelqu'un pour ces précieux conseils. Ce sont des erreurs qui peuvent coûter bien plus cher...
Je te livre simplement quelques points techniques à étudier seul, ou accompagner par quelqu'un qualifier de ta région :
Ces cloisons participent-elles au contreventement de l'ossature (mur de refend)?
Si oui, un contreventement de la cloison avec un tassautage biais ou panneaux par exemple serait le bienvenu, de manière à reprendre mieux les efforts. Tu pourras toujours bancher et faire ta passe de finition en suivant.Au vu de la portée des solives, de l'entraxe choisie et du poids qu'elles auront à supporter, la section des solives me paraît non adaptée (pas suffisantes).
(à partir de 2.5m de portée, il faut placer une rangée d’entretoises à l'axe de la travée).
Fais vérifier tes calculs par quelqu'un du métier. S'il s'avère que le solivage est sous-dimensionné, tu auras peut être la possibilité d'envisager une cloison et/ou un plancher plus léger.
*- Comment faire lorsque la cloison est parallèle aux solives, mais n'est pas à l'aplomb des solives ? Est-ce OK comme cela ou dois-je faire des renforts, par exemple avec des tasseaux ou chevrons perpendiculaires ? (et si oui, quelle section et quel entraxe).
Tu es obligé de rajouter des montants (perpendiculaires aux solives) de 45/95mm ou plus, espacé tous les mètres entre tes 2 solives. (DTU)
Comment assurer la stabilité de la cloison sans la visser (pont phonique) ?
Pour assurer la stabilité, tu seras obligé de visser dans les renforts ajoutés entre solives. Le pont phonique reste très faible... tu peux également intercaler une fine bande de liège (bande résiliente) entre la lisse basse (ou travesse basse) et la plaque de sol .
Les panneaux de fibre de bois pouvant avoir une (faible) variation dimensionnelle en épaisseur, quelles sont les conséquences sur la cloison et comment y remédier ?*
ATTENTION: Un lambris, ou un panneau de bois phonique, ne sont pas considéré comme porteur ET contreventent (le voile du plancher participant à la stabilité de l'ouvrage).
Sans référer aux avis techniques du fabricant (les appeler).
Sinon, il faut prévoir un plancher OSB reposant sur solives et, après seulement, envisagé de s'occuper du phonique et du thermique, on peut également lui ajouter de "la masse" pour lui donner une meilleure inertie. Mais là encore, il faut impérativement dimensionner en conséquence le solivage.
Je ne connais pas ton budget, ni même ton niveau d'exigence en atténuation phonique. Sache simplement que ton projet (qui je l'espère est toujours à l'étude) n'offre pas une performance folle dans l'atténuation des impacts et bruits aériens (comprendre, entre le rdc et l'étage).
Il y a beaucoup de possibilités d'amélioration comme:
- isoler entre solives
- isoler entre lambourdes (possibilité de mettre du sable pour gagner en inertie).
- ajouter une bande résiliente sous et sur les lambourdes.
- réaliser un faux plafond isolé.
- intercaler un panneau dense de fibre de bois entre 2 panneaux OSB.
- etc.
Voilà quelques pistes à travailler, je n'ai pas spécialement le temps de rentrer davantage dans les détails. J'espère que tu trouveras des solutions à tes interrogations.
Bonne suite dans ton autoconstruction.
Slt, je vais répondre que sur les choses que je connais bien, pour le phonique si tu es sur un matériaux plein comme tes cloisons terre cru le pont phonique est presque nul donc pour moi tu peux visser tes bases de cloison en plus c'est une maison pas une boite de nuit. Pour moi sur ton plan ce qui me déplait c'est l'orientation de tes lambourdes qui sont dans le même sens que ton solivage normalement on croise on essaye de mettre toujours le parquet dans le sens de la lumière donc d'équerre aux ouvertures et généralement celle-ci se trouvent sur la longueur de la maison. Pour la cloison déportée par rapport aux solives si ton support est capable de le supporter d'après ton calcul c'est même mieux cela repartie la charge sur deux solives mais pourquoi mettre des cloisons aussi lourdes avec les matériaux que l'on a aujourd'hui!
Et pour utiliser beaucoup de terre cru en modelage c'est une matière qui a beaucoup de retrait et pas souple du tout donc vu que tu es sur un solivage qui sera toujours souple cela risque de fendre non. Si tu as des infos dans ce sens cela m'interresse. Bon courage faire sa maison est une belle aventure. 


, je n'ai pas trouvé les éléments que je cherchais, notamment les renforts perpendiculaires aux solives sous les cloisons ossature bois...
je n'en doute pas!
)

