Bonjour à tous,
je suis en train de concevoir un abri de jardin et j'aimerais bien, s'il vous plait, avoir vos avis éclairés. Je ne suis pas spécialiste du domaine et je suis certain que mon projet en l'état actuel est perfectible.
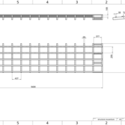
C'est un abri de jardin dont les dimensions sont dictées par son futur emplacement. Il va se situer à l'arrière de la maison et sa profondeur est due au fait qu'une porte de service et un mur mitoyen m'empêche de faire plus profond. Il a aussi vocation à couper un peu la vue chez le voisin.
La hauteur pourra éventuellement être modifiée, mais pour l'instant, j'ai l'impression que c'est pas mal comme ca; ce n'est pas trop haut, c'est bien.
La structure bois repose sur une structure maçonnée. Cette structure maçonnée est une semelle en béton (dans le sol) surmontées de parpaings de 10 cm d'épaisseur, montés sur environ 60 cm de hauteur. En parement je vais mettre des briquettes pour l'esthétique. Je tiens à préciser que je suis né dans le Pas-de-Calais et que les briquettes, c'est inconditionnellement beau !!
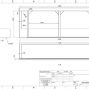
La structure bois est entièrement en douglas brut qui vient de la scierie. Le bardage est, lui aussi, en douglas brut, à couvre joint. Le bois est frais de sciage donc pas sec. Est-ce que je peux utiliser du bois frais ou j'ai plutôt intérêt à prendre du bois sec (18% ?).
La couverture sera en bac acier.
Pour la visserie je suppose que je suis obligé si je veux que ca dure de mettre de l'inox a4.
Le choix des sections a été fait en vérifiant rapidement dans des abaques la section nécessaire et en choisissant la section immédiatement supérieure disponible chez mon fournisseur.
La pente du toit avec des bacacier type coveo doit être d'au moins 3 degrés, j'ai mis 5 histoire d'avoir un peu de marge sans pour autant trop perdre d'espace dans le fond de l'abri.
J'ai fait un contreventement à l'arrière, mais pas sur les côtés. Je pourrais peut-être en faire un avec des tasseaux entre les montants et par la même occasion ajouter des traverses entre les montants de ma structure a l'arrière. Sur la structure à l'avant j'ai contreventé avec des gros coins pour ne pas perdre trop d'espace, mais je ne sais pas si je peux procéder de la sorte.
Je ne sais pas trop comment je vais fixer mes portes. J'avais pensé à des gonds sur platine et des pentures en té. Je n'ai pas mis de renfort au niveau des lisses hautes à cause de la pente. Vous pensez que ça va poser un problème ?
J'ai essayé de faire un plan relativement propre. J'ai mis en PJ un plan cotés et en lien la plan sur onshape plan onshape de l'abri.
Pour la structure c'est exactement ce que je pense faire. Pour le bardage j'ai fait au mieux mais je suppose qu'il pourra y avoir de petites différences qui se règleront sur le chantier.
Les poteaux seront fixés à la maçonnerie avec des embases en U de chez simpson.
Une autre chose que je sais pas c'est si je suis obligé de faire une entaille sur mes chevrons de couvertures pour qu'ils reposent bien sur ma structure bois et comment je fixe ces chevrons sur ma structure ?
Voila, beaucoup de questions mais encore une fois je ne suis pas un expert :) Je suis certain que ces petites questions en soulèveront bien d'autres.
En tout cas merci d'avance pour votre aide.
Ci-dessous une vue générale de l'abri...
Mis à jour4 réponses
Hello
N'y connaissant que trop peu, je ne vais pas pouvoir répondre à ton questionnement. Simplement, il faut savoir que tu risques quelque impôt supplémentaire si les responsables du cadastre ont vent de ta réalisation. Quelques uns de mes amis ont pu, à regret, le vérifier. Bonne réalisation néanmoins
Bonsoir,
Je confirme qu'il faut faire une déclaration au-delà de 5m² de projection au sol ( avec le déport de toiture ).
Attention aussi à la distance avec la bordure de propriété. Il y a des règles en général 0m ou 3m. Un déport de toit pour un abri à buche fait le taf mais augmente la projection au sol.
Perso je me suis fait recaler pour un abri bois de 7m² car mon terrain est mitoyen avec une foret classée. Un comble :(
Donc abri de 5m² en métal pour gagner l'épaisseur des murs à l'intérieur. Un crève-cœur.
Comme je me suis un peu agacé avec l'urbanisme de ma mairie, j'ai demandé combien je pouvais mettre d'abris de 5m² sur mon terrain. Ils n'ont pas apprécié l'humour les bougres.
Mon PLU avec la forêt classée m'interdit toute construction à moins de 15m de la clôture.
Ça m'a l'air pas mal tout ça!
Alors, pêle-mêle:
- Pour la visserie, mets ce qui est vendu avec pour le bac acier, en général c'est du laqué, c'est très bien. Pour le reste, de l'acier normal! Du moment que ce n'est pas exposé aux intempéries, l'inox n'a aucun intérêt et les vis sont plus cassantes. Les pointes sont plus solides que les vis, donc pointe là où c'est faisable.
- Pour les contreventements, l'arrière est ok, rajoutes-en sur les côtés et pour le devant, je ferais comme ça: supprime tes "gros coins" et contrevente correctement les deux côtés (diagonales, croix, panneau, comme tu veux) et si tu fixes le bas de tes poteaux dans la maçonnerie avec deux gros goujons, ça fera bien le taf! (pense à couler et ferrailler les extrémités des murs maçonnés!)
- Pour tes chevrons, à première vue il y en a beaucoup... Regarde les entraxes des bacs acier que tu veux poser mais ça me paraît surdimensionné sachant qu'en général on pose ça direct sur les pannes. Pas besoin d'entailles pour les fixer, vu ta faible pente, une grosse pointe de 140 chacun et ils se tiendront bien!
- Pour la fixation entre tes poteaux et ton linteau/faîtage, laisse un peu plus de "gras" au niveau des têtes de poteaux. Tu pourrais entailler aussi ton linteau de 25mm pour que tu n'aies qu'à retirer 50mm dans chaque poteau et ainsi avoir plus de matière pour les fixer entre eux.
Bon courage!
Quelques remarques d'un grand débutant :
- le bardage sur le plan n'aide pas à la lisibilité. Il me semble qu'il ne fait pas office de contreventement.
- pour le contreventement, je n'en voit pas sur la largeur et sur la façade les coins me paraisse insuffisant.
- pourquoi ouvrir autant la cabane avec 2 portes. Il y aura une perte de place énorme
- Je n'ai d'ailleurs pas compris comment les portes ouvre.


