Salut les boiseux,
Me voici avec l'éternelle question ultime de la mort qui tue, celle qui a déjà été posée mille et une fois, bref je comprendrais si je devais faire un blanc...
Cette question, la voici, la voilà : je vais enfin changer d'atelier, et gagner presque 7m2 !! Je passe de 9m2 à 16m2 !! J'ai donc peur de me perdre dans tout cet espace, et j'ai besoin de vos lumières pour pouvoir remplir cet abysse.
Pour être sérieux, j'envisage deux possibilités :
- la première, celle qui me fait rêver : un combiné SCM MiniMax 26 genius. L'idée est d'avoir tout dans la même machine et, installée sur un rail, de la déplacer de droite à gauche pour bénéficier tantôt de la scie/toupie, tantôt de la R/D.
L'idée est ici double : réunir quatre/cinq machines dans une seule et gagner de l'espace ; et avoir une belle machine qui fait correctement ce qu'on lui demande.
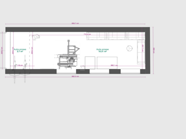
Le problème, c'est que le gain de place est relatif : bien sûr, l'empreinte au sol est limitée, mais compte tenu des dimensions de mon atelier (tout en longueur : environ 8m de long sur 2,30m de large) le passage va être étroit en largeur au niveau du chariot. Si je calcule bien grâce aux dimensions fournies par SCM (voir images ci-dessous, sachant que je me passerai de la mortaiseuse), j'aurai environ 50cm de passage entre le bout du chariot et le mur.
(Attention, le plan est trompeur : j'ai fait un rectangle, alors qu'en réalité il n'y a que le bout de la règle du chariot qui va jusqu'au bout. Donc concrètement, ça me demandera de me serrer contre le mur pour passer sur une distance de 5cm...).
- seconde possibilité, moins plaisante du point de vue belles machines : des machines séparées, la R/D d'un côté et une scie sous table de l'autre (par exemple, et pour les plans ci-dessous, j'ai pris la Evolution Rage 5-S). C'est quand même un gain de place significatif du point de vue de l'empreinte au sol (environ 70cm entre les deux machines), ça reste un peu plus flexible, mais j'ai quand même un sacré doute quant à la comparaison possible entre une scie sous table et un combiné avec chariot ras de lame. Pour ce qui est de séparer d'un côté une R/D et un combiné scie/toupie (par exemple SCM), ce n'est a priori pas viable car la SCM ST1G (scie-toupie) est carrément plus grosse que le combiné entier...
Qu'est-ce que vous en pensez vous ?
Mis à jour5 réponses
2.30m pour un atelier, c'est à peine plus qu'un couloir.
Côté dégau il faut au moins garder 0,80m. Faudra la plupart du temps enlever le cadre du chariot à équarrir pour pouvoir circuler.
Je verrais plutôt une dégau rabot contre un mur et une scie sur table mais pas une merdouille légère, soit une ancienne en fonte ou une anglaise si on peut toujours commander chez Axminster depuis le brexit, ex:
axminstertools...saw-230v-107715
Ou ce genre :
leboncoin.fr/o.../2253980157.htm
J'ai une combinée c26 genius et avant d'avoir un atelier je l'utilisais dans mon garage qui faisait à peu près la même taille que ton atelier.
J'avais pris l'option kit de déplacement et la plupart du temps je plaquais la raboteuse contre le mur. J'ai toujours laissé le cadre, j'enlevais simplement la règle. Quand j'avais besoin de raboter et dégauchir je faisais l'inverse et je mettais la partie scie contre le mur.
Cela demande d'être pas mal organisé dans tes projets mais ça fait sans problème car la combinée ne prends pas beaucoup de place au sol. Je ne suis pas certain que la toupie scie st 1g de la même gamme soit moins encombrante et la rabo dégau te prendra un autre morceau de mur. Maintenant 2 machines séparées ça doit être bien pratique quand même pour organiser le travail mais pas certain qu'on gagne beaucoup de place dans ton cas.
Pour cette taille d'atelier, la combi est plus adaptée.
Certe les machines séparées ont l'avantage de pouvoir être placées contre le mur, mais au sol elles prennent beaucoup plus de m². Pour palier au problème de tourner atour du combi, je l'ai monté sur ce kit dans le sens de la largeur.
holzprofi.fr/k...4140014449.html
Ainsi en fonction de l'utilisation de la rabo dégo ou scie toupie je le fais rouler d'un coté ou de l'autre. De plus le combi est tellement lourd, si ton sol est droit même pas besoin de bloquer le frein ça ne bouge pas d'un poil.
Et surtout c'est beaucoup plus pratique que les kit de déplacement standard (le truc avec la perche) car quand tu déplaces souvent la machine c'est pratique d'avoir juste à la pousser plutôt que de devoir manœuvrer avec une perche.



