L'Air du Bois est une plateforme Open Source de partage collaboratif ouverte à tous les amoureux du travail du bois. (En savoir plus)

Rejoindre l'Air du Bois Se connecter

Etabli stule Roubo

  • 1 701
  • 3
  • 4
  • 516

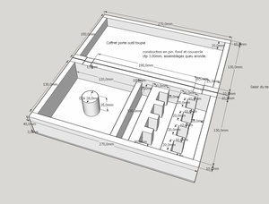
Coffret porte outil h 40 et 50 alésage 30 pour toupie

  • 780
  • 1
  • 144