Ce pas à pas présente un projet en cours de réalisation.
L'Ecorce du Sycomore a créé un petit collectif en vue de faire un comparatif d'aspirateurs à copeaux en testant principalement le débit de différentes machines à l'aide d'un anémomètre en suivant un protocole (celui-ci est d'une validité scientifique plus ou moins douteuse, mais c'est mieux que rien !).
Au moins cela peut nous donner une idée de la véracité des caractéristiques indiquées par les constructeurs...
Test en cours pour à priori:
- AF14 felder
- Af16 felder
- ABS2480 Holzmann
- ASP152 LEMAN (Monophasé)
- ...autres si affinités ! Si vous voulez faire partit du test, n’hésitez pas à vous manifester dans les discussions en dessous, on pourra vous ajouter à la file d'attente pour l'envoi de l’anémomètre.
Liste des articles
Holzmann ABS 2480
Déjà, ça ressemble à ceci.
J'ai fait les mesures par 8,2°C (c'est important pour pouvoir faire des calculs de haute volée en tenant compte de la densité de l'air !)
En utilisant le petit anémomètre envoyé par L'Ecorce du Sycomore. Petit mais mignon, dit-on, mais pas extrêmement pratique.
Première mesure au niveau du Y. Bizarrement j'avais plus de débit sur la périphérie qu'au centre de l'aspiration... alors que je me serais attendu à l'inverse. J'ai compris plus tard l'erreur d'expérimentation.
Image de gauche, je prends la vitesse de l'air au milieu du tuyau, le bas de l'appareil obstrue une partie du tuyau.
Image de droite, je pousse l'appareil jusqu'au bord, et le corps de l'appareil obstrue la moitié du tuyau. Par conséquent, la section de passage diminue et la vitesse augmente.
Par la suite j'ai donc pris la mesure à l'extrémité en tournant l'appareil pour obstruer le tuyau au minimum, sans surprise, le débit était bien inférieur à la veine centrale.
Les différents points de mesure et les différentes configurations
Configurations :
- Avec ou sans un tuyau cannelé à l'aspiration (tuyau de 2m ou 4m)
- En mettant le tuyau cannelé droit ou en lui faisant faire une ou deux boucles sur lui-même
- Avec ou sans un tube PVC DN40 au bout de l'anémomètre pour le faire entrer dans le tuyau de l'aspirateur (désolé je n'ai pas de photo)
Et voici les résultats :
Analyse
Les mesures à l'aspiration des tuyaux sont moins fiables que les mesures au refoulement de l'aspirateur. On le voit sur l'appareil (c'est plus stable) et c'est logique : la veine d'air à l'aspiration est très "évasée", alors qu'au refoulement elle monte droit avant de diverger, et on prend la mesure à l'embouchure.
Je suppose d'ailleurs (ce n'est qu'une supposition, je ne sais pas comment la valider) que l'effet d'obstruction indiqué plus haut est moins prégnant au refoulement.
Par conséquent, j'ai fait des mesures au refoulement pour toutes les configurations possibles, ce qui permet de confirmer les mesures à l'aspiration.
Tuyaux cannelés
Sans surprise, les tuyaux cannelés génèrent une perte de charge (et de débit) importante, je ne m'attendais toutefois pas à un tel facteur (du simple au double).
Veine d'air au refoulement
La veine d'air au refoulement est plus "fiable" mais très hétérogène. La force centrifuge projette l'air sur l’extérieur de la volute. Bizarrement la vitesse au centre est supérieure à la vitesse en périphérie extérieure... je n'y crois pas trop, je pense plus à un défaut de mesure (on verra bien sur les autres aspirateurs). Mais du coup, la mesure au centre constitue probablement une bonne moyenne...
ASP152 Leman
Voila déjà la bête : (vu constructeur)
et voila la mise en place dans mon cas
Les Mesures
je n’ai pas pu faire les mesures C/B1/B2 car mon réseau est en PVC et que c'est une galère à démonter (voir photos ci dessus) j'ai cependant pu faire les mesures en sortie de turbine et en entrée de réseau en 120/100/80 avec et sans le filtre / sac. (et ca change pas mal !!!)
Par contre je pensais avoir beaucoup de pertes sur le réseau et finalement pas tant que ça ! j'avais bien fait attention a ne pas faire de coude à 90 mais plutôt faire des 45 + 45
Précision : il n'y avais q'un circuit d'ouvert pour faire les mesures bien entendu.
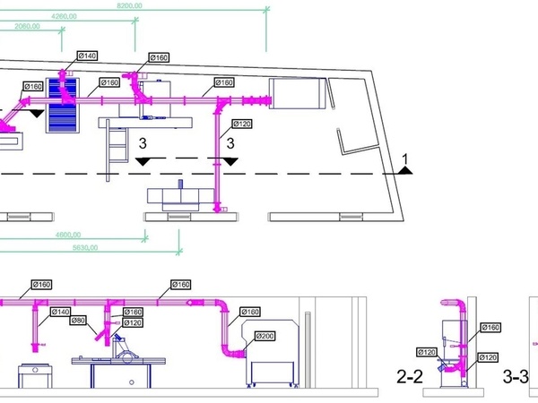
Felder RL 200
CARACTERISTIQUES GENERALES DU GROUPE D'ASPIRATION
Ci-après quelques données techniques pour situer l'équipement :
- Dimensions : Longueur 1775mm ; Largeur 905mm ; Hauteur 2065mm
- Embout d'aspiration : 200mm
- Les copeaux et poussières sont collectés dans deux sacs de 200 litres
- L'air rejeté traverse deux filtres de classe M représentant une surface de 20m²
- Selon la documentation pour une vitesse de 20m/s à l'embout d'aspiration le volume nominal d'environ 2300m3/h engendre une dépression de l'ordre de 2380Pa.
La photo ci-dessous présente le matériel et celle de droite la courbe d'efficacité Dépression = f(vitesse aspiration).
CONTEXTE DE MESURAGE
Le groupe d’aspiration capte les émissions de poussières et de copeaux en provenance de 3 machines stationnaires (raboteuse-dégauchisseuse – scie-toupie - SAR) et une quatrième conduite est reliée à une table de ponçage. Travaillant seul, le réseau d’aspiration a été dimensionné pour un fonctionnement avec une seule machine stationnaire à la fois.
Le réseau d’aspiration est construit avec des circuits en acier galvanisé hormis les raccordements aux machines en gaine souple spiralée en polyuréthane (PU). Le schéma joint mentionne les différentes sections depuis les machines jusqu’à l’entrée du groupe en diamètre 200mm.
Le parti pris de mesurage :
- Évaluer les débits d’aspiration et de refoulement du groupe isolé ;
- Pratiquer les mesures au niveau des machines et limiter les démontages significatifs pour isoler tout ou partie des différentes branches du réseau ;
- Évaluer les débits d’aspiration sur certains points singuliers.
RÉSULTATS
Groupe seul
L’évacuation de l’air aspiré s’opère en partie haute par une grille comportant 32 ouvertures carrées de 76mm de côté. Des mesures au centre de chaque surface ont été effectués à plat. Le réseau n’a pas été déconnecté et toutes les bouches d’entrée machines étaient ouvertes (tableau de gauche). Les quelques données entre crochets correspondent aux mesures avec déconnexion (l'objectif étant de constater l'impact des conduites en circuit ouvert) :
5,2/ [6,3] - 7,8 - 8,5 - 8,0 / [8,3]...........Surface : 0,185 m²
5,6 - 6,2 - 7,6 - 9,5
4,8 - 6,2 - 6,5 - 9,2................................Vitesse moyenne observée avec réseau ouvert : 6,1 m/s
1,0/[1,2] - 5,8 - 7,0 - 9,0/[8,1]............Flux sortant : 4030 m3/h
2,1 - 4,7 - 5,1 - 7,2
4,5 - 4,9 - 4,5 - 6,1................................Vitesse moyenne observée sans le réseau : [6,0] m/s
4,9 - 6,1 - 5,6 - 6,0................................Flux sortant : 4000 m3/h
4,1/[4,4] - 6,1 - 7,0 - 7,0/[7,9]
Une mesure à l’aspiration a été faite en déconnectant le circuit à la bouche d'entrée. A ce niveau, le diamètre intérieur de la conduite vaut 195mm. Les mesures au bord sont comprises entre 40 et 43 m/s en dépassement de la gamme de mesure mentionnée pour l'anémomètre. Au centre, la vitesse est de l’ordre de 28m/s. La dépression est telle que l’anémomètre a failli disparaître dans le groupe !! Avec la mesure au centre le débit calculé est d'environ 3000 m3/h.
Mesures sur la scie-toupie
Une mesure dans le bol de la toupie à mi-hauteur du raccordement avec la gaine spiralée indique une vitesse d'environ 37m/s (guides ouverts au maximum et capot ouvert). En réduisant l'ouverture des guides à 33mm (capot fermé) la mesure dans le plan de ces guides est de 14,8m/s.
Une autre série de mesures a été menée au niveau de la coiffe de la scie circulaire. La section rectangulaire utile de cette coiffe est d'environ (545 x 37) mm. La coiffe a été positionnée à une hauteur de 35mm puis à 130mm (élévation maxi) Dans les deux cas l’aspiration basse était opérationnelle. Afin d’évaluer l’influence de cette aspiration basse les mesures à 130mm ont été renouvelées après obturation de la conduite basse. Les différents résultats sont obtenus en déplaçant l'anémomètre sous la coiffe (de g. à d.)
Vitesses (m/s) avec aspiration basse en fonctionnement :
H= 35 mm : 2,4 - 3,2 - 3,2 - 3,5 - 3,8 - 3,6 - 2,9
H=130 mm : 6,3 - 7,1 - 7,7 - 7,7 - 7,3 - 6,4
Vitesses (m/s) avec aspiration basse obturée :
H=130 mm : 4,3 - 8,1 - 8,3 - 8,5 - 8,1 - 7,1
La scie à ruban
Après déconnexion de la gaine spiralée la vitesse à l’entrée de la conduite en Y de diamètre 120mm a été mesurée entre 20 et 25 m/s. Les diamètres des conduites du Y sont toutes de 120 mm. Un mesurage avant le Y eut été plus pertinent mais c’est trop tard !
A l’autre extrémité du tuyau annelé d’environ 1,8m la vitesse mesurée à 5cm est d’environ 21m/s au centre et de 36m/s au bord touchant.
La dégauchisseuse
Une mesure en entrée du tuyau acier après déconnexion de la gaine spiralée indique une vitesse au centre d’environ 21m/s.
Après raccordement de la gaine PU un écartement des bordures des tables de 44 mm a été imposé correspondant à une hauteur de passe de 1mm. L’anémomètre posé sur une zone favorable (cf. photo) indique une vitesse de 3,5m/s. La largeur des tables de la dégauchisseuse des tables est de 410mm.
BILAN
Avant toute considération et comme il a été mentionné dans les commentaires les mesurages effectués sont entachés d’une incertitude importante. Parmi les sources d’incertitude je citerai par exemple la précision intrinsèque de l’équipement, la méthodologie de mise en œuvre des mesures (positionnement dans des conditions non normalisées, utilisation ou pas dans la gamme de mesure préconisée, etc…).
Pour ce qui concerne les résultats du RL 200 les performances attendues sont au rendez-vous puisque les mesures en bout de circuit avant tuyau PU de raccordement aux machines sont de l’ordre des 20m/s vitesse de transport préconisée (INRS, CARSAT). On peut même affirmer sans se tromper que ce groupe est surdimensionné relativement aux besoins….
Qualitativement la dépression engendrée est très significative et mériterait d’être mesurée mais c’est un autre sujet.
Restant à votre disposition pour tout complément utile
Felder AF14
Caractéristiques de l'aspirateur
Pour commencer, une petite photo de la machine dans son environnement:
Ci-dessous voici les caractéristiques techniques telles que données par le fabricant:
- Diamètre du raccordement à l'aspiration [mm]: 140
- Dimensions [mm]: 965 x 575 x 2030
- Dépression max. [Pa]: 2140
- Puissance (CV): 2.45
- Puissance [kW]: 1.8
- Tension [V]: 230VAC
- Volume d'aspiration[m³/h]: 2350
- Volume du sac à copeaux [L]: 200
Ceci est donné pour un filtre classique de type L, mais personnellement j'ai changé le filtre pour un filtre de classe M comme on peut le voir sur la photo.
Ceci peut expliquer les différences de performances que j'observe par rapport aux données constructeur (à valider avec Felder, je ne leur ai pas posé la question).
Bref, assez de blabla, place aux mesures.
J'ai effectué trois mesures, à trois points différents:
- une première mesure en sortie de l'aspirateur, avec tous les tuyaux déconnectés
- une seconde mesure après la bifurcation de l'aspirateur d'un diamètre de 120mm qui sert généralement tout le temps
- pour finir une dernière mesure au bout du tuyau flexible de 120mm que j'utilise pour raccorder l'aspirateur à la machine. Il fait 4 mètres de long, et est équipé d'un coude à l'arrivée.
Ci-dessous quelques images des éléments de raccordement à l'aspirateur.
Les mesures (enfin!)
Ci-dessous, les mesures.
Plusieurs remarques à tirer de ces mesures:
Tout d'abord, l'aspirateur est performant. Il permet d'aspirer les copeaux de la machine sans difficultés. En même temps, j'avais pris celui-ci car j'avais calculé que je pouvais y mettre un petit réseau fixe d'aspiration dessus (ce qui n'est pas fait pour l'instant).
Par contre, la performance mesurée en sortie directe de l'aspirateur, j'ai quand même quasiment 25% de moins en débit ce qui n'est pas négligeable. Ceci peut s'expliquer par plusieurs raisons:
- Changement du filtre original par un filtre classe M (qui a une surface filtrante bien plus élevée et joue sur les performances)
- Performance de l'outil de mesure qui est moins précis au dessus de 30m/s (d'après la notice constructeur), et ma mesure est autours de 44m/s
Ce pas à pas présente un projet en cours de réalisation.

Discussions
C'est dingue, on est pas vraiment sur les 2480m³ annoncé par le fabriquant!
Ni sur les 300 litres du sac, au mieux (mathématiquement) il fait 240 litres !
À noter qu'avec un tuyau cannelé de 4m tu divises le débit par deux...
Questions de béotien :
Tu parles de force centrifuge au refoulement, parce que le flux d'air tourne sur lui-même, comme une tornade? (C'est pas évident vu la forme de ta soufflante)
Ou bien la dispersion en corolle est due à ce que l'air "s'accroche" au bords du tuyau, un genre d'effet Coanda? (ça en jette, mais soyons clair : je n'y connais rien! :-)
Ce qui pourrait expliquer la vitesse plus élevée au centre, c'est justement que le flux d'air s'écarte, et donc il y a une dépression au centre qui accélère l'air qui y passe, non?
Du coup, ça nous renvoie à la méthode de mesure : je ne sais pas comment faire avec ce capteur, mais ce serait surement plus fiable de faire la mesure dans un tronçon de tube, et pas à la sortie.
En fait on parle de force centrifuge mais on ferait mieux de parler de force d'inertie : quand tu tournes un peu fort à droite en voiture, tu n'es pas projeté à gauche, en fait tu veux toujours aller tout droit (par rapport à la direction d'origine). D'ailleurs on voit très bien le phénomène avec les étincelles d'une disqueuse : elles partent tout droit depuis la direction où elles sont produites.
Donc mon flux d'air, il est mis en mouvement dans la turbine puis il est éjecté vers la gauche. Et là, il y a un virage qui le force à faire un quart de tour pour remonter vers le haut (mais lui aurait bien voulu aller tout droit !). Donc qu'est-ce qu'il fait ? Il va le plus loin possible et remonte, contraint et forcé, en prenant appui sur la paroi extérieure.
Évidemment parmi les molécules d'air, il y a quelques récalcitrantes qui préfèrent prendre le virage à la corde, mais moins que les bonnes moutonnes !
A noter aussi que les prises de mesure au centre en refoulement et en aspi sont dans les mêmes ordres de grandeur. Donc pour Oak et moi, pas la peine de démonter toute l'aspi pour prendre le refoulement (je ne suis même pas sûr que ce soit possible sur la mienne!)
Ara J'avoue que je suis tellement surpris par la différence annonce/réel de ton aspi que je me demande si l’anémomètre ne dit pas n'importe quoi...
Si quelqu'un qui lit ce message et qui possède un anémomètre de qualité (et aussi qu'il est d'accord pour faire parti de la chaine) se manifeste, on pourrait lui faire suivre l'anémometre de test pour qu'il compare quelques mesures entre les deux machines pour étalonner le petio..
L'Ecorce du Sycomore bah, j'ai un anémomètre de qualité, j'ai bien pensé à le faire tourner avec le tien, et je n'en ai pas parlé pour ne pas complexifier la chose mais j'ai bien sûr fait les mêmes mesures avec les deux appareils.
MAIS !
L'anémomètre dont je suis le dépositaire était destiné à la benne parce qu'une pale était tordue et que l'organisme de contrôle l'a déclaré non conforme. De plus, l'hélice frottait (depuis 2 ans que je l'ai au fond de mon atelier...). Donc j'ai détordu la pale "à vue" et j'ai WD40té le moyeu, et il tourne tant bien que mal, mais il donne des valeurs différentes tu tien et pas toujours cohérentes... Du coup si on fait des mesures avec, ça risque de poser plus de questions que ça n'en répondra à d'autres...
Dommage.
Du coup je résume en disant qu'on attend la réponse de quelqu'un qui en a un?
J'ai réfléchis à nouveau sur la véracité des info donné par l’anémomètre. En fait lors de mes test, j'ai aussi testé l'aspi que j'utilise pour ma RD, toupie et tenonneuse et les mesures que le bignou m'a indiqué m'ont paru plutôt réaliste sur le coup (35m/s sur du 150 avec un seul circuit ouvert sur toutes mes lignes)
Donc finalement, c'est peut être vraiment holzmann qui nous prend pour des jambons..
Ara Tu l'as acheté neuve ton aspi?
Oui je l'ai acheté neuf (et il me parait très bien fonctionner). De toute façon c'est bien simple : le moteur tourne très bien et la turbine est en métal, prop'net sans déformation, la même que sur moult aspirateurs et pas de vibrations anormales. À mon avis c'est la même chose sur tous les aspi ressemblants.
À prendre avec des pincettes : les résultats avec l'autre anémomètre. J'enverrai le chinois à Plab demain, il n'est pas trop tard pour changer d'avis. Si tu veux que j'envoie le gros, je change les piles, je fais un colis et je mets les deux dans un carton, ça coûtera 6,50 par Mondial (pour faire avancer la Science, je suis prêt à tout !).
Donc comme tu veux, dis-moi.
Yop,
Je t'avoue que j'ai pas trop d'avis... La différence de mesure est visible mais pas partout. Du coup est ce que c'est dû au positionnement de l’appareil ou à sa précision?..
Comme tu le sent.. Ça n'a pas l'air de changer grand chose au niveau du prix de l'envoi et je te le retournerai quand il sera revenu chez moi...
Hello les gars, Ara j'ai le même que toi sous une autre marque. (c'est peut-être pas le même finalement) il est annoncé aussi a 2500m3/h. Au point C le miens de mémoire est en 150mm de diamètre alors qu'en B il est en 120mm.
Je me suis dis il y a peut être une anomalie ici et a valeur égale de vitesse le debit passerait déjà a 1500m3/h. C'est loin des 2500 annoncé mais c'est mieux déjà.
Merci pour ces indications. Si tu veux le fichier Excel pour le compléter : transfernow.ne...medium=ENdKOker
Ara Du coup tu valides tes entrées/sortie en 120 hors dérivations? (quervet indique 150 sur la sienne)
Quervet je t'ai envoyé une invitation à rejoindre le collectif si tu veux ajouter tes tests.
Et aussi comme te le suggere Ara , si tu remplis la fiche excel, on pourra lire plus facilement tes points de mesure pour la comparaison. (t upeux remplir simplement ceux que tu as pris et laisser vacant ceux que tu n'as pas pris...)
Il faut d’ailleurs que je refasse ma partie pour que ce soit un peu plus lisible (même si mon aspi n'existe plus depuis longtemps!)
Et aussi en passant, c'est Ara qui a rédigé l'article.
L'Ecorce du Sycomore merci pour l'invitation du collectif, très bonne initiative.
Pour le moment je fait une pose car entre la théorie, les données des constructeur et la réalité sur le terrain ne sont pas claire.
Je vous tient au courant sous peu.
Bien l'article de Ara.:
Pour moi ce genre d'appareil n'est pas vraiment adapté a la mesure de debit d'air dans une gaine c'est plus pour mesurer la vitesse du vent, le corps obstrue beaucoup trop la veine d'air, et affecte les resultats.
De plus en mesures de debit en ventilation on mesure en dans la gaine en principe (on fait un petit trou et on insère une cane en fait). Il faut aussi se placer loin des coudes (3x le diamètre hydraulique).
La à l'embouchure la mesure est vraiment très aléatoire, vu que l'anemomètre avec son gros gabarit perturbe énormément la veine d'air qui n'est plus guidée.
Quand on fait ce genre de mesure en sortie de bouche c'est presque à titre indicatif. La honnêtement je ne serais même pas surpris que cette mesure ait +/-30% d'incertitude. Sans compter l'anemomètre utilisé qui ne doit pas être une bete de précision. Bref ca donne un ordre de grandeur quoi, si ça indique 1000m3/h c'est peut peut être 1400 ou peut etre 600
c'est ce que j'en ait déduit, alors merci de votre précision.
Sur les tuyaux PVC j'avais effectué les mesures à 5X le diamètre hydraulique, mais l'insertion de l'anémomètre dans le tube ma toujours créer un doute, car sa surface modifiait trop l'écoulement de l'air. D'ou mauvaise mesure.
En sortie, à l'embouchure du conduit c'est de même et de plus à quelques centimètres près.
Pour une meilleur mesure il faudrait un anémomètre type sonde extra fine pour ne pas perturbé le flux d'air ??????
Par contre ce qui me pose question, c'est la dépression annoncé par le fabriquant par exemple 1800 Pa et mes mesures à 5X le diamètre hydraulique et une sonde la pus fine possible me donne en général 900Pa.
En interrogeant mon vendeur sur ce problème de dépression, il a réagit en supprimant l'info sur la dépression qu'il avait annoncé à 1800 Pa.....
Merci pour l'info
Qui a raison ?? à vous tous recherchons
Quervet pour moi, je pense que la dépression donné par le revendeur est la dépression que tu prends en tout de suite en entrée d'aspiration (près des palles) avec la quasi totalité de l'entrée bouché.
En tous cas, j'ai une aspiration de 3cv à l'atelier et j'obtiens 2200Pa en suivant cette méthode, mesure que je n'obtient pas du tout en prenant dans le tuyau à 1 mètre avec une sonde fine.
benjams Je suis assez d'accord sur le fait de prendre juste a l'entré est trop turbulent.
Les chiffres de mon test on été pris a 1m de tuyau et les mesures étaient assez homogène, quelque soit l'endroit où je plaçait le bignou. J'ai aussi fait un test en prenant la vitesse de l'air de plus loin en accrochant un tube pvc à l’anémomètre et la vitesse mesuré est sensiblement égale à 5% preès (je te mets un croquis du montage à la fin de cette note) donc au final, je dirais que la marge d’erreur est moins importante que 30% pour mes mesures (hors imprécision de l’appareil)
Quoi qu'il en soit, même en gardant en tête que les résultats ne sont que des ordres de grandeur, je trouve que les fabricants ne sont pas très réglo.
edit: L'anémometre n'a vraiment pas un gros gabarit, il a fait le même effet à ara qu'a moi a l'ouverture: "Ah ouais, c'est tout!?!"
Quervet la sonde ne prend que la pression statique je suppose ? Effectivement dance cas difficile de se tromper. Je me demande si ils vendent pas la pression totale (statique + dynamique) en sortie de ventilateur, autour de 1000m3/h ça doit pas etre loin des 600Pa dynamique. C'est un peu pareil que mesurer près des pales au final.
L'Ecorce du Sycomore oui tu as sûrement raison, je pense qu'effectivement il y a un loup. Entre les debits et les dépressions... D'un autre côté, a vide un moto-ventilateur qui fait 1,5kw devrait etre capable de déplacer 2400 m3/h
Par contre dès que tu ajoutes de la gaine,forcément le debit chute puisque un ventilateur fournit en general une différence de pression plus ou moins indépendante du debit. Donc quand tes pertes de charges augmentes le debit se casse la gueule
benjams C'est surement vrai si les machines sont bien optimisé mais si tu regardes globalement les stat des aspi 1500w (en dehors du fameux leman et holzmann), Elles sont plutot donné pour 1500m³/h.
L'af12 de felder est même donné pour 1300m³/h avec un moteur de 2200w. (quand l'af14 est donné pour 2300m³/h avec le même moteur mais 2x plus cher...)
J'aurais tendance à croire que les pertes de charge créer par 1m de tuyau galva. sont relativement négligeable quand même. Sinon il faut un moteur de 4kw pour eviter d'en prendre plein le nez!
Donc c'est sûr qu'on est pas juste juste mais l'ordre de grandeur n'est surement pas aussi déconnant que ça m'est avis... On verra bien avec la suite.
Ou alors c'est 1500w électrique et le moteur a un rendement pourri. Je suis plus habitué a du matos industriel, mais avec un moteur 1,5kw, on depasse largement les 2400m³/h.
Là avec Q=1000m3/h et une pression totale dP=900Pa+pression dynamique = 1300Pa (a la louche), il y a P=Q/3600*dP=390W qui sont transmis a l'air, soit un rendement faramineux de 25%.
Un mètre de galva droit effectivement ça change pas le monde, par contre 3m de galva avec des coudes et 3m de flex annelé, ça s'en ressent. Il faut voir ça comme une somme de chose. A vide tu as juste la perte de charge de l'entrée, et plus tu rajoute du tube plus tu ajoute de perte de charge. Au debut ton tuyaux est négligeable par rapport aux pertes en entrée mais après la tendance s'inverse
Mouif... en fait on est un peu en aveugles parce qu'on n'est pas très confiants dans nos appareils. Il faudrait trouver un moyen de les calibrer. Quelqu'un aurait une idée ?
Ceci dit l'objectif est de comparer des aspirateurs, pas de valider les infos des constructeurs, donc à partir du moment où l'on fait les mesures selon le même protocole, ça répond à la question de base.
Je suis d'accord sur le calibrage comme sur le comparatif de base.
M'est avis que l'AF16 de oak est plus sérieuse de toute façon donc je pense que ces résultat risque de clore le débat de la qualité des prises de mesures..
On continue comme ça et on réfléchit une fois toutes les mesures prises?
C'est sur que le AF16 de OAK est très bien, mais il est en 400 V ce qui n'est pas toujours le cas chez certains.(dont moi) ...
L'Ecorce du Sycomore OK allez c'est prêt à partir, mais vu l'heure de la levée je pense que ce sera pour lundi.
Ara Cool.
C'est pas bien pressé tout ça.
Bonjour à tous,
Potentiellement intéressé pour participer à ce comparatif en pratiquant des mesurages sur un groupe d'aspiration Felder RL200. Je ne possède pas d'anémomètre à ce jour.
Par contre si l'on souhaite un minimum de rigueur pour les comparaisons il serait pertinent de définir plusieurs protocoles applicables permettant de s'ajuster aux caractéristiques des équipements de chacun (par exemple entre sortie aspirateur, ajout d'un circuit simple avec un ou plusieurs coudes,etc..). Prêt à réfléchir sur le sujet avec vous tout en vous précisant que je ne suis pas un expert d'aéraulique!
Bonjours
Si vous voulez plus d'info, vous pouvez allez sur le site de :
Guide des mesures d'air ...etc :
Comment choisir le débit d'un ventilateur :
Tube de Pitot :
Merci pour l'ensemble de ces références qui devrait permettre une meilleure approche des mesurages et surtout une meilleure compréhension de certaines observations.
Bizarre que tu aies plus de débit sur un côté qu'à "l'extérieur" du virage. En tout cas il a l'air un peu moins performant que le mien mais tu n'as pas pu déboîter le réseau donc ce n'est pas trop comparable. J'ai le sentiment que c'est la même turbine...
Bonjour,
Juste une remarque en passant, les conditions de mesures ne peuvent absolument pas donner des résultats corrects, ils ne sont pas réalisés en flux stabilisé.
Pour un anémomètre à hélice, pour faire une mesure "a la bouche" il faut disposer d'un cône de mesure calibré.
Juste pour info, mon métier c'est la thermique et l'aéraulique industrielle et plus spécifiquement l'aspiration des copeaux, brouillard d'huiles et autres produits...
Bonne journée
Salut Laikeen
On se doute tout a fait qu'il y a une marge d'erreur mais j'ai du mal à croire qu'elle est de plus de 30% quand je vois les résultats que j'ai eu sur ma grosse aspi centrale et dont les mesures me paraissent tout à fait cohérentes par rapport à sa puissance moteur.
A tout hasard, serait tu équipé de matériel pour faire des tests précis sur ton aspiration?
Si oui, et que tu es d'accord, on pourrait te rajouter dans la file de testeur afin que tu prenne une mesure rustique comme la notre et que tu compare avec une mesure précise.
Bonjour,
Non, je ne suis malheureusement plus équipé, j'ai vendu l'intégralité de mon labo de mesure en partant en retraite il y a un an.
Il faut savoir que pour un débit d'air en gaine, la tolérance sur la mesure si l'on est pas en flux stabilisé est de +/-30% au minimum, voir pire.
L'on estime avoir un flux stabilisé si l'on a a minima une longueur droite, avant et après le point de mesure et ceci sans accident (coude, té, réduction, etc), équivalente à 5 fois le diamètre du tube de mesure, l'idéal étant 10 diamètres.
Toujours bien penser que le diamètre d'entrée sur une turbine de ventilateur est toujours inférieur au diamètre de la tuyauterie qui s'y raccorde (pe entrée ventilateur dia. 150 mm... tube dia 180 ou 200 mm).
Vous utilisez des anémomètres à hélice, il faut donc placer l'anémomètre dans un cône de mesure spécifique pour améliorer les condition de mesure. les mesures à l'anémomètre sont loin d'être fiables, même avec le cône. Ont réserve généralement les anémomètre pour les mesure sur les bouches de soufflage et d'extraction, équipement qui ont une perte de charge.
L'idéal serait de disposer de la longueur droite à l'aspiration du ventilateur et de faire la mesure avec un tube de Pitot en mesurant la pression dynamique (pression due à la vitesse) et de convertir le résultat en vitesse d'air. Même avec un tube de Pitot, il faut faire plusieurs mesures en croix dans le tube car à proximité des parois du tube il y a des décollement des veines d'air.
De plus, faire attention, les ventilateurs permettant l’extraction des copeaux ont des turbines à réaction ou à aubes planes, la courbe d'orifice équivalent peut "bouger" très vite. ces ventilateurs ont des rendements aérauliques très faibles.
Par ailleurs, les masses volumiques de l'air de mesure et de l'air de travail ne sont pas les mêmes, air propre d'un coté, air chargé de l'autre. il y a donc une forte chute de débit en air chargé.
Il faut noter aussi qu'aucun fabricant d'aspirateur "amateur" ne donne les courbes débit/pression des ventilateurs, il y a une bonne raison à cela, ces produits sont réalisés sans vrais essais aérauliques et de manière empirique. J'en ai démonté une bonne quantité pour pouvoir le dire et j'ai eu la chance de travailler chez un vrai fabricant de ventilateurs industriels.
Les conditions de mesure sont spécifiées dans l'ISO 5801 tant pour ce qui concerne les courbes débit/pression, que la puissance absorbée ou de l'acoustique.
A ma connaissance, mais je peut me tromper, aucun fabricant n'a déposé un dossier de mesure au CETIAT pour ce type de produit.
Pour pouvoir "comparer" des équipements, il faut que les conditions de mesure soient les mêmes, en général, une masse volumique de l'air de mesure égale à 1,207 kg/m3 ce qui vous donnera une température à adopter en fonction de l'altitude du lieu de mesure. Autrement on cumule les incertitudes.
En général, pour contrôler un équipement dont ont dispose des caractéristiques, ont contrôle également la puissance absorbée.
Un peut plus haut, ARA mentionne un différence de débit entre l'entrée et la sortie d'un coude.... Ont ne fais JAMAIS de mesure prés d'un accident (coude, té, changement de section, etc). Voir plus haut les conditions du flux stabilisé pour faire une mesure.
Pour les aspirations de copeaux, ont par pour le dimensionnement du réseau, en général, sur une vitesse de 20 à 22 m/s au max. J'ai lu plus haut une mesure avec 35 m/s, en ce cas le diamètre est trop faible.
Bon espérant ne pas avoir été trop long.
Amicalement
Merci Laikeen pour ces infos. Comme le dit L'Ecorce du Sycomore il s'agit de faire un comparatif grossier, donc je pense que ça lui donnera un critère de choix pour son achat.
J'ai fait les mesures à la sortie de la turbine pour avoir une idée, en sachant très bien que cela ne serait pas représentatif de grand chose, mais je trouve intéressant d'avoir une idée de l'hétérogénéité de la chose. Dans l'usine où je travaille, le débit global de ventilation rejeté à la cheminée est d'environ 200.000 m3/h. La mesure est faite à plusieurs dizaines de mètres du dernier coude, et quand on a remplacé l'annubar par deux fils chauds on ne comprenait plus rien à nos mesures. On a alors fait une cartographie de toute la section de la cheminée pour voir où passait la veine d'air : pas du tout homogène, le flux max n'était pas centré et pas dans l'axe du coude, j'en déduis qu'en plus ça "vrille".
Puisque c'était ton métier (profitons-en !), que penses-tu des caissons de filtration comme ceux-ci ?
Ouaaa ! On ne joue pas dans la même cour, là, je crois...
ah oui clairement .. mais ca va être interessant ...
Il faut l'espérer vu l'investissement!! Ce qui m'a motivé au moment de l'achat c'est le niveau de performance de filtration de l'équipement dont la puissance a été définie en cohérence avec le réseau de mon atelier. Je donnerai des résultats de mesure au niveau des bouches d'aspiration de mes machines pour illustrer.
L'idée est très intéressante.
Lorsque je fait un contrôle matériel j'utilise un vacuomètre.
Je le branche systématiquement sortie de tuyau de l'aspirateur (sans la canne).
Les tuyaux font tous la même longueur.
J'ai testé mon aspirateur d'atelier avec cet appareil pour vérifier la conformité de dépression.
Dans les tests réalisé il est préférable d'avoir le même tuyau, pour chaque aspiration en sortie de machine. Quitte à mettre un réducteur en sortie de machine.
Voici le petit test que j'ai réalisé
Test bosch universal Vac15
Ces mesures sont très intéressantes. De mon côté, j’ai un AF14 connecté à un Super Dust Deputy avec sortie directe vers l’extérieur. Il serait intéressant de mesurer la perte de charge induite par le cyclone (peut-être compensée par l’absence de filtre). Je suis donc volontaire pour participer à ces mesures.
Intéresant ! Tu n'as pas de rejet de poussière à l'extérieur ?
Rien de visible en tout cas ! Le Super Dust Deputy sépare vraiment bien. Et c’est un vrai bonheur de n’avoir plus aucune poussière fine sur l’aspirateur ou autour.
Ara le filtre est vraiment efficace, perso je regrette pas du tout de l'avoir pris en plus de l'aspirateur.
WoodBuzz perso j'ai fait le choix du filtre pour ne pas avoir à rejetter l'air en dehors de mon atelier. Vu les débits de ce genre de machine, si tu chauffes ton atelier en hiver, en trois minutes ton air chaud est parti dehors...
bmoulin639 C’est certain, tout dépend de la configuration de l’atelier et s’il est chauffé l’hiver. Ce n’est pas mon cas, d’où le choix de l’évacuation extérieure directe. Et en été, je suis bien content de pouvoir renouveler l’air de l’atelier pour faire baisser un peu la température ressentie :)
Quervet Le silencieux est sur ma to-do list. L’as tu acheté ou réalisé ?
Ara le filtre que j'ai c'est celui qui va avec l'aspi Felder, vendu sur le site internet Felder (oui c'est répétitif).
Quervet
impressionnant le canon de basses ! C'est un Bose ? Et l'écran plat, quelle réalisme, on dirait vraiment une fenêtre !
Bonjour à tous, je découvre votre discussion seulement maintenant et je vous confirme que dans l'univers de l'aspiration industrielle, on n'utilise pas des anémomètres en raison des erreurs de mesure induites (comme ici). On utilise la mesure de dépression en Pascal ou encore souvent en centimètres d'élévation d'une colonne d'eau dans un tuyau qui va faire un piquage exactement au centre de la conduite d'air et à 4 fois le diamètre de profondeur (pour réduire considérablement les turbulences induites en entrée d'aspiration du tuyau). Pour convertir la dépression mesurée en vitesse d'écoulement il suffit d'appliquer l'équation du théorème de Bernoulli. Ces mesures ne sont fiables que si le tuyau de prélèvement du test est bien placé.
Dans la pratique de nos ateliers, vous pouvez définir à l'avance quelle dépression en centimètres il nous faut dans nos tuyaux en fonction de leurs diamètres respectifs et des débits attendus. Ensuite vous pouvez bricoler une colonne qui trempe dans un récipient d'eau colorée sur laquelle est fixé un tuyau qui va venir "sonder" votre aspiration aux endroits stratégiques. Vous saurez donc si vous êtes dans la fourchette admissible de vos contraintes d'aspiration. NB Jamais de V < 23 m/s en raison d'un bois vert avec des raboteuses à plaquette et arbre hélicoïdal ou certains fers de toupie qui font des petits copeaux en bois denses plus difficiles à aspirer.