Salut à tous,
J’ai un petit atelier dont le sol est fait en OSB posé sur des palettes.... bref vu l’étroitesse du lieu j’aimerai déplacer aisément la Lurem 260 d’avant en arrière et aussi latéralement. J’ai construit un support bois avec des roulettes costauds, mais ça me donne une hauteur de machine peu agréable pour bosser voire dangereuse.
Existe-t-il un système Lurem pour cette machine ou faut-il se le fabriquer soi-même ?
J’ai vu qu'il existe des lèves machines dans le commerce, mais j’ai pas 150€ pour ça, d’autant que j’aimerai pas avoir un truc en plus dans l’atelier....
Merci pour vos retours d’expérience !
2 réponses
Bonjour,
Je dispose d'une LUREM OPTAL 260 qui est équipée d'un système de déplacement intégré sont je suis totalement satisfait.
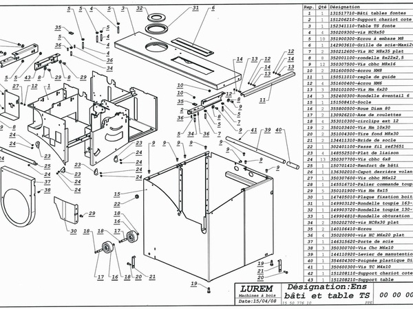
Je te joins l'éclaté du bâti où on voit parfaitement le système, à mon avis, facilement adaptable à une autre machine.
Il est constitué de :
- Deux roues (rep. 16) fixées directement à la tôle du bâti à l'intérieur de celui-ci
- Une barre de manœuvre (rep. 39) qui coulisse à l'intérieur du chassis
Il me semble difficile de faire plus simple et plus compact
